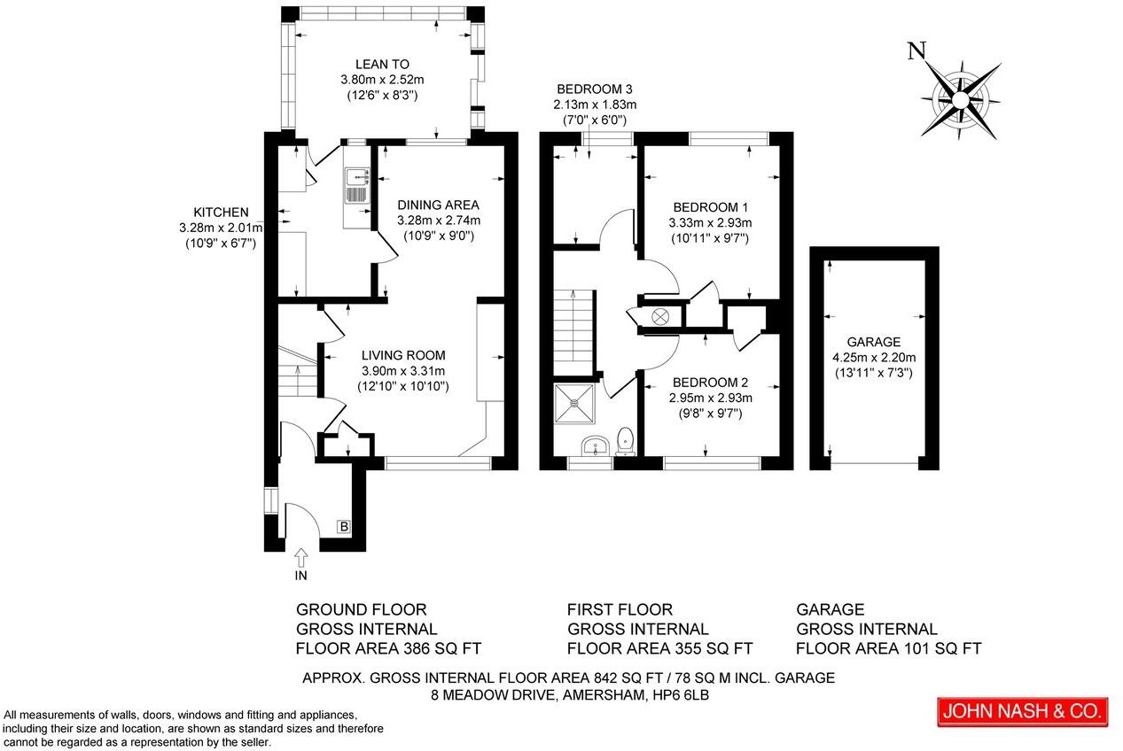
Three-bedroom terraced home with garage and strong school links — ideal for modernisation.
Three bedrooms in a terraced two‑storey layout
Single attached garage providing parking/storage
Chain free — immediate exchange possible
Requires full modernisation; dated interiors throughout
Small plot and modest rear garden; limited outdoor space
Approximately 741 sq ft — compact family footprint
Close to highly rated schools and Amersham town centre
Freehold; mains gas heating and double glazing present
Set on a quiet cul-de-sac in Amersham, this three-bedroom mid-terrace offers a straight‑forward renovation project with genuine upside. The house is freehold, chain‑free and includes a single attached garage — useful storage or conversion potential (subject to consents). At about 741 sq ft the accommodation is modest but workable for a family or first-time buyer who wants to add value through modernisation.
Internally the property retains dated mid‑century finishes and will need updating throughout: kitchen, bathroom, and general decor. The layout is conventional two‑storey with a ground‑floor reception and kitchen and three bedrooms upstairs; scope exists to reconfigure ground-floor rooms into a more open-plan living space. Double glazing and a gas boiler with radiators are already present, but you should expect some refurbishment costs and to check the EPC and services.
Location is a strong selling point: a short walk to Amersham town amenities and well‑regarded local schools (including nearby outstanding secondaries), with fast broadband and excellent mobile signal. The plot and garden are small, so outdoor space is modest. This property suits buyers seeking an affordable foothold in a very affluent area — ideal for first‑time buyers, young families, or investors planning a resale after updating.
3 bedroom terraced house for sale in Stubbs End Close, Amersham, HP6 — £499,000 • 3 bed • 1 bath • 754 ft²
3 bedroom terraced house for sale in Milton Lawns, Amersham, Buckinghamshire, HP6 — £550,000 • 3 bed • 1 bath • 1009 ft²
3 bedroom terraced house for sale in Brudenell Close, Amersham, Buckinghamshire, HP6 — £640,000 • 3 bed • 2 bath • 1204 ft²
3 bedroom end of terrace house for sale in Meadow Drive, Amersham, HP6 — £525,000 • 3 bed • 2 bath • 1103 ft²
3 bedroom detached house for sale in Station Road, Amersham, Bucks, HP7 — £650,000 • 3 bed • 1 bath • 967 ft²
3 bedroom detached house for sale in First Avenue, Amersham, HP7 — £795,000 • 3 bed • 1 bath • 1208 ft²










































