### Standout Features:
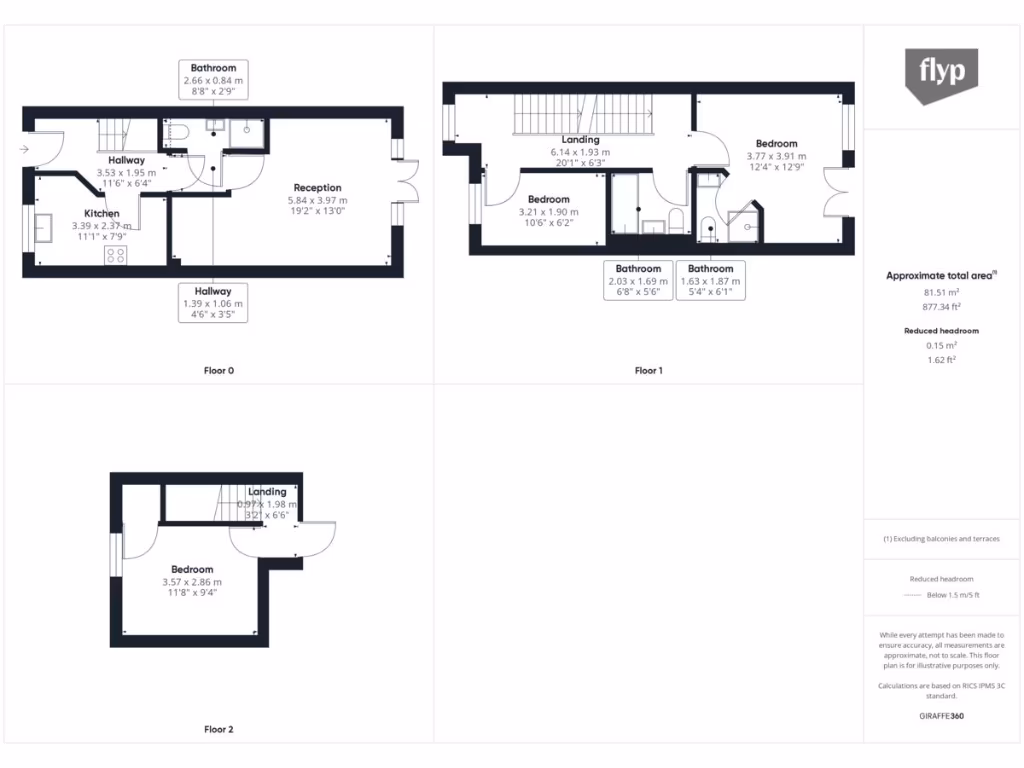
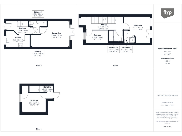
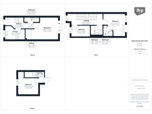
- **Spacious Layout**: 3 bedrooms and 3 bathrooms across multiple floors.
- **Prime Location**: Close proximity to West Drayton Station (0.4 miles) and excellent bus links.
- **Local Amenities**: Nearby supermarkets, schools, healthcare facilities, and parks.
- **Modern Design**: Contemporary townhouse with ample natural light and an outdoor garden.
- **Freehold Tenure**: Full ownership provides flexibility for future renovations or extensions.
### Summary:
Discover this elegant 3-bedroom, 3-bathroom terraced townhouse situated in the desirable West Drayton area, UB7 7FL. With an average total size of 877 sq. ft., this modern home offers comfortable multi-level living ideal for families and professionals alike. The property features a contemporary design, with expansive communal spaces and generous natural light thanks to modern patio doors.
Enjoy the convenience of excellent transport links, with the Elizabeth Line at West Drayton Station just a short walk away, as well as quick access to the M4 motorway. Local amenities are plentiful, including supermarkets like Tesco and Aldi, reputable schools, and green spaces such as the Yiewsley Recreation Ground.
While the area has average crime rates and some evidence of local deprivation, it remains a vibrant community, enriched by its cultural diversity. The property's freehold status offers you flexibility for renovations or personal touches. With all these features, this townhouse is a fantastic opportunity that won’t linger on the market for long. Don’t miss out—secure your future in this thriving location today!
3 bedroom terraced house for sale in Wraysbury Drive, West Drayton, UB7 — £535,000 • 3 bed • 3 bath • 877 ft²
3 bedroom terraced house for sale in Tavistock Road, Yiewsley, West Drayton, UB7 — £475,000 • 3 bed • 2 bath • 938 ft²
4 bedroom town house for sale in Ruffle Close, West Drayton, UB7 — £575,000 • 4 bed • 2 bath • 1286 ft²
3 bedroom end of terrace house for sale in Horton Road, West Drayton, UB7 — £550,000 • 3 bed • 3 bath • 1359 ft²
4 bedroom town house for sale in Thatcher Close, West Drayton, UB7 — £650,000 • 4 bed • 3 bath • 1519 ft²
3 bedroom terraced house for sale in Keats Way, West Drayton, UB7 — £524,950 • 3 bed • 1 bath • 910 ft²






















































