**Standout Features:**
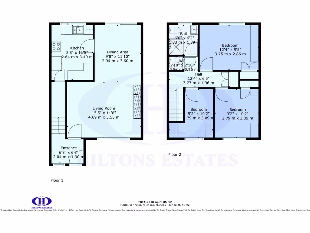
- Spacious 3-bedroom mid-terraced home with approximately 1,200 sq ft of living space
- Side access with off-street parking
- Generous rear garden with potential to extend (STPP)
- Excellent transport links: close to West Drayton station (Elizabeth Line), M4, M25, and Heathrow Airport
- Family-friendly area with local amenities
This charming 3-bedroom mid-terrace house on Keats Way, West Drayton, is an opportunity not to be missed, ideal for families and investors alike. Spanning approximately 1,200 sq ft, the property offers a spacious layout designed for modern living, with a functional kitchen adjoining an open-plan living and dining area—perfect for gatherings. Enjoy the benefits of off-street parking and side access, along with a generous rear garden that provides ample outdoor space and potential for future expansion (STPP).
Situated in a well-connected location, you’re just moments from excellent transport links, including the Elizabeth Line at West Drayton station, making commutes to Central London and Heathrow Airport a breeze. The local area boasts a vibrant community with various amenities, from shops and cafes to parks, supporting an active lifestyle. While the neighborhood does face some challenges with above-average crime rates and local deprivation, the property’s modern condition complements its potential for growth and value. Don’t wait—secure your future in this spacious home that combines comfort with investment potential.
3 bedroom terraced house for sale in Keats Way, West Drayton, UB7 — £524,950 • 3 bed • 1 bath • 1200 ft²
3 bedroom terraced house for sale in Keats Way, West Drayton, UB7 — £520,000 • 3 bed • 1 bath • 1200 ft²
3 bedroom semi-detached house for sale in Keats Way, West Drayton, UB7 — £500,000 • 3 bed • 1 bath • 997 ft²
4 bedroom semi-detached house for sale in Keats Way, West Drayton, UB7 — £600,000 • 4 bed • 2 bath • 1297 ft²
3 bedroom terraced house for sale in Wraysbury Drive, WEST DRAYTON, UB7 — £535,000 • 3 bed • 3 bath • 877 ft²
3 bedroom terraced house for sale in Wraysbury Drive, West Drayton, UB7 — £535,000 • 3 bed • 3 bath • 877 ft²






















































































