Newly renovated five-bedroom home on a huge private plot backing woodland.
Newly renovated throughout, contemporary fixtures and finishes
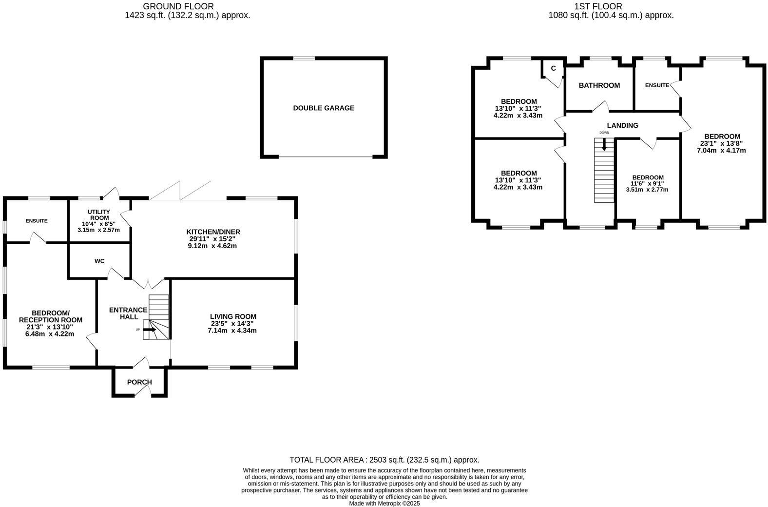
Set on a huge, park-like plot backing onto woodland, this newly renovated five-bedroom detached house suits families who value space and privacy. The ground floor offers flexible living with a large dual-aspect living room, a generous ground-floor bedroom with stylish en-suite, and an impressive open-plan kitchen/dining area with bi-fold doors that open onto a large patio and manicured lawn.
Upstairs provides four well-proportioned bedrooms including a 23'1" principal with en-suite, and a luxury family bathroom with a freestanding bath. The accommodation totals about 2,503 sq ft and is presented to a high standard throughout with modern fixtures, integrated kitchen appliances and double glazing installed after 2002.
Practical features include a detached double garage with electric door, driveway parking for multiple vehicles, utility room, cloakroom and mains gas central heating. The semi-rural location places you on the cusp of Westfield village with good road links to Hastings, the A21 and nearby Battle; local schooling options range from outstanding primary provision to independent education.
Note the setting’s semi-rural character: the large plot and extensive gardens will need ongoing maintenance. Although peacefully positioned next to woodland, the property sits in an ageing suburban/rural neighbourhood rather than a newly developed estate.
5 bedroom detached house for sale in Westfield Lane, St. Leonards-On-Sea, TN37 — £750,000 • 5 bed • 3 bath • 2218 ft²
4 bedroom detached house for sale in Westfield Lane, St. Leonards-On-Sea, TN37 — £750,000 • 4 bed • 3 bath • 2201 ft²
5 bedroom detached house for sale in Main Road, Westfield, TN35 — £850,000 • 5 bed • 3 bath • 1949 ft²
5 bedroom detached house for sale in Mill Lane, Hastings, TN35 — £650,000 • 5 bed • 3 bath • 1206 ft²
5 bedroom detached house for sale in Moor Lane, Westfield,, TN35 — £800,000 • 5 bed • 2 bath • 3172 ft²
4 bedroom detached house for sale in Westfield Lane, St. Leonards-On-Sea, TN37 — £600,000 • 4 bed • 1 bath • 2328 ft²


















































































































































