Spacious family living with garage bedroom and private courtyard garden.
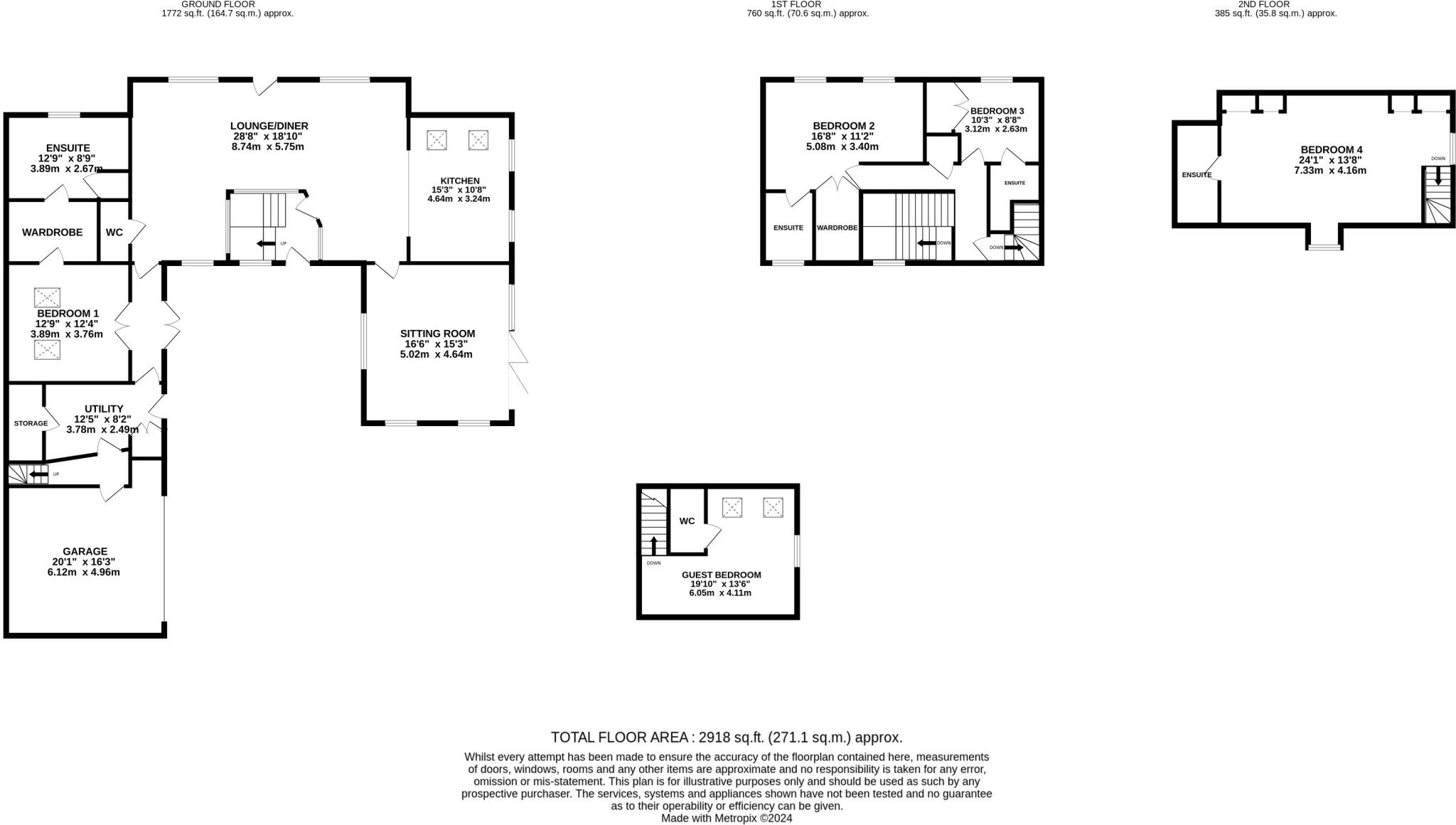
Five bedrooms across three floors with four en‑suites
An individually built brick and stone detached house arranged over three floors, this five-bedroom home blends traditional frontage with a striking contemporary rear. The ground-floor principal suite, expansive open-plan living/dining/kitchen and a vaulted sitting room with bi-fold doors deliver flexible family living and strong entertaining space. High-quality fittings include a central island kitchen, modern en‑suites to four bedrooms, underfloor heating and a double garage with a guest bedroom above.
The layout suits busy families who value space and privacy: a well-equipped utility/laundry room, generous storage, and a separate guest/therapy room above the garage with its own access. Outside is a large, enclosed courtyard and low-maintenance garden with decked and paved areas, gravel driveway and additional parking. The property benefits from mains gas heating and likely good thermal performance from solid construction.
Practical considerations are clear and factual. Broadband speeds in the area are slow and may frustrate heavy home workers; mobile signal is average. Local primary provision has mixed Ofsted outcomes, and the property sits in a small-town fringe setting rather than a dense service hub. Council tax is above average. These factors should be weighed against the home’s generous accommodation, large plot and solid construction.
Offered freehold, the house is ready for immediate occupation with minimal external maintenance, but buyers wanting ultra-fast connectivity should budget for upgrades. The guest room above the garage gives rental or business potential, subject to planning and access arrangements.
5 bedroom detached house for sale in Astley Crescent, Scotter, DN21 — £410,000 • 5 bed • 3 bath • 2196 ft²
5 bedroom detached house for sale in East Green, Messingham, DN17 — £440,000 • 5 bed • 2 bath • 2315 ft²
5 bedroom detached house for sale in Church Farm Road, South Kelsey, Lincolnshire, LN7 — £419,000 • 5 bed • 3 bath • 1615 ft²
5 bedroom detached house for sale in Lilac Close, Sutton, Retford, DN22 — £839,000 • 5 bed • 5 bath • 3519 ft²
5 bedroom detached house for sale in Idle Valley Road, Retford, DN22 — £550,000 • 5 bed • 3 bath • 2722 ft²
5 bedroom detached house for sale in Low Hall Road, Eastlound, DN9 — £599,950 • 5 bed • 2 bath • 2566 ft²


































































































































