Bright modern home steps from Clapham Common and the tube.
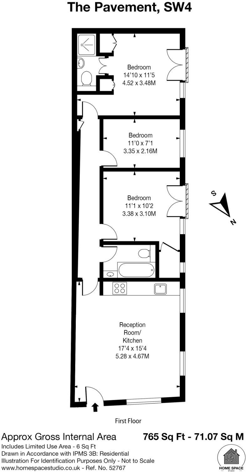
Chain-free three double bedrooms with two bathrooms
This chain-free three-double-bedroom apartment sits within a modern 2022 development off The Pavement, moments from Clapham Common and the Zone 2 tube station. The open-plan living and kitchen area is bright, with wood floors and large windows creating comfortable social space for families or sharers. Two Juliet balconies add light to bedrooms and help with ventilation.
Practical benefits include two bathrooms (one en suite), a shared garden, underfloor electric heating and a long lease (163 years). The flat is compact at about 765 sq ft, so room sizes and circulation are modest; storage and narrow hallways limit bulky furniture placement. Broadband speeds are average and mobile signal is excellent.
Notable negatives are the high local crime classification and the property’s small overall footprint, which may be important for those needing larger living areas. Heating runs on electricity (unspecified tariff), which can mean higher running costs compared with gas. Council tax is moderate.
This apartment will suit buyers wanting a modern, low-maintenance London home close to green space and transport — particularly families seeking good local schools or professionals wanting quick Zone 2 access. Investors should note the size and local crime data when assessing rental appeal.
2 bedroom flat for sale in Bromells Road, London, SW4 — £795,000 • 2 bed • 2 bath • 764 ft²
2 bedroom flat for sale in The Pavement,
Clapham, SW4 — £700,000 • 2 bed • 1 bath • 806 ft²
1 bedroom flat for sale in The Pavement,
Clapham Common, SW4 — £550,000 • 1 bed • 1 bath • 663 ft²
2 bedroom flat for sale in Clapham High Street,
Clapham, SW4 — £575,000 • 2 bed • 1 bath • 1026 ft²
3 bedroom flat for sale in Englewood Road, Clapham South, London, SW12 — £585,000 • 3 bed • 2 bath • 804 ft²
3 bedroom flat for sale in Westbridge House,
Westbridge Road, SW11 — £500,000 • 3 bed • 1 bath • 853 ft²


















































