Chain-free two-bed with garage and long lease in popular Martlesham Heath.
- Chain-free two-bedroom first-floor apartment
- Very long lease: 957 years remaining
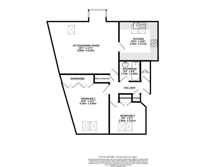
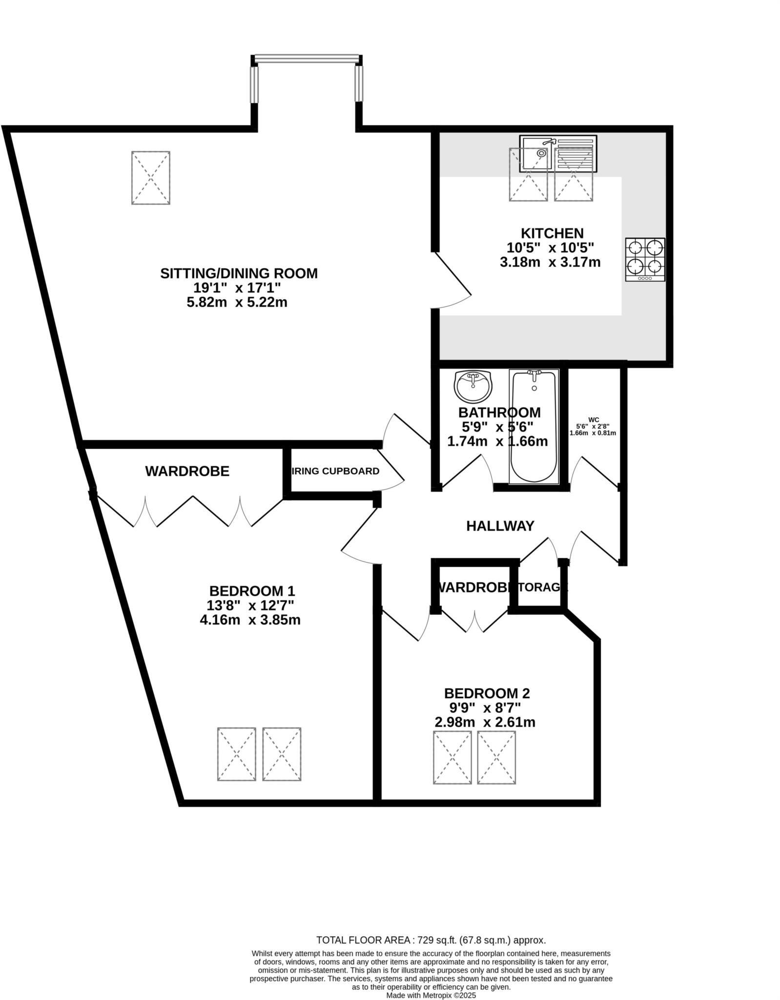
- Large open-plan living/dining room with eaves windows
- Includes single garage and communal garden access
- Fitted kitchen with integrated fridge, freezer and dishwasher
- Bathroom with electric shower over bath; check working condition
- Service charge about £1,260 per year; ground rent £1
- Rooms set into eaves mean reduced head height in places
A rarely available, chain-free two-bedroom first-floor apartment with a very long lease (957 years) and garage, ideal for a first-time buyer seeking space and low immediate costs. The apartment offers a large open-plan living/dining room with floor-to-ceiling windows to the rear, a separate fitted kitchen with integrated appliances, and generous main bedroom with built-in wardrobes. Gas central heating and double glazing are fitted throughout.
Set in popular Martlesham Heath, the location gives easy access to the A12/A14, nearby retail amenities, and pleasant heathland walks. Schools in the area include Outstanding-rated Birchwood Primary and good secondary options nearby, making this a sensible purchase for buyers who value local schooling and commuter links. The property also benefits from communal garden access and an allocated garage.
Buyers should note this is a first-floor apartment with rooms set into the eaves, so some ceilings and bedroom headroom are lower than standard. The bathroom has an electric shower over the bath; the listing advises buyers to verify the condition and working order of all services and appliances. The property carries a service charge (circa £1,260 annually) and a nominal ground rent of £1.
2 bedroom flat for sale in Henley Road, Ipswich, IP1 — £155,000 • 2 bed • 1 bath • 689 ft²
2 bedroom apartment for sale in Ganymede Close, Ipswich, IP1 — £160,000 • 2 bed • 2 bath • 593 ft²
2 bedroom apartment for sale in Hale Close, Ipswich, Suffolk, IP2 — £140,000 • 2 bed • 1 bath • 449 ft²
2 bedroom ground floor flat for sale in Grange Road, Felixstowe, IP11 — £185,000 • 2 bed • 1 bath • 654 ft²
2 bedroom apartment for sale in Blackheath Avenue, Ipswich, IP3 — £180,000 • 2 bed • 2 bath • 797 ft²
2 bedroom flat for sale in Jovian Way, Ipswich, Suffolk, IP1 — £160,000 • 2 bed • 2 bath • 587 ft²


















































































































