ME1 1XZ - 1 bedroom ground floor flat for sale in Union Street, Roche…

View on Property Piper

1 bedroom ground floor flat for sale in Union Street, Rochester, Kent, ME1

Summary - Flat 2, 2, Union Street ME1 1XZ

1 bed 1 bath Ground Flat

**Standout Features:**
- Auction sale with no onward chain
- Ground flat in a historic Georgian building
- 1 bedroom, 1 bathroom
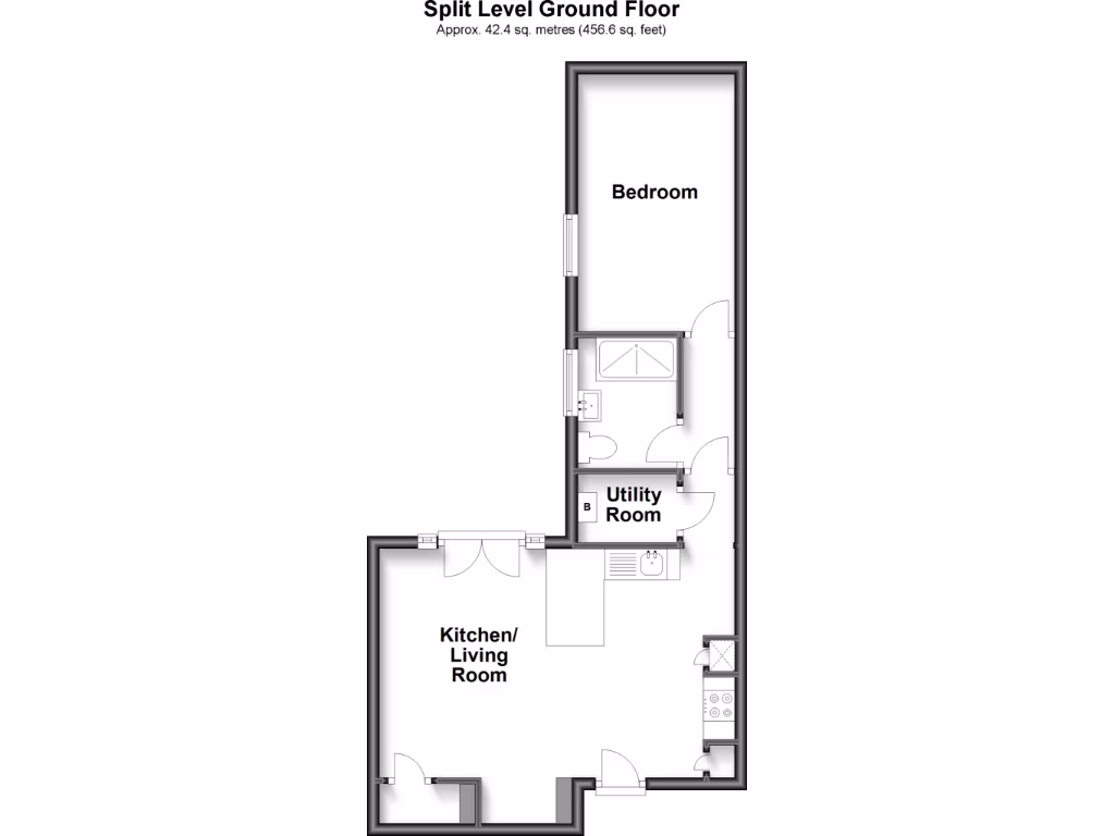
- Total size: 420 sq ft, with private rear garden
- Excellent mobile signal and fast broadband speeds
- Ideal for first-time buyers or investors seeking rental potential

**Concise Summary:**
This charming 1-bedroom ground flat, nestled in a historic Georgian building, is a perfect opportunity for first-time buyers or savvy investors looking to capitalize on rental potential. Spanning 420 sq ft, the property features an open-plan living area with a modern kitchen, a bright bedroom, and a convenient utility space. The private rear garden offers a rare outdoor retreat ideal for relaxation or entertaining.

Located just steps away from a bustling historic High Street and a high-speed train station, this property boasts excellent transport links. Notable amenities include a variety of local shops and cafes, ensuring convenience for daily living. The spacious living room invites ample natural light while the overall neutral decor allows for easy personalization.

Although the property is chain-free, it is offered under the Modern Method of Auction and requires a quick turnaround of 56 days for completion. Buyers should be mindful of the associated fees and the small service charge of £1200 per annum. Don't miss this chance to own a slice of historic charm in a vibrant, cosmopolitan neighborhood—properties like this don’t stay on the market for long!

Property Details

Image Descriptions

Floorplan Description

Rooms

Textual Property Features

Detected Visual Features

EPC Details

Nearby Schools

Nearest Bars And Restaurants

,,,,}

Nearest General Shops

,,}

Nearest Grocery shops

,,}

Nearest Supermarkets

,,}

Nearest Religious buildings

,,}

Nearest Medical buildings

,,,}

Nearest Airports

,}

Nearest Leisure Facilities

,,,,}

Nearest Tourist attractions

,,}

Nearest Train stations

,,,,}

Nearest Bus stations and stops

,,,,}

Nearest Hotels

,,}

Tags

Local Market Stats

AirBnB Data

Similar Properties

Meta

High Res Images

Compatible Images

Low res Images

Thumbnails

Raw Images

High Res Floorplan Images

Compatible Floorplan Images

Low res Floorplan Images

FloorplanImages Thumbnail

Raw Floorplan Images