Chain-free three-bed with garden and parking — ideal for renovation or investment.
Chain-free freehold three-bedroom end-of-terrace
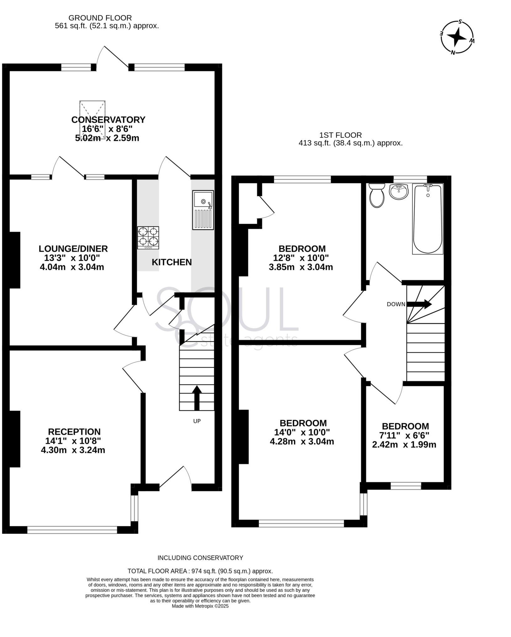
A traditional three-bedroom end-of-terrace on Franks Avenue offering straightforward scope to add value. At around 969 sq ft with two reception rooms, off-street parking and a private rear garden (approx. 11m), the house suits families or buyers wanting a renovation project near transport links.
The property is offered chain-free on freehold tenure and sits 0.6 miles from Berrylands station, with New Malden high street under a mile away. Local amenities include supermarkets (M&S, Waitrose, Lidl, ALDI), varied restaurants and regular bus services. Broadband and mobile signal are reported as fast and excellent respectively.
The house dates from the early 20th century and retains solid-brick construction; double glazing is installed but predates 2002. The property needs renovation throughout—updating kitchens, bathroom and likely insulation and some services will be required. Buyers should expect works to modernise heating, electrics and internal finishes.
This is a clear refurbishment opportunity for a family seeking a long-term home or an investor targeting rental or resale uplift. Important: no tests of fixtures, fittings or services have been provided, and the walls are assumed uninsulated, so survey and service checks are recommended before purchase.
3 bedroom semi-detached house for sale in Franks Avenue, New Malden, KT3 — £650,000 • 3 bed • 1 bath • 1132 ft²
3 bedroom terraced house for sale in Byron Avenue, New Malden, KT3 — £500,000 • 3 bed • 1 bath • 824 ft²
3 bedroom semi-detached house for sale in Beresford Avenue, Berrylands, KT5 9LJ, KT5 — £750,000 • 3 bed • 1 bath • 1017 ft²
3 bedroom end of terrace house for sale in Claremont Avenue, New Malden, KT3 — £635,000 • 3 bed • 1 bath • 983 ft²
3 bedroom terraced house for sale in Rose Walk, Surbiton, KT5 — £450,000 • 3 bed • 1 bath • 1168 ft²
3 bedroom terraced house for sale in Midleton Road, New Malden, KT3 — £600,000 • 3 bed • 2 bath • 756 ft²














































