Spacious four-bedroom home with large garden and garage near Inverness.
Elevated balcony with sweeping Moray Firth views
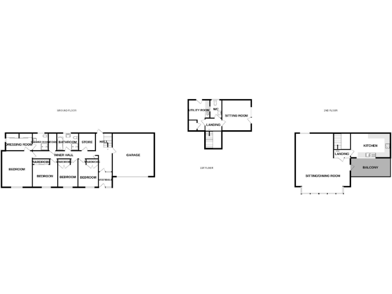
A substantial split-level four-bedroom detached villa set on an elevated plot in sought-after Moray Park, Culloden. The house makes the most of its outlook: dual-aspect living/dining room and an elevated balcony capture sweeping views over the Moray Firth, while large windows and vaulted ceilings bring abundant natural light. The landscaped rear garden is arranged in distinct terraces, backing onto trees for privacy, and the property includes an integral double garage plus driveway parking for up to four cars.
Accommodation is practical for family life, with a generous principal bedroom suite (dressing room and ensuite), three further bedrooms with built-in storage, a family bathroom, ground-floor family room opening to the garden, and a well-equipped second-floor kitchen with an AGA. Gas central heating and double glazing are in place, and several major appliances are included in the sale, easing move-in costs.
The house offers strong potential to personalise and modernise; its mid-20th-century design and sizeable 192 m2 footprint provide good scope to reconfigure or upgrade finishes to contemporary tastes. Important factual points: the property has an EPC rating of D and is in Council Tax Band G, and the local area shows relative deprivation indicators—factors to consider for running costs and long-term value.
Set about four miles from Inverness city centre, Culloden provides local shops, primary and secondary schools, bus links, and nearby leisure and hospital facilities. For families seeking space, views and easy access to city amenities, this home presents a versatile, well-located option with clear potential once modernised.
4 bedroom detached house for sale in 50 Duke's View, Slackbuie, Inverness. IV2 6BB, IV2 — £350,000 • 4 bed • 2 bath • 1346 ft²
5 bedroom detached house for sale in Appin Drive, Inverness, IV2 — £360,000 • 5 bed • 4 bath • 1712 ft²
4 bedroom detached house for sale in 5 Culloden Road, Balloch, IV2 — £310,000 • 4 bed • 2 bath • 2455 ft²
4 bedroom detached house for sale in 23 Woodgrove Crescent, Inshes, Inverness, Highland. IV2 5HN, IV2 — £375,000 • 4 bed • 3 bath • 1593 ft²
3 bedroom detached bungalow for sale in Ashbourne, 1 Barnview, Culloden, Inverness, IV2 7EX, IV2 — £280,000 • 3 bed • 2 bath • 1141 ft²
4 bedroom detached house for sale in Grigor Drive, Inverness, IV2 — £350,000 • 4 bed • 2 bath • 1349 ft²






























































































