TN25 7JS - 4 bedroom detached house for sale in Bilsington, Ashford, T…

View on Property Piper

4 bedroom detached house for sale in Bilsington, Ashford, TN25

Summary - WEAVERS COTTAGE ASHFORD ROAD BILSINGTON ASHFORD TN25 7JS

4 bed 1 bath Detached

**Standout Features:**
- Grade II listed cottage with rich historical charm
- Set on 5+ acres of picturesque land, including approximately 3.5 acres of woodland and a sizable pond
- Separate barn with conversion potential for an annexe or AirBnB (subject to permissions)
- Inglenook fireplaces, beamed ceilings, and period features throughout
- Direct access to the scenic Saxon Shoreway, perfect for hiking
- Double stable block, suited for equestrian use with easy road access
- Only 4 minutes to Bilsington Priory and 12 minutes to Ashford train station

Nestled in serene countryside, this enchanting Grade II listed cottage seamlessly blends traditional charm with substantial potential. Spanning over 5 acres, this retreat offers a wealth of opportunities—whether you dream of transforming the spacious barn into a guest dwelling or seeking an idyllic family home far from life's hustle. Within the property, discover rustic living spaces adorned with period details, including inglenook fireplaces that create a warm, inviting atmosphere.

The expansive grounds are a nature lover's paradise, featuring ancient woodland, a peaceful pond teeming with wildlife, and a delightful treehouse that will be a hit with children. The land is perfect for outdoor adventures, relaxation, or even equestrian endeavors, thanks to the well-placed stable block. While the property showcases unique historical features dating back to the Restoration of Charles II, certain elements, like the need for careful renovations of the barn and lean-to, must be taken into account.

Conveniently located near reputable schools and with the peaceful Saxon Shoreway right outside your door, this home offers a perfect balance of rural tranquility and accessibility. Create your own legacy here—this property embodies not just a home, but a lifestyle steeped in history and natural beauty waiting for future memories to be made. Don't miss out on the opportunity to own such a unique piece of countryside paradise!

Property Details

Image Descriptions

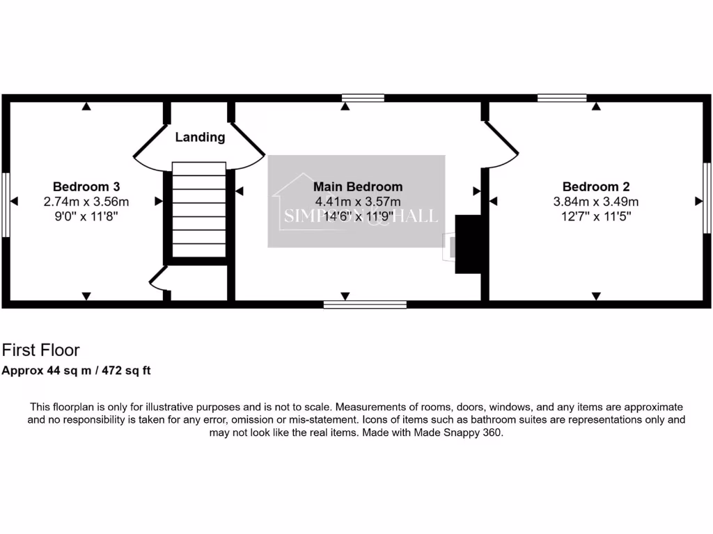
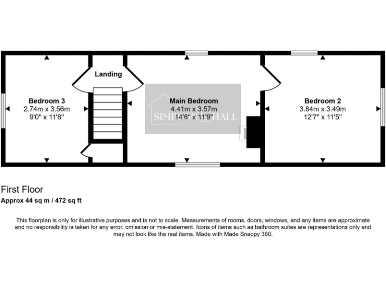
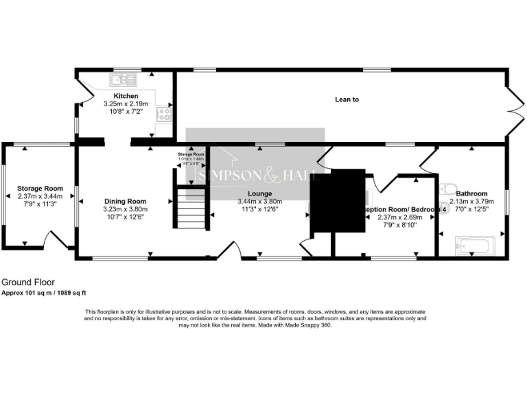
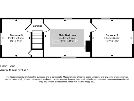
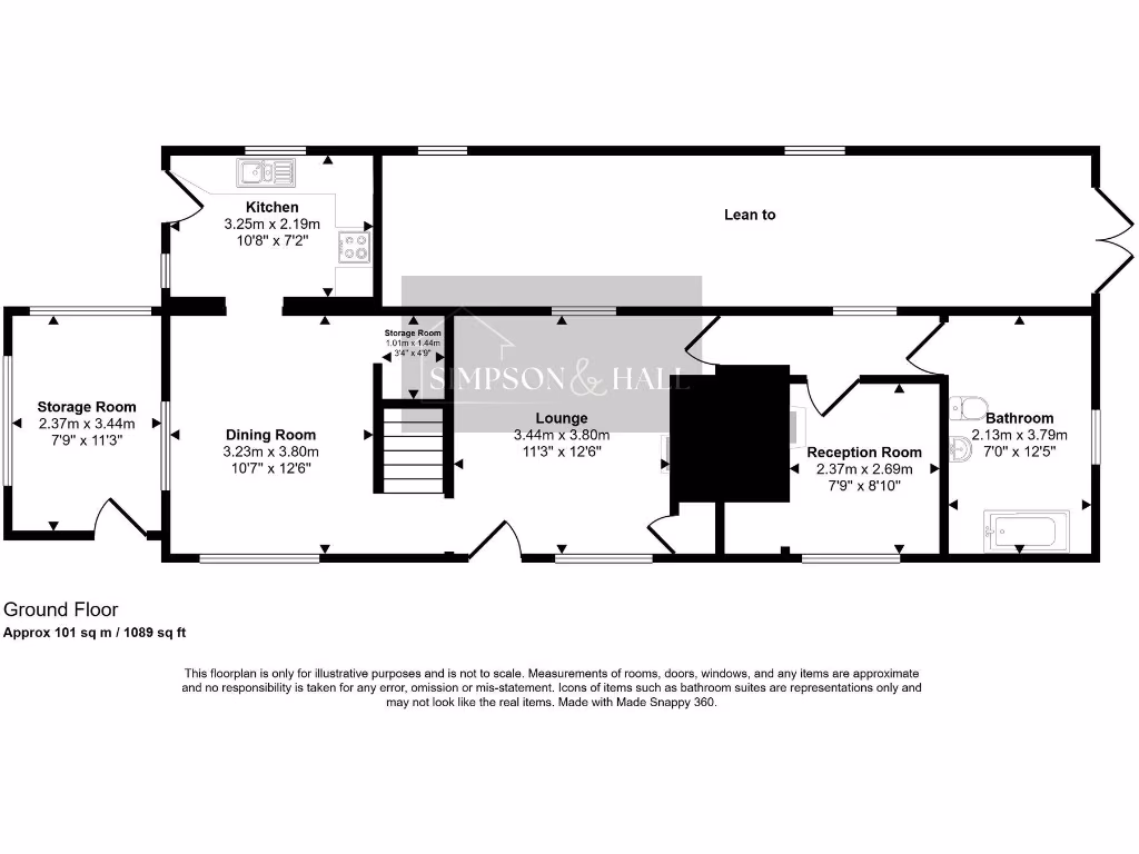
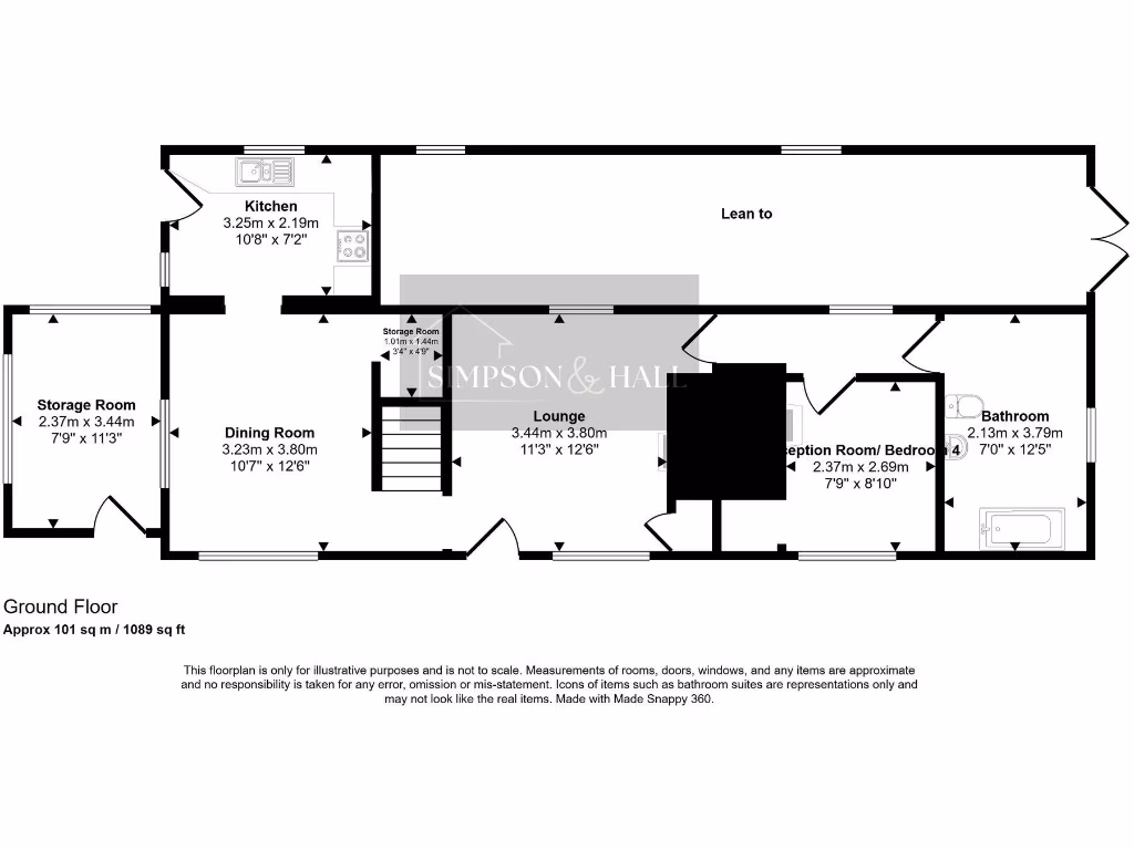
Floorplan Description

Rooms

Textual Property Features

Detected Visual Features

Nearby Schools

Nearest Bars And Restaurants

,,,,}

Nearest General Shops

,,}

Nearest Grocery shops

,,}

Nearest Supermarkets

,,}

Nearest Religious buildings

,,}

Nearest Medical buildings

,,,}

Nearest Leisure Facilities

,,,,}

Nearest Tourist attractions

,,}

Nearest Train stations

,,,,}

Nearest Bus stations and stops

,,,,}

Nearest Hotels

,,}

Tags

Local Market Stats

Similar Properties

Meta

High Res Images

Compatible Images

Low res Images

Thumbnails

Raw Images

High Res Floorplan Images

Compatible Floorplan Images

Low res Floorplan Images

FloorplanImages Thumbnail

Raw Floorplan Images