Huge, private freehold plot with conditional consent for two large homes — ideal for developers.
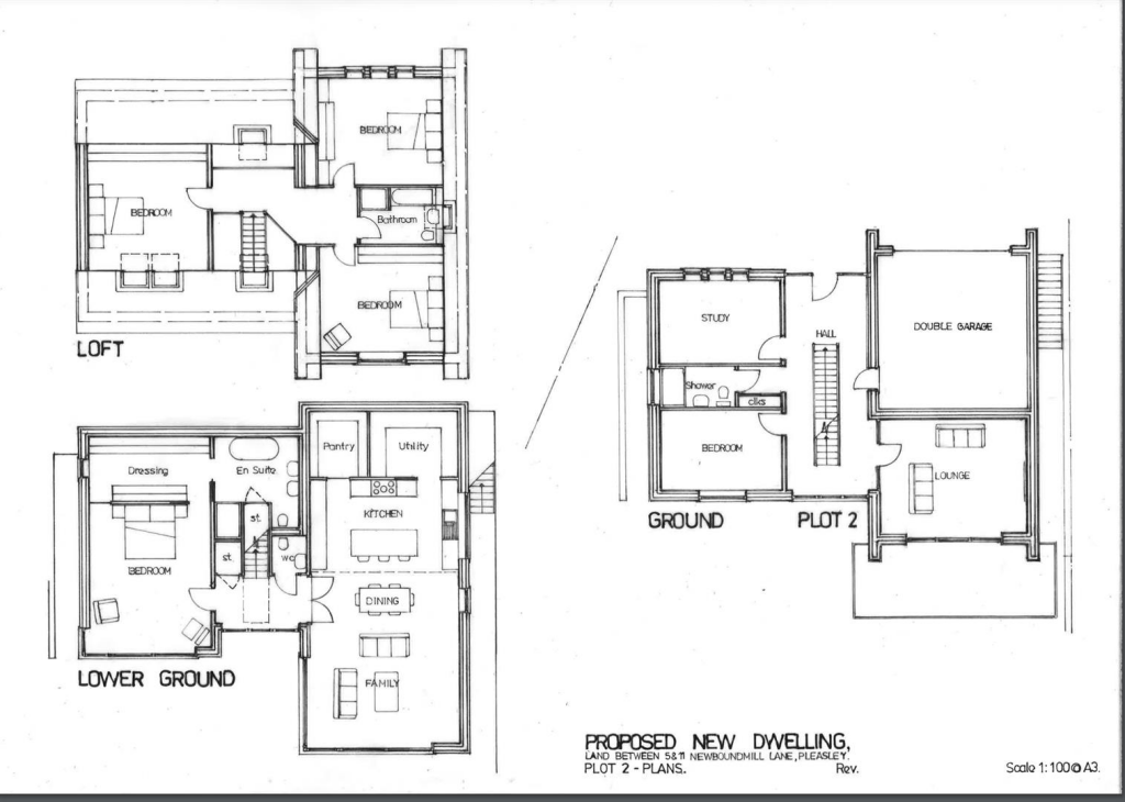
Conditional permission for two homes (4-bed detached and 5-bed three-storey) via application 23/00253/FUL
Freehold, very large/huge plot with mature trees and strong privacy
Site is overgrown — requires clearance, preparation and landscaping
Slow broadband and average mobile signal — utility upgrades likely needed
Located in a deprived area with high recorded crime — may affect resale
Close to Good-rated local primary and secondary schools
Buyer must satisfy planning conditions and manage full construction
Suitable for developers or experienced self-builders, not a turnkey plot
A rare freehold development plot on Newboundmill Lane with conditional planning consent for two substantial homes — one four-bedroom detached house and one three-storey five-bedroom house with garages (Bolsover DC application 23/00253/FUL). The site is a large, heavily treed parcel offering privacy, mature landscaping and commanding views across the surrounding neighbourhood. The scale and seclusion make it attractive to a small developer or self-builder seeking a countryside-feel location within reach of local services.
The plots come as raw land: purchasers will need to satisfy the planning conditions, commission detailed drawings and manage all construction, utilities and landscaping works. Broadband speeds are slow and mobile signal is average; these infrastructure limitations should be considered in project costings. Local schools are rated Good, and the site sits within a white suburban community setting close to local amenities and transport links.
Practical risks are material and must be factored in. The wider area records higher crime levels and is classified as deprived, which can affect marketability and valuations. The planning permission is conditional — not yet a guaranteed build right — and the land appears overgrown, meaning initial clearance and site preparation will be required.
For an investor or developer willing to manage the build process and local market factors, this is a sizeable, private plot with clear scope to create two high-value family homes. It will suit buyers prepared to progress conditions, infrastructure upgrades and landscaping to unlock the site’s potential.
Plot for sale in Newboundmill Lane, Pleasley, Mansfield, NG19 — £350,000 • 1 bed • 1 bath
Detached house for sale in Mansfield Road, Hasland, S41 — £95,000 • 1 bed • 1 bath • 2600 ft²
Land for sale in Clipstone Drive, Forest Town, NG19 — £300,000 • 1 bed • 1 bath
Detached house for sale in Mansfield Road, Hasland, S41 — £95,000 • 1 bed • 1 bath • 1725 ft²
Plot for sale in Building Land, The Hill, Glapwell, Chesterfield, S44 — £425,000 • 1 bed • 1 bath
Land for sale in Columbia Street, Huthwaite, Sutton-in-Ashfield, Nottinghamshire, NG17 — £70,000 • 1 bed • 1 bath






























































