Spacious riverside living close to Kingston amenities and transport links.
Large open-plan reception and modern fitted kitchen
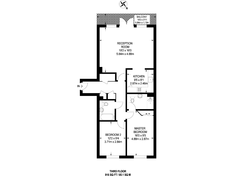
Set within a popular riverside development, this spacious 2-bedroom third-floor flat offers generous living space (approx. 916 sq ft) and a private balcony overlooking well-kept communal gardens. The large open-plan reception connects to a modern fitted kitchen, creating an easy, sociable layout for family life or comfortable long-term living. Secure underground parking and on-site concierge add everyday convenience.
Practical features include two bathrooms (one en-suite), double glazing and access to a residents’ gym. The flat is chain-free and has an exceptionally long lease (974 years), reducing common leasehold concerns and supporting future resale or letting potential. Kingston town centre, riverside restaurants, Canbury Gardens and transport links are all within easy walking distance.
Important considerations: the property sits in a high flood-risk area, so buyers should obtain suitable flood cover and consider resilience measures. Heating is electric (room heaters) rather than gas central heating, which can affect running costs. The service charge is above average at £6,755 per year and there is a ground rent of £250, both of which should be factored into ongoing costs.
Overall this is a roomy, well-presented riverside apartment offering ready-to-live-in accommodation and strong local amenities. It will suit families seeking convenient riverside living, buyers wanting secure parking and concierge services, or investors looking for a leasehold asset with long lease length. Obtain specialist flood and running-cost advice before committing.
2 bedroom flat for sale in Seven Kings Way, Kingston, Kingston upon Thames, KT2 — £495,000 • 2 bed • 2 bath • 926 ft²
2 bedroom flat for sale in Wadbrook Street, Kingston, Kingston upon Thames, KT1 — £500,000 • 2 bed • 2 bath • 770 ft²
2 bedroom flat for sale in Royal Quarter, Seven Kings Way, Kingston upon Thames, KT2 — £495,000 • 2 bed • 2 bath • 930 ft²
1 bedroom flat for sale in Henry Macaulay Avenue, Kingston, Kingston upon Thames, KT2 — £425,000 • 1 bed • 1 bath • 637 ft²
2 bedroom flat for sale in Avon House, Samuel Gray Gardens, Kingston Upon Thames, KT2 — £715,000 • 2 bed • 2 bath • 890 ft²
2 bedroom apartment for sale in Kingston Riverside, Kingston upon Thames, KT2 — £699,950 • 2 bed • 2 bath • 804 ft²


























































