Affordable two-bedroom property close to transport and local amenities.
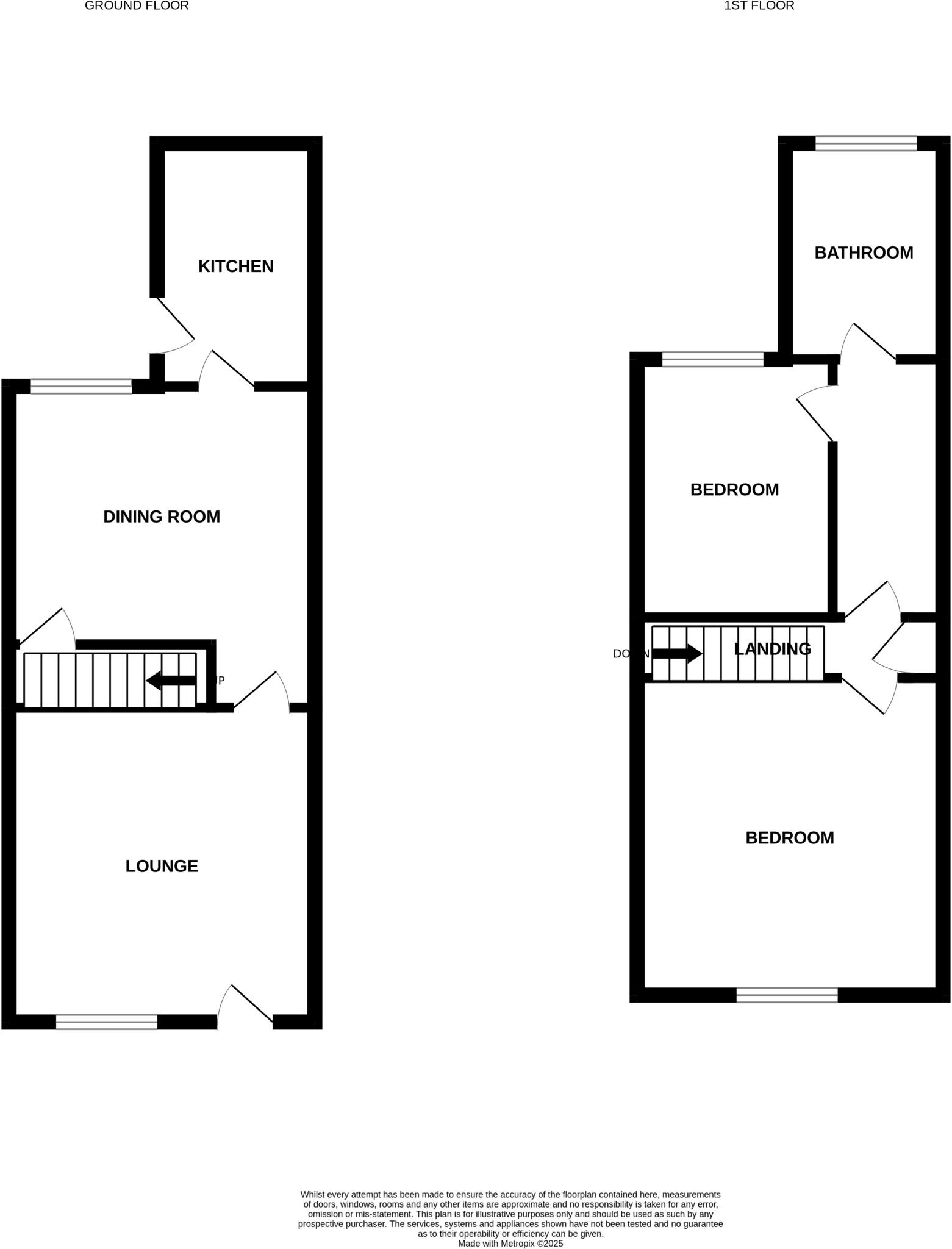
End-terrace Victorian house, approx. 894 sq ft
This two-bedroom end-of-terrace Victorian house offers straightforward, affordable ownership in Derby’s DE23 area. The property provides two reception rooms, a fitted kitchen and a first-floor bathroom across approximately 894 sq ft, with a small private rear garden—suitable for a first purchase or a rental let.
The house is freehold, double-glazed (install date unknown) and heated by a mains gas boiler and radiators; EPC rating D. The solid brick walls are likely uninsulated as built, so energy-efficiency improvements (insulation, window upgrade) are possible to reduce running costs and improve comfort.
Practical considerations are important: the plot is small, rooms are modest in size, and the neighbourhood records higher crime levels and very high area deprivation. These factors can affect resale and lettings, but the property’s size, central location and proximity to transport and local amenities make it an accessible, cost-effective purchase for buyers targeting affordable housing or buy-to-let opportunities.
Overall, this property suits buyers seeking an entry-level home or investment with scope to improve energy performance and maximise rental yield. Legal and survey checks are recommended to confirm condition and any refurbishment needs.
2 bedroom terraced house for sale in Netherclose Street, Derby, DE23 — £140,000 • 2 bed • 1 bath • 745 ft²
2 bedroom terraced house for sale in Nottingham Road, Derby, DE21 — £120,000 • 2 bed • 1 bath • 614 ft²
2 bedroom terraced house for sale in Sun Street, Derby, DE22 — £145,000 • 2 bed • 1 bath • 647 ft²
2 bedroom terraced house for sale in Byron Street, Derby, DE23 — £130,000 • 2 bed • 1 bath • 795 ft²
2 bedroom end of terrace house for sale in Alfreton Road, Derby, DE21 — £135,000 • 2 bed • 1 bath • 875 ft²
2 bedroom terraced house for sale in Princes Street, Derby, DE23 — £110,000 • 2 bed • 1 bath • 765 ft²






