Chain-free Victorian mid-terrace near Derby centre, ready for letting or improvement.
Two double bedrooms suitable for rental demand
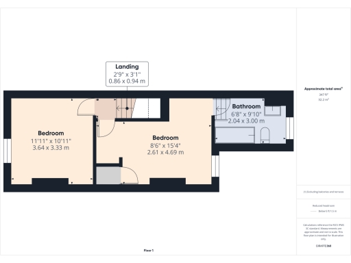
A compact Victorian mid-terrace offered chain free and sold freehold — suited to investors or buyers seeking a straightforward city-centre let. The house has two double bedrooms, a spacious through lounge/dining room and an extended kitchen, providing clear rental layout and lettable living space. Gas central heating and double glazing are already in place, and the property occupies a small rear garden.
The building is solid-brick, constructed c.1900–1929, and currently has an EPC rating of D. There is assumed lack of wall insulation and the home would benefit from targeted improvements (insulation, cosmetic updating) to raise energy efficiency and long-term value. There is a medium flooding risk for the area; purchasers should obtain flood-cover details and consider mitigation measures.
Location is a practical selling point: close to Derby city centre, strong public transport links and main roads (A52/A38/M1), and a cluster of good and outstanding local schools. The immediate neighbourhood is described as very deprived with above-average crime, so buyer expectations should reflect lower-priced urban rental demand and associated management considerations.
In short, this is a budget-priced, small-footprint investment with immediate occupancy potential but clear scope for improvement. Financially-minded buyers can secure yield quickly, while those seeking to add value should budget for energy upgrades and cosmetic refurbishment.
2 bedroom terraced house for sale in Raven Street, Derby, DE22 — £140,000 • 2 bed • 1 bath • 806 ft²
2 bedroom terraced house for sale in Howe Street, DERBY, Derbyshire, DE22 — £145,000 • 2 bed • 1 bath • 944 ft²
2 bedroom terraced house for sale in Camden Street, Derby, Derbyshire, DE22 — £130,000 • 2 bed • 1 bath • 855 ft²
2 bedroom terraced house for sale in Jackson Street, Derby, Derbyshire, DE22 — £127,500 • 2 bed • 1 bath
2 bedroom terraced house for sale in Netherclose Street, Derby, DE23 — £140,000 • 2 bed • 1 bath • 745 ft²
2 bedroom terraced house for sale in Woods Lane, Derby, DE22 — £155,000 • 2 bed • 2 bath • 829 ft²






















































