Versatile five-bedroom home close to station and village amenities.
No onward chain, ready for immediate occupation
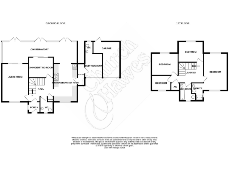
Five bedrooms; principal bedroom with en‑suite
Ground‑floor bedroom/gym converted from half garage
Full‑width conservatory extends living and entertaining space
Refitted kitchen with integrated appliances and utility room
Large shingled driveway plus garage; converted garage reduces storage
Low‑maintenance rear garden with covered seating area
Council Tax Band E; some external cosmetic updating needed
Set at the end of a peaceful cul‑de‑sac, this well-presented five-bedroom detached house offers flexible family living with immediate occupation available. Light-filled rooms include a dual-aspect living room, full-width conservatory and a refitted kitchen with integrated appliances — practical spaces for daily life and entertaining.
The layout suits multigenerational use: there is a ground-floor bedroom or gym with adjoining WC, four double bedrooms upstairs and an en‑suite to the principal bedroom. Practical additions include a utility room, extensive off‑road parking on a large shingled driveway and a garage with power and light (note half the garage has been converted to create the ground-floor room).
Outside, the rear garden is designed for low maintenance with paved areas, planted borders and a covered seating area for year‑round use. The property benefits from excellent local services, a nearby primary school and a railway station with direct services to London Liverpool Street.
Important points to note: the property sits in Council Tax Band E (above average), some external joinery and garage doors show cosmetic wear and would benefit from updating, and part of the garage has been converted reducing single‑garage storage. Energy rating D.
5 bedroom detached house for sale in Kings Croft, Southminster, CM0 — £490,000 • 5 bed • 3 bath • 1028 ft²
5 bedroom semi-detached house for sale in Crown Way, Southminster, CM0 — £425,000 • 5 bed • 3 bath • 2132 ft²
4 bedroom detached house for sale in Dow Court, Southminster, CM0 — £440,000 • 4 bed • 2 bath • 1371 ft²
4 bedroom detached house for sale in Smyatts Close, Southminster, CM0 — £725,000 • 4 bed • 3 bath • 1252 ft²
4 bedroom detached house for sale in Hill View Close, Southminster, CM0 — £500,000 • 4 bed • 3 bath • 1768 ft²
4 bedroom semi-detached house for sale in Crown Way, Southminster, CM0 — £399,995 • 4 bed • 1 bath • 2119 ft²


























































































































