Prime private plot with scope to modernise and extend for family living.
Chain free for a quicker purchase process
Large 0.4-acre plot with excellent privacy and mature planting
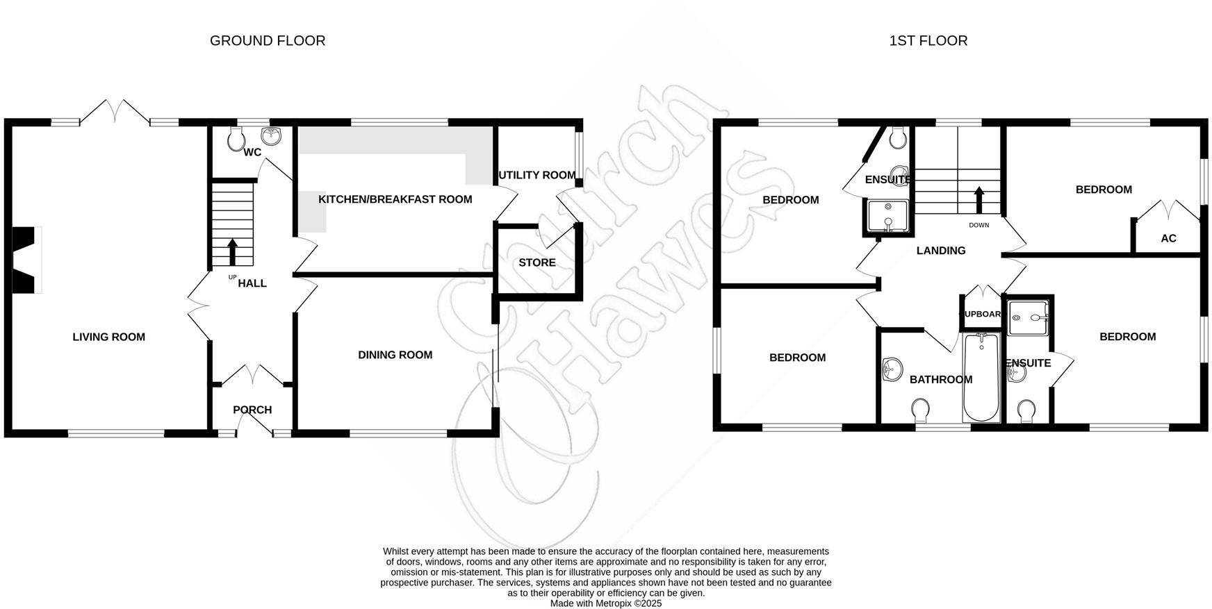
Four double bedrooms; two with en-suite shower rooms
Spacious dual-aspect living and separate dining rooms
Double garage with electric doors and extensive driveway parking
Requires modernisation throughout; scope to extend (STPP)
EPC Band D; double glazing installed before 2002
Council Tax Band F — running costs likely higher
Set on a prized 0.4-acre plot in a quiet cul-de-sac, this substantial detached home offers privacy, generous gardens and wide driveway parking. The house sits centrally on the plot with mature beds, a greenhouse and a double garage with electric doors — ideal for a growing family who value outdoor space and vehicle storage.
Internally the layout suits family life: large dual-aspect living and dining rooms, a generous kitchen/breakfast with adjoining utility and store, cloakroom and four double bedrooms upstairs. Two bedrooms have en-suite shower rooms and a sizeable family bathroom serves the remainder. Overall accommodation is well-proportioned and flexible for contemporary living.
The property requires modernisation throughout and presents clear potential to update and extend subject to planning (STPP). Renovation would allow buyers to reconfigure spaces, upgrade finishes and improve the EPC (currently Band D). Buyers should note the glazing predates 2002 and the home is sold chain free for a smoother purchase.
Practical details: freehold tenure, approx. 1,809 sq ft, Council Tax Band F (expensive). The village benefits from rail links towards London, local shops, primary schooling and good broadband and mobile signals. Early inspection recommended to assess scope for a bespoke family refurbishment or redevelopment.
5 bedroom detached house for sale in Vicarage Meadow, Southminster, CM0 — £550,000 • 5 bed • 2 bath • 1292 ft²
5 bedroom detached house for sale in Kings Croft, Southminster, CM0 — £490,000 • 5 bed • 3 bath • 1028 ft²
4 bedroom detached house for sale in Dow Court, Southminster, CM0 — £440,000 • 4 bed • 2 bath • 1371 ft²
5 bedroom semi-detached house for sale in Crown Way, Southminster, CM0 — £425,000 • 5 bed • 3 bath • 2132 ft²
3 bedroom semi-detached house for sale in Queenborough Road, Southminster, CM0 — £349,995 • 3 bed • 1 bath • 985 ft²
4 bedroom semi-detached house for sale in Crown Way, Southminster, CM0 — £399,995 • 4 bed • 1 bath • 2119 ft²






























































































































