Generous family home with garden, garage and excellent connectivity.
Large 1,677 sq ft semi-detached bungalow on corner plot
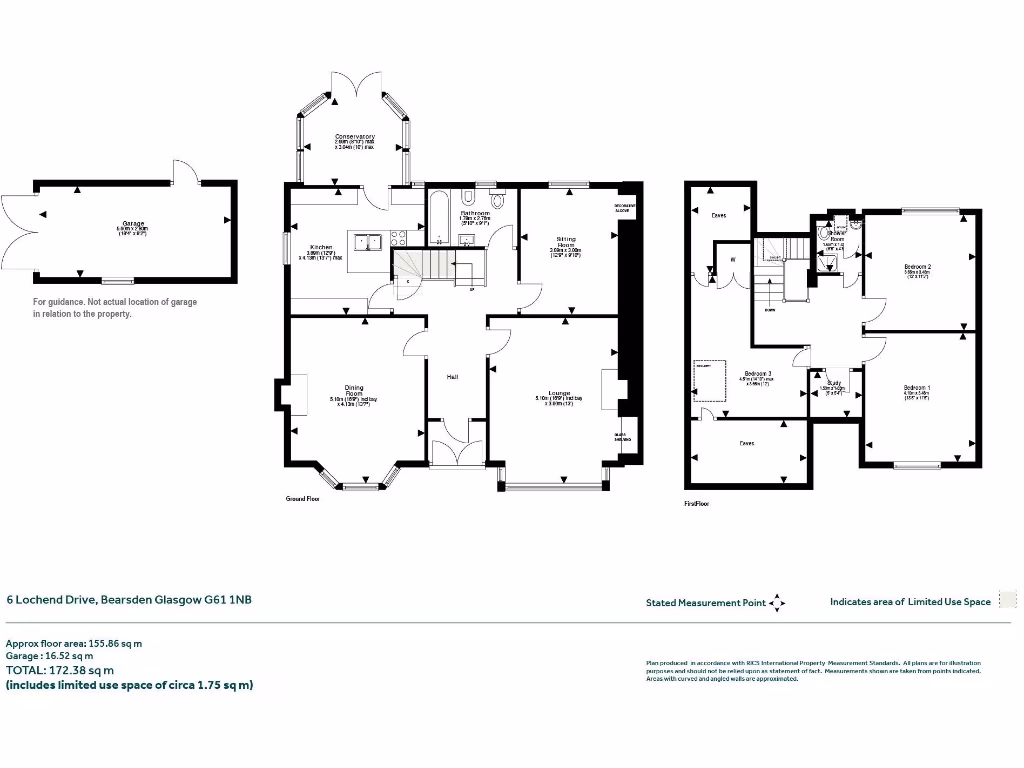
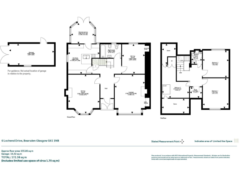
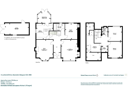
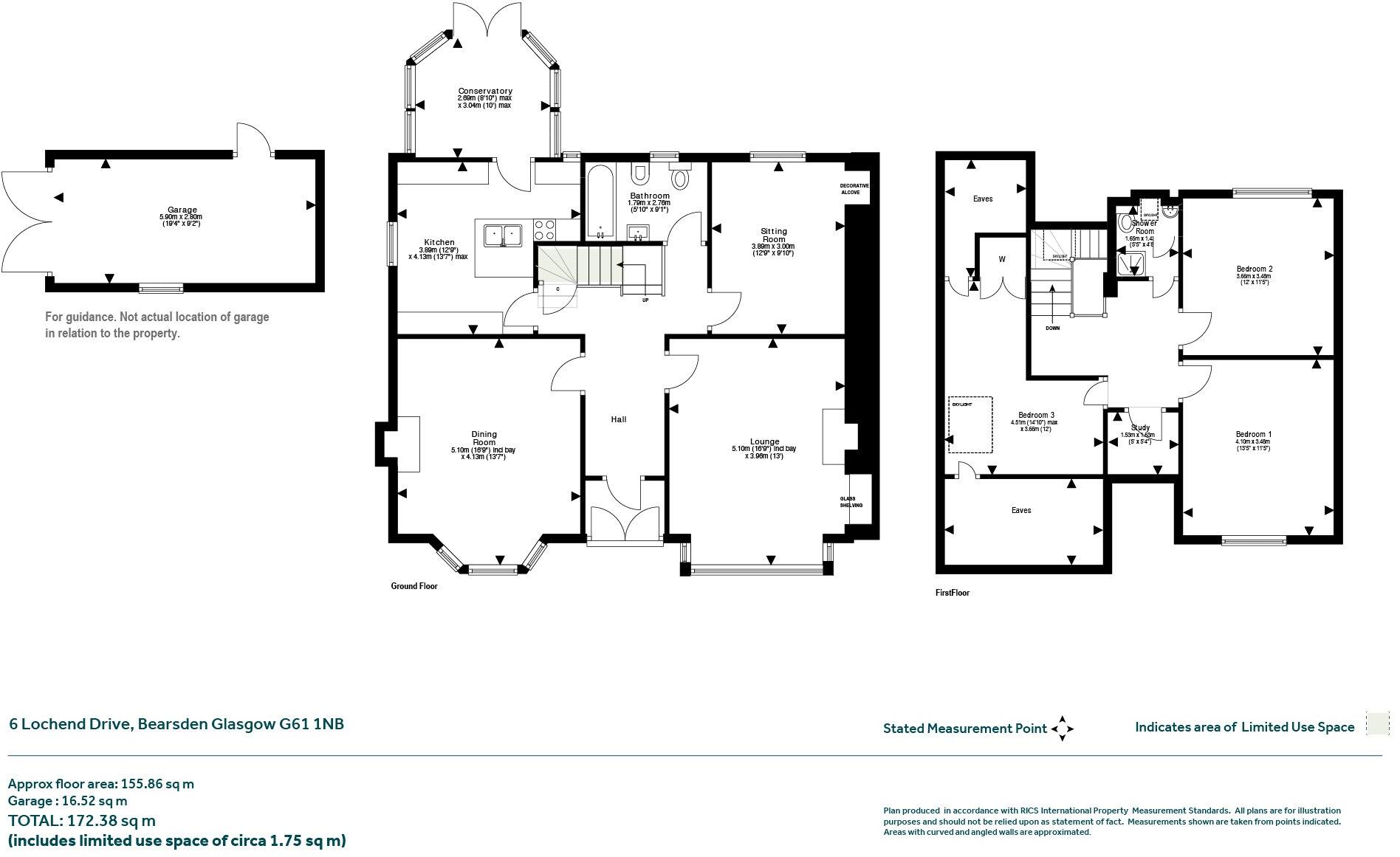
This substantial 1930s semi-detached bungalow sits on a prime corner plot in a quiet, tree-lined Bearsden street and offers generous, flexible family accommodation across 1,677 sq ft. Well-proportioned rooms, retained period features and a bright conservatory provide immediate comfort, while the detached garage and driveway give practical parking and storage.
The house is presented in largely ready-to-live-in condition but retains clear scope for updating kitchens and bathrooms to suit a new owner’s tastes. There is notable potential to extend or reconfigure the house (subject to local authority consent) thanks to the level plot and sizeable gardens. Fast broadband and excellent mobile signal make the home well suited to modern working arrangements.
Practical points to note: the property is freehold with an EPC rating of C and sits in Council Tax Band F, so running costs should be considered. The local area data includes a note of deprivation despite the immediate neighbourhood’s affluent, pre-war character; buyers should verify local services and schooling expectations. Early inspection is recommended for families seeking room, period charm and development potential in a well-located Bearsden address.
4 bedroom detached bungalow for sale in 14 Cromalt Crescent, Bearsden, G61 4RX, G61 — £475,000 • 4 bed • 2 bath • 1565 ft²
4 bedroom detached house for sale in Muirhouse Park, Bearsden, G61 — £518,000 • 4 bed • 2 bath • 1840 ft²
3 bedroom bungalow for sale in Balmoral Drive, Bearsden, Glasgow, East Dunbartonshire, G61 — £400,000 • 3 bed • 2 bath • 1157 ft²
3 bedroom semi-detached bungalow for sale in 32 Buchanan Drive, Bearsden, G61 2EW, G61 — £525,000 • 3 bed • 2 bath • 1884 ft²
3 bedroom detached bungalow for sale in 4 Lubnaig Gardens, Bearsden, G61 4QX, G61 — £345,000 • 3 bed • 1 bath • 1324 ft²
3 bedroom detached house for sale in Hutchison Drive, Bearsden, G61 — £330,000 • 3 bed • 1 bath • 1410 ft²










































































































































