Large private garden and garage in quiet cul-de-sac near good schools.
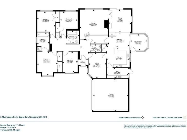
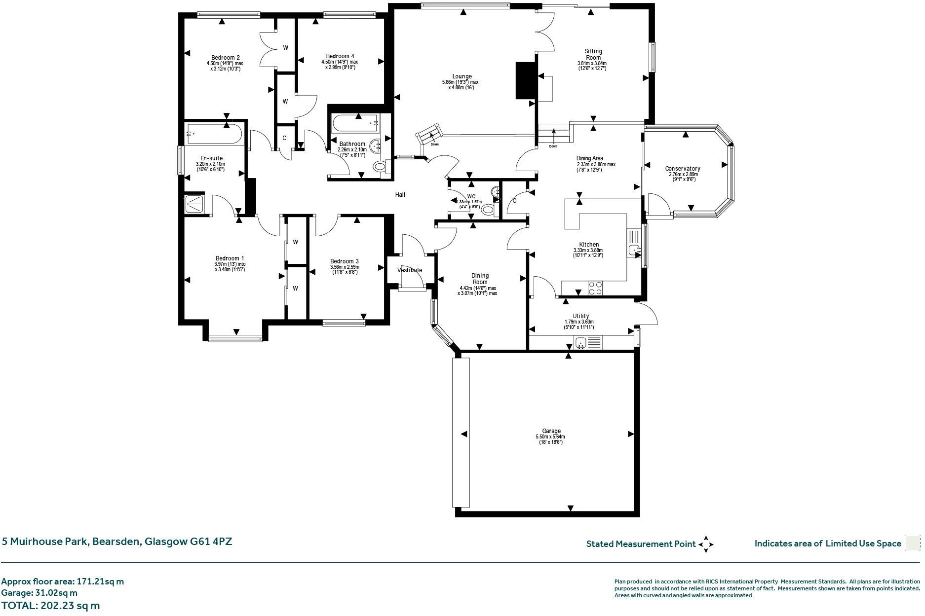
Detached bungalow mainly on one level, about 1,840 sq ft
A spacious, mostly single-level detached bungalow offering about 1,840 sq ft of flexible family accommodation in a quiet six-house cul-de-sac. The layout includes two reception rooms, a conservatory, dining kitchen, utility, cloakroom, four bedrooms, an ensuite and family bathroom — plenty of space for living, working from home and entertaining.
The house has been well maintained by long-term owners and sits on a large, private garden plot with driveway parking and an attached garage with internal access. The property benefits from excellent mobile signal, fast broadband and a sought-after Baljaffray/Bearsden school catchment, while being close to local shops, leisure facilities and rail links into Glasgow.
There is scope to personalise and modernise decoration and kitchen/bathroom finishes to current tastes — the building is fundamentally sound but would reward cosmetic updating. Note practical considerations: EPC band C and Council Tax band G (quite expensive). The property is freehold and presents strong appeal for growing families seeking space on one level in a comfortable suburb.
Buyers should also be aware the wider area is classified as having pockets of deprivation; prospective purchasers may wish to verify local services and long-term area plans. No flooding risk has been identified.
4 bedroom detached bungalow for sale in 14 Cromalt Crescent, Bearsden, G61 4RX, G61 — £475,000 • 4 bed • 2 bath • 1565 ft²
3 bedroom detached bungalow for sale in 4 Lubnaig Gardens, Bearsden, G61 4QX, G61 — £345,000 • 3 bed • 1 bath • 1324 ft²
3 bedroom detached bungalow for sale in 6 Borland Road, Bearsden, G61 2NB, G61 — £485,000 • 3 bed • 3 bath • 1216 ft²
4 bedroom detached house for sale in Birnam Crescent, Bearsden, G61 — £410,000 • 4 bed • 2 bath • 1636 ft²
3 bedroom bungalow for sale in Balmoral Drive, Bearsden, Glasgow, East Dunbartonshire, G61 — £400,000 • 3 bed • 2 bath • 1157 ft²
4 bedroom detached house for sale in Mosspark Road, Milngavie, G62 — £725,000 • 4 bed • 2 bath • 2000 ft²






















































































































































