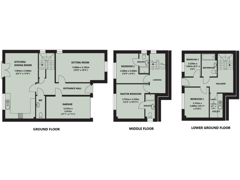
**Standout Features:**
- Modern 4-bedroom detached home across three levels
- 2 en-suite bedrooms & spacious family bathroom
- Expansive kitchen/dining area with Juliette balcony and integrated appliances
- South-facing private garden with various seating areas
- Garage and driveway with parking for 3-4 vehicles
- Far-reaching views over Tamar Valley
- No onward chain and remaining NHBC warranty
This modern, reverse-level 4-bedroom detached home located in the desirable Tamar Meadows development of St Ann's Chapel offers an exceptional living experience with stunning views of the Tamar Valley. The generous layout is designed for both comfort and flexibility, featuring two large en-suite bedrooms on the middle floor, ideal for families or hosting guests. The heart of the home is the expansive kitchen/dining area, perfect for entertaining, boasting contemporary style and natural light through its Juliette balcony.
Outside, enjoy a south-facing private garden equipped with terraced seating areas and a gazebo, providing a tranquil retreat for summer gatherings. The property benefits from a garage and ample driveway parking, ensuring convenience and practicality. With no onward chain, families, and investors alike will appreciate this unique opportunity. Additionally, there is potential to convert the lower level into a self-contained unit, making it perfect for multi-generational living. Don’t miss your chance to own this remarkable home, enhanced by the beautiful rural setting and low crime rates, all while enjoying the benefits of fast broadband and excellent mobile coverage in a friendly village atmosphere.
4 bedroom house for sale in St Ann`s Chapel., PL18 — £350,000 • 4 bed • 2 bath • 1130 ft²
4 bedroom detached house for sale in St. Anns Chapel, Gunnislake, PL18 — £359,950 • 4 bed • 3 bath • 1626 ft²
4 bedroom detached house for sale in Buzzard Rise, St Anns Chapel, Gunnislake, PL18 — £300,000 • 4 bed • 2 bath • 1001 ft²
3 bedroom terraced house for sale in St Ann's Chapel, Cornwall, PL18 — £260,000 • 3 bed • 2 bath • 862 ft²
4 bedroom detached house for sale in Buzzard Rise, St Anns Chapel, Gunnislake, PL18 — £330,000 • 4 bed • 2 bath • 1107 ft²
4 bedroom house for sale in St Ann`s Chapel, Gunnislake, PL18 — £415,000 • 4 bed • 2 bath • 1421 ft²






















































































































