Affordable one-bedroom flat with balcony, communal gardens and nearby transport links..
Chain free ground-floor one-bedroom apartment
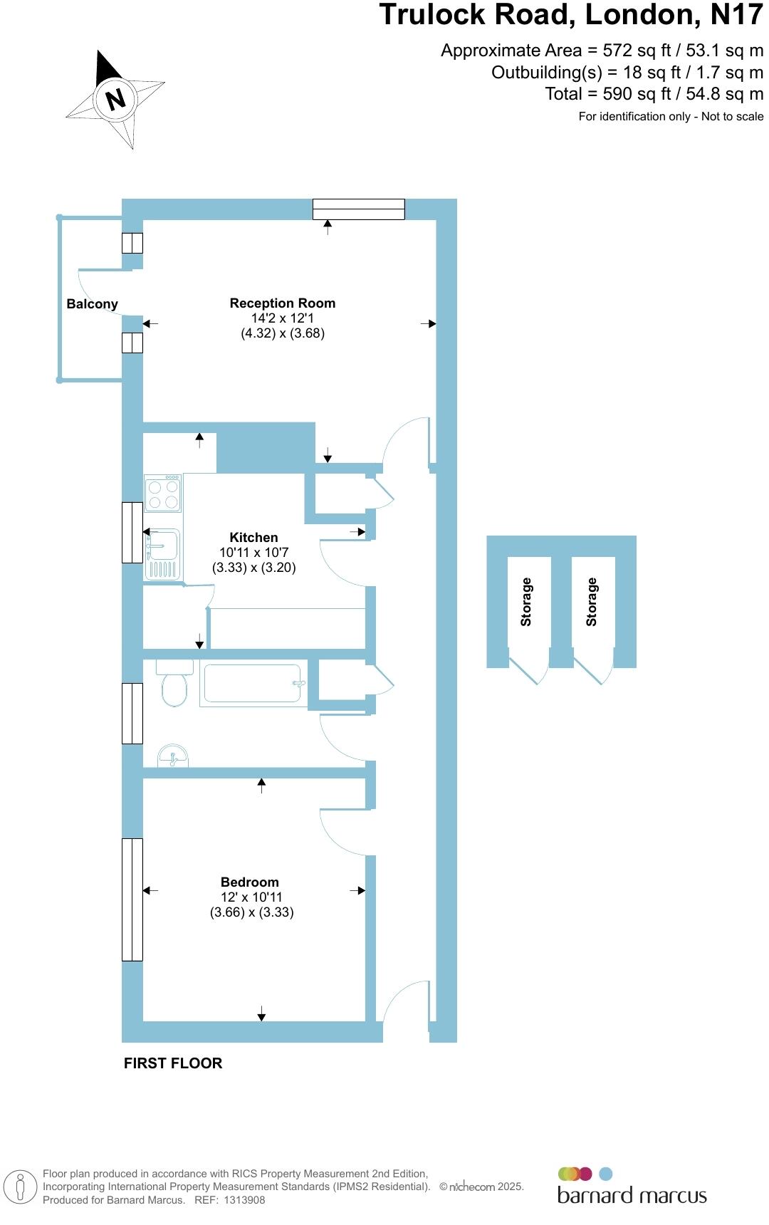
This one-bedroom ground-floor apartment offers an affordable entry into N17, sold chain free and roughly 572 sq ft. The flat includes a separate reception room, fitted kitchen, three-piece bathroom, private balcony and two external storage areas — practical features for first-time buyers or buy-to-let investors. Communal gardens and off-street parking add outdoor space and convenience in a mid-20th-century development.
The location is close to White Hart Lane and Northumberland Park stations (about 0.4 miles) and within easy reach of Tottenham Hotspur Stadium, local shops and bus links — useful for commuting and rental demand. The property has gas central heating, double glazing and straightforward room layouts that suit simple refurbishment or immediate occupation.
Buyers should be aware of material considerations: the flat is leasehold with 88 years remaining and an average service charge of £1,800 per year; additional leasehold or admin fees may apply. The building is system-built (1950–66) with assumed no installed wall insulation, and the wider area shows high crime and significant deprivation indicators. Broadband speeds are average and the apartment is small to modest in size.
This home works well for buyers wanting a low-entry purchase in North Tottenham — either as a starter home to personalise or as a rental purchase with reasonable transport links. Factor in lease length, service charges and potential upgrade costs (insulation, modern finishes) when comparing value.
1 bedroom flat for sale in Trulock Road, London, N17 — £180,000 • 1 bed • 1 bath • 572 ft²
1 bedroom flat for sale in Waverley Road, Tottenham, London, N17 — £250,000 • 1 bed • 1 bath • 529 ft²
1 bedroom apartment for sale in Creighton Road, Tottenham, N17 — £240,000 • 1 bed • 1 bath • 458 ft²
1 bedroom maisonette for sale in Hamilton Close, London, N17 — £290,000 • 1 bed • 1 bath • 535 ft²
2 bedroom apartment for sale in Northumberland Park, London, N17 — £350,000 • 2 bed • 1 bath • 553 ft²
1 bedroom flat for sale in Cannon Road, London, N17 — £300,000 • 1 bed • 1 bath • 557 ft²














































