**Standout Features:**
- Four spacious bedrooms, all with built-in wardrobes
- South-facing expansive garden
- Integral garage and large driveway with off-street parking for two cars
- Current condition: Well-maintained throughout
- Potential for extension and use of a large loft space
- Chain free purchase
**Notable Concerns:**
- High crime rate in the area
- Local deprivation level is very high
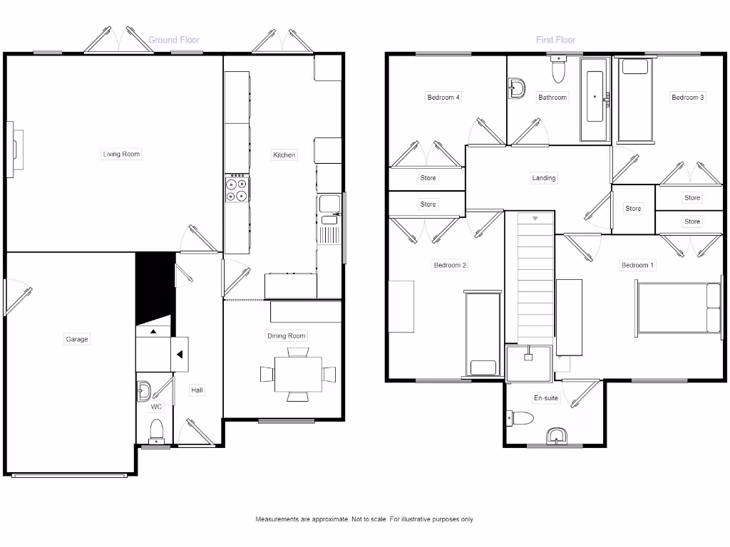
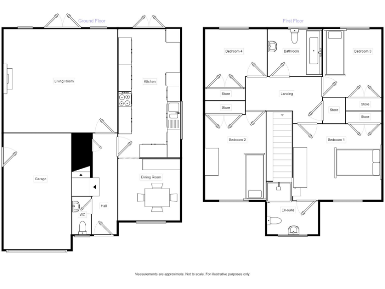
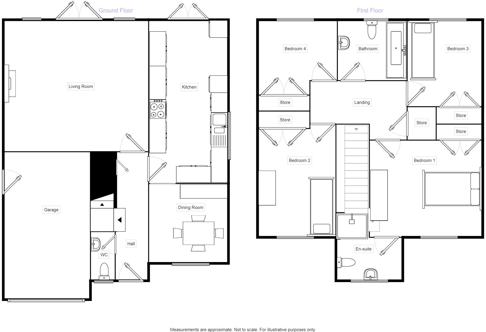
Step into comfort and versatility with this beautifully kept four-bedroom detached home, perfect for families or first-time buyers seeking a touch of modern living. Enjoy the light-filled interior that features a spacious lounge with elegant French doors leading to a generous South-facing garden, ideal for outdoor activities and gatherings. The integrated garage and off-street parking enhance convenience for families with multiple vehicles.
Inside, you'll find a well-designed layout including a contemporary kitchen with integrated appliances, a dining area, and a separate downstairs WC. Each of the four double bedrooms is complete with built-in storage, while the main bedroom offers the luxury of an en-suite bathroom. With UPVC double glazing and gas central heating throughout, this home provides both comfort and energy efficiency.
Located in an area with available amenities and immediate access to local transportation, this property blends comfort with potential. However, it's essential to consider the area's high crime rate and very high deprivation levels, which may impact future resale value. The combination of its generous living space, ample parking, and potential for future expansion makes this home a unique opportunity not to be missed.
4 bedroom detached house for sale in Oak Close, West Derby, Liverpool, Merseyside, L12 — £350,000 • 4 bed • 3 bath • 1190 ft²
4 bedroom detached house for sale in Longfellow Close, Kirkby, Liverpool, Merseyside, L32 — £300,000 • 4 bed • 3 bath • 1395 ft²
4 bedroom detached house for sale in Haymans Grove, Liverpool, L12 — £415,000 • 4 bed • 3 bath • 867 ft²
4 bedroom detached house for sale in Abbey View, Liverpool, Merseyside, L16 — £425,000 • 4 bed • 1 bath • 1108 ft²
4 bedroom detached house for sale in The Pines, Liverpool, Merseyside, L12 — £325,000 • 4 bed • 2 bath • 1843 ft²
4 bedroom detached house for sale in Colonel Drive, West Derby, Liverpool, Merseyside, L12 — £495,000 • 4 bed • 3 bath • 1308 ft²










































































