Period character, large gardens and excellent schools — ideal for family buyers seeking space and location..
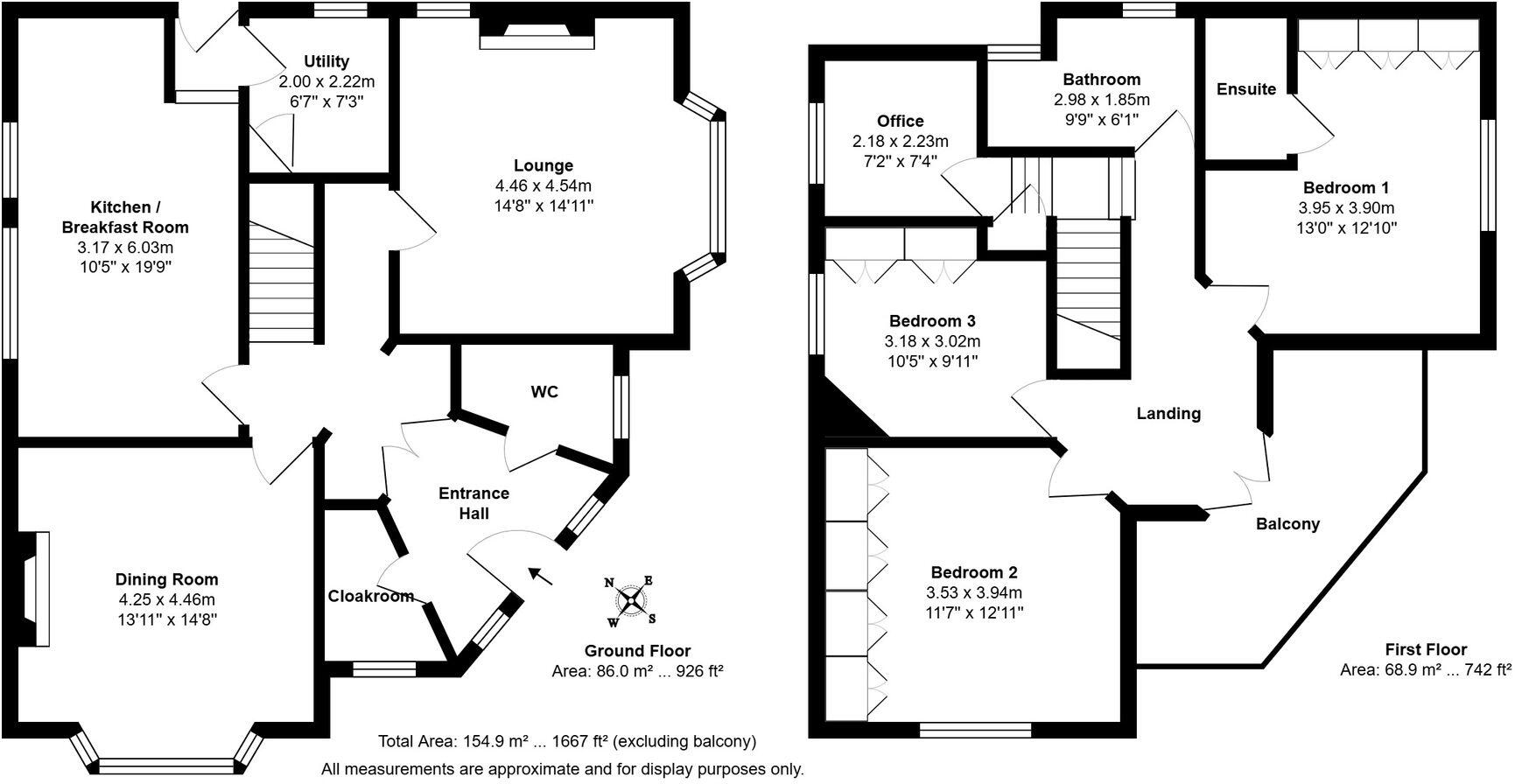
Four bedrooms, three bathrooms, principal with en suite and private balcony
Large landscaped gardens, picturesque summer house and private courtyard
Electric gates, private driveway parking and integral garage
Open-plan breakfast kitchen with adjoining utility room
Double glazing fitted before 2002; may require upgrade
Cavity walls likely uninsulated (as built) — energy improvements advised
EPC rating D and council tax described as expensive
Short walk to town centre and top-rated local schools
Situated on Park Avenue and overlooking The Oval, this handsome four-bedroom Tudor‑style detached house blends period character with family‑scaled living. The large open-plan kitchen and separate reception rooms give flexible space for everyday family life and entertaining, while a principal bedroom with en suite and balcony provides a private retreat.
Externally the plot is a major asset: landscaped gardens, a charming summer house, courtyard and electric-gated driveway leading to an integral garage offer excellent outdoor living and parking. The property sits a short stroll from Harrogate town centre and highly regarded schools, making it particularly appealing to families seeking both convenience and community.
Buyers should note some practical considerations: the EPC is rated D, the glazing is double glazing installed before 2002 and the cavity walls appear to lack insulation. Council tax is expensive. These are straightforward issues for a buyer planning sympathetic updating or energy improvements.
Overall this is a generous, well‑located family home with strong period appeal and significant outdoor space. It suits buyers looking for a comfortable, characterful house in a very affluent Harrogate neighbourhood, with potential to improve energy efficiency and modernise to personal taste.
5 bedroom detached house for sale in Wetherby Road, Harrogate, HG2 — £875,000 • 5 bed • 2 bath • 2965 ft²
6 bedroom detached house for sale in Coppice Drive, Harrogate, HG1 — £995,000 • 6 bed • 2 bath • 3079 ft²
4 bedroom semi-detached house for sale in Harlow Oval, Harrogate, HG2 — £675,000 • 4 bed • 2 bath • 1656 ft²
4 bedroom detached house for sale in St. Winifreds Road, Harrogate, HG2 — £825,000 • 4 bed • 2 bath • 1792 ft²
6 bedroom semi-detached house for sale in Otley Road, Harrogate, HG2 — £895,000 • 6 bed • 4 bath • 3140 ft²
4 bedroom detached house for sale in Pannal Ash Road, Harrogate, HG2 — £825,000 • 4 bed • 2 bath • 2065 ft²














































































































