Extended living, private garden and family-ready layout close to schools and transport.
Gated driveway with two allocated off-street parking spaces
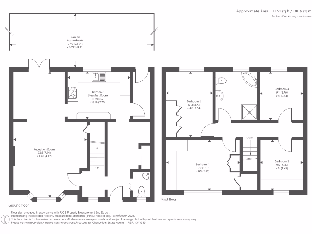
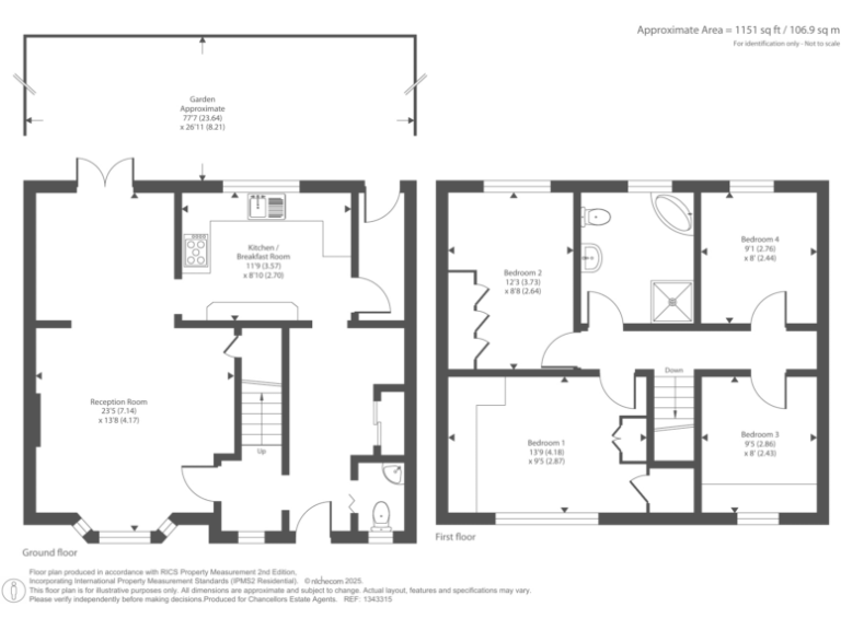
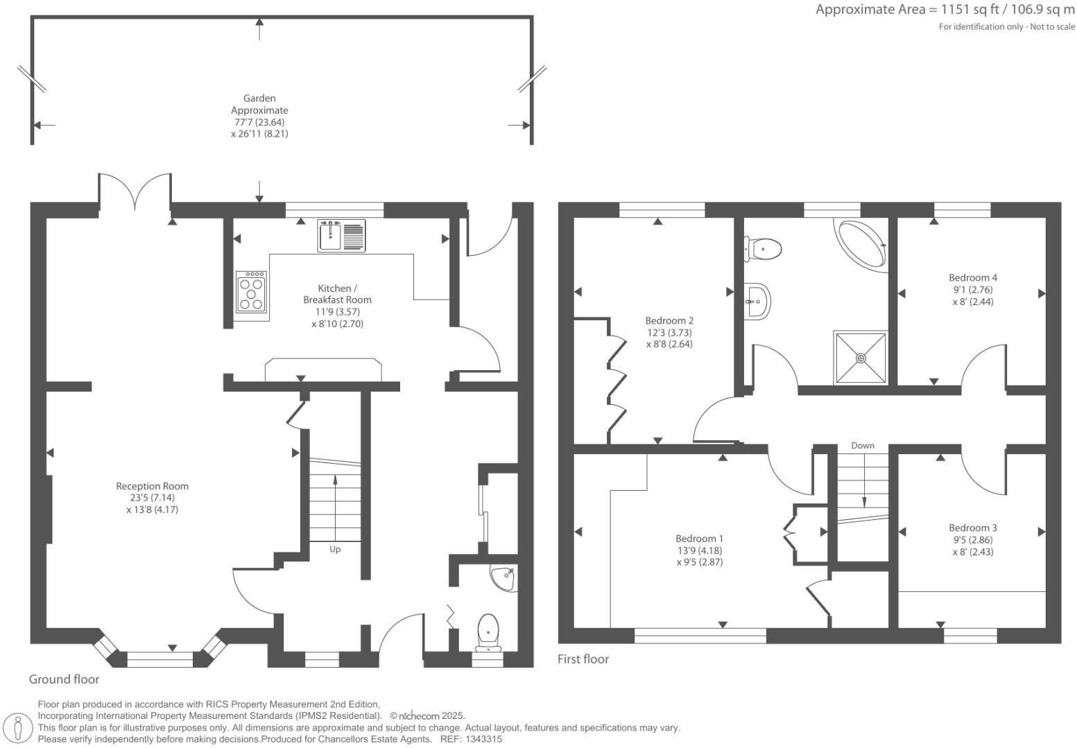
This mid-20th-century four-bedroom semi-detached house offers practical family living on a decent plot in Staines-upon-Thames. The property benefits from a gated driveway with two allocated spaces, a private rear garden and a large extended ground-floor living space that creates flexible reception and utility room options. Built-in wardrobes across bedrooms add convenience for families and storage needs.
The house is solid-brick construction from the 1930–1949 era with double glazing (installation date unknown) and mains gas central heating via boiler and radiators. The layout delivers one four-piece family bathroom and a separate downstairs WC — serviceable for daily family routines but potentially tight at peak times for a four-bedroom home.
Practical considerations include slow broadband speeds locally and an assumed lack of wall insulation (typical for the build period), which may mean higher heating costs until upgraded. Council tax is noted as expensive for the area. The property is freehold and presents clear scope for cosmetic updating or energy-improvement works to increase comfort and long-term value.
4 bedroom detached house for sale in Worple Road, Staines-upon-Thames, Surrey, TW18 — £780,000 • 4 bed • 2 bath • 1336 ft²
3 bedroom semi-detached house for sale in Allyn Close, Staines-upon-Thames, Surrey, TW18 — £575,000 • 3 bed • 1 bath • 1141 ft²
4 bedroom semi-detached house for sale in Florence Gardens, Staines-upon-Thames, Surrey, TW18 — £600,000 • 4 bed • 3 bath • 1306 ft²
5 bedroom semi-detached house for sale in Penton Road, Staines, Surrey, TW18 — £825,000 • 5 bed • 3 bath • 2224 ft²
5 bedroom semi-detached house for sale in Rosefield Road, Staines-upon-Thames, Surrey, TW18 — £750,000 • 5 bed • 2 bath • 1603 ft²
3 bedroom semi-detached house for sale in Stanwell Gardens, Stanwell, Staines-upon-Thames, Surrey, TW19 — £565,000 • 3 bed • 1 bath • 1111 ft²


















































































