Secure, social retirement apartment close to Thame town centre.
Modern fitted kitchen with integrated appliances and under-cabinet lighting
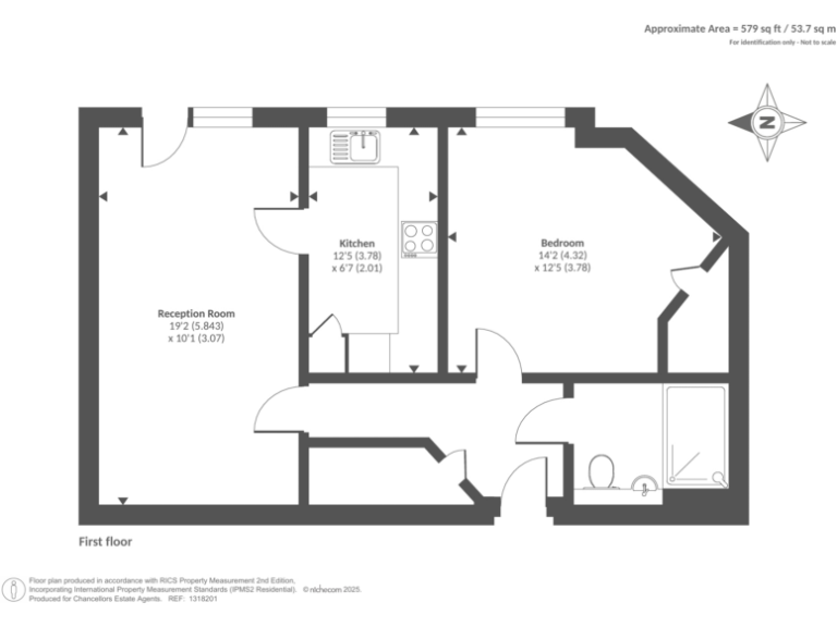
Yeats Lodge offers a one-bedroom retirement apartment in the heart of Thame, designed for comfortable, low-maintenance living. The apartment features a modern fitted kitchen with integrated appliances, a double bedroom with walk-in wardrobe, and a large walk-in shower — all arranged in an efficient 579 sq ft layout. Ground-source community heating and good insulation help reduce running costs.
Residents benefit from on-site support and social amenities, including a Lodge Manager five days a week, a 24-hour Careline, an Owners’ Lounge with coffee bar and regular events, landscaped gardens, a Guest Suite for visitors and private off-street parking. The development is within walking distance of Thame town centre, local shops, transport links and medical services.
Costs and occupancy rules are important to note: the property is listed as freehold while a long lease term is recorded (976 years remaining). Annual service charges and ground rent apply, and there is a 1% resale contingency fee payable on sale. Prospective buyers should verify all charges, lease terms and any restrictions before committing.
This apartment suits downsizers seeking a modern, secure retirement base with social facilities and easy access to town amenities. It offers a ready-made community and low-maintenance living, but budget for ongoing service charges and ground rent when assessing affordability.
1 bedroom retirement property for sale in Thame, Oxfordshire, OX9 — £399,950 • 1 bed • 1 bath • 556 ft²
1 bedroom retirement property for sale in Thame, Oxfordshire, OX9 — £399,950 • 1 bed • 1 bath • 557 ft²
1 bedroom retirement property for sale in Thame, Oxfordshire, OX9 — £427,950 • 1 bed • 1 bath • 602 ft²
1 bedroom retirement property for sale in Thame, Oxfordshire, OX9 — £409,950 • 1 bed • 1 bath • 548 ft²
1 bedroom apartment for sale in Greyhound Lane, Thame, OX9 — £340,000 • 1 bed • 1 bath • 590 ft²
1 bedroom retirement property for sale in Yeats Lodge, Thame, OX9 — £360,000 • 1 bed • 1 bath • 585 ft²






















































































