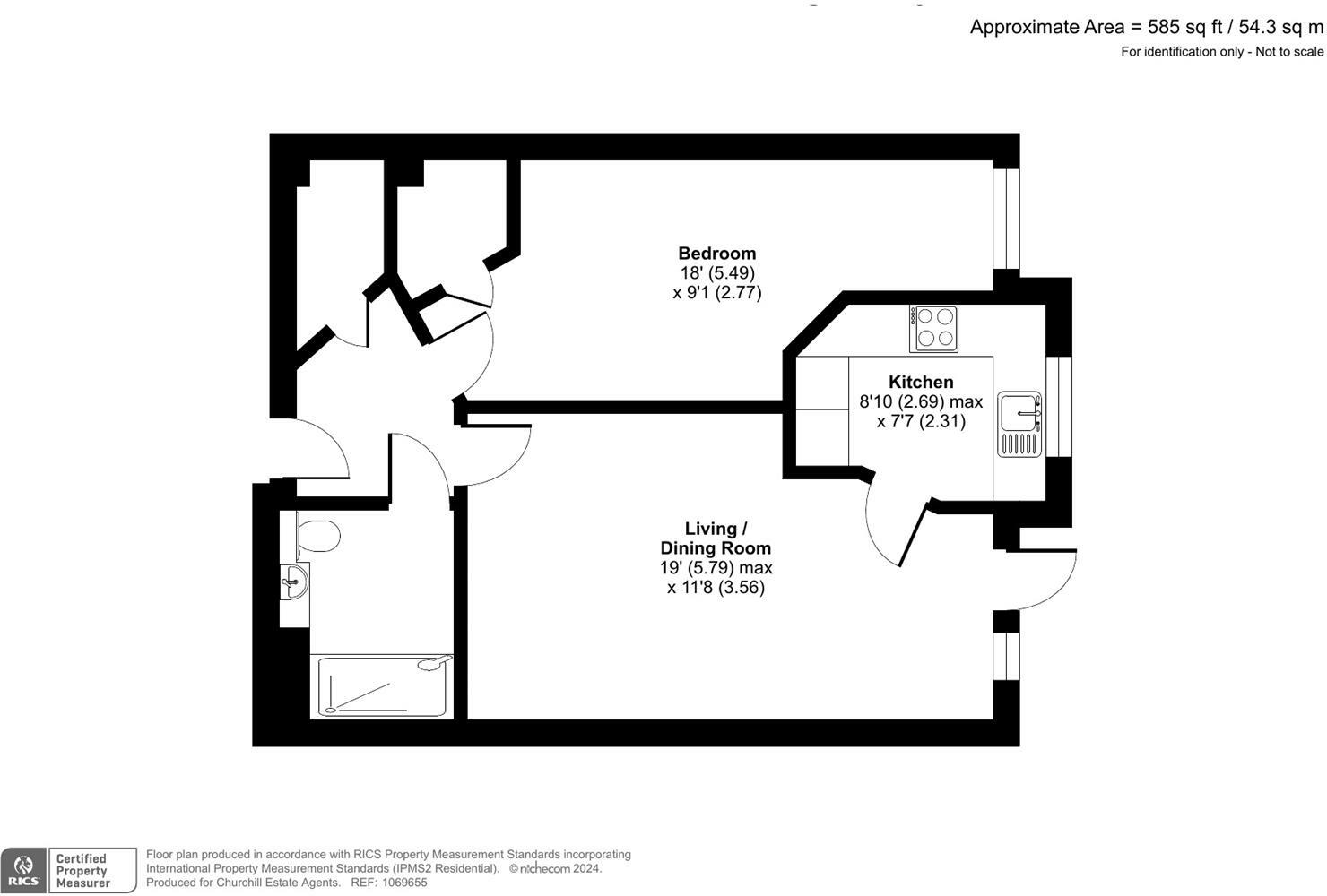
**Standout Features:**
- Newly renovated one-bedroom ground floor retirement apartment
- Modern fitted kitchen with integrated appliances
- Private patio area and access to communal gardens
- Onsite Lodge Manager available five days a week
- 24-hour Careline system for enhanced safety
- Owners’ Lounge with regular social events and a guest suite for visitors
- Chain-free sale with a long lease of 997 years remaining
**Summary:**
Experience the comfort and convenience of this modern, newly renovated one-bedroom retirement apartment located in the charming market town of Thame. Boasting a stylish kitchen with integrated appliances, a spacious lounge leading to a private patio area, and a generously sized bedroom with a walk-in wardrobe, this property is perfect for relaxed living. The 24-hour Careline system and onsite Lodge Manager reflect a commitment to safety and community engagement, making this a truly inviting environment for mature residents.
With an annual service charge that covers extensive amenities including building insurance, utility maintenance, and social events, you’ll enjoy not only a home but also a vibrant community. Nestled within a peacefully landscaped development, Yeats Lodge is just moments away from local shops, cafes, and transport links to London Marylebone, ensuring ease of access to all that your future lifestyle may offer.
This apartment not only provides immediate comfort but also encourages an active and fulfilling lifestyle in a supportive environment. Don’t miss the opportunity to embrace this unique retirement living experience!
1 bedroom retirement property for sale in Thame, Oxfordshire, OX9 — £399,950 • 1 bed • 1 bath • 556 ft²
1 bedroom retirement property for sale in Thame, Oxfordshire, OX9 — £419,950 • 1 bed • 1 bath • 579 ft²
1 bedroom apartment for sale in Thame, Oxfordshire, OX9 — £427,950 • 1 bed • 1 bath • 520 ft²
1 bedroom apartment for sale in Greyhound Lane, Thame, OX9 — £340,000 • 1 bed • 1 bath • 590 ft²
1 bedroom retirement property for sale in Thame, Oxfordshire, OX9 — £399,950 • 1 bed • 1 bath • 557 ft²
1 bedroom retirement property for sale in Greyhound Lane, Thame, OX9 — £350,000 • 1 bed • 1 bath • 580 ft²


























































