S11 7AD - 3 bedroom apartment for sale in Rustlings Road, Endcliffe P…

View on Property Piper

3 bedroom apartment for sale in Rustlings Road, Endcliffe Park, S11

Summary - 157 RUSTLINGS ROAD SHEFFIELD S11 7AD

3 bed 2 bath Apartment

Renovated three-bedroom apartment with park views, courtyard, garage and long lease.
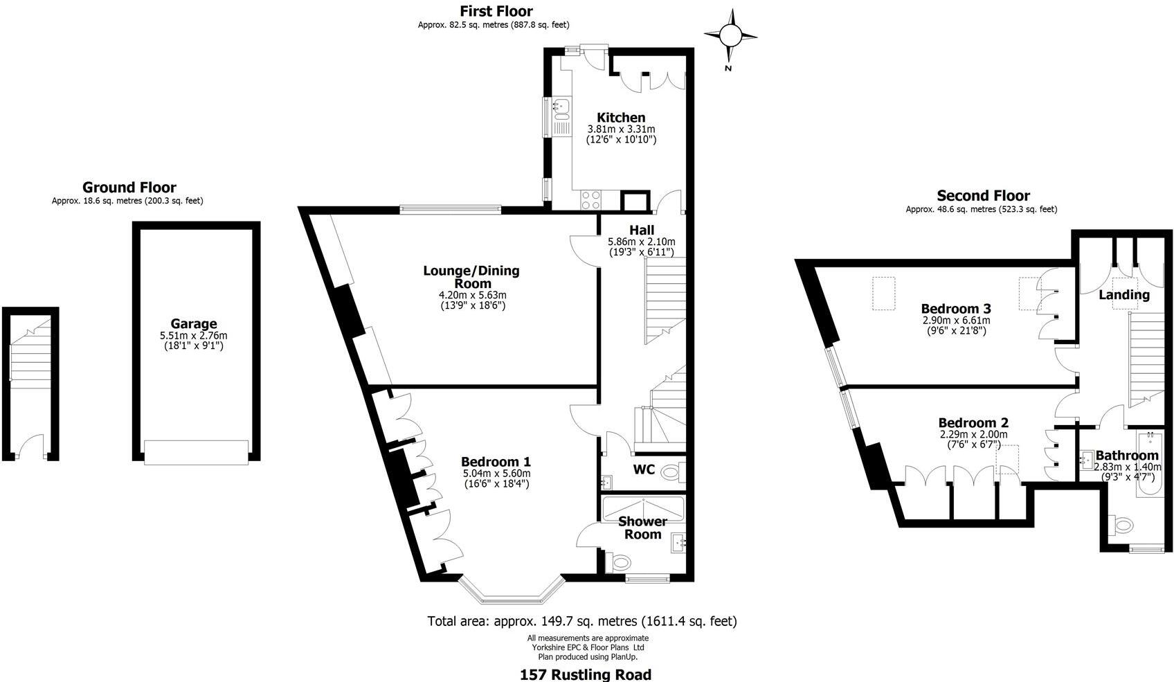
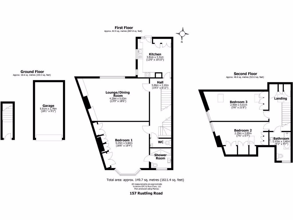
Three double bedrooms over two floors with large main en‑suite
Set over two floors with direct views over Endcliffe Park, this newly renovated three-bedroom apartment combines period character with modern finishes. The large main bedroom with en‑suite and bay window faces the park; two further double bedrooms occupy the top floor alongside a generous family bathroom and boarded loft access. The open-plan kitchen diner opens to a terraced balcony and a substantial private courtyard, making indoor-outdoor living effortless.

Practical benefits include a detached garage plus an additional off-road parking space, a long lease (991 years) and recent upgrades throughout — full rewire, new sash-style double glazing, new kitchen, bathrooms and parquet flooring. Council Tax Band C and a service charge of £1,614 per year are payable. EPC rating D and medium flood risk should be factored into insurance and running-cost plans.

This apartment will suit families or professionals who value green outlooks and space close to Ecclesall Road amenities and top local schools. It is offered chain free and ready to move into, but buyers wanting further energy efficiency improvements should note the solid brick walls are assumed uninsulated. The situation beside Endcliffe Park delivers a rare combination of park-side tranquillity with excellent city and Peak District access.

Property Details

Brochure Descriptions

Image Descriptions

Floorplan Description

Rooms

Textual Property Features

Target Audience

AI Tags

Detected Visual Features

EPC Details

Nearby Schools

Nearest Bars And Restaurants

,,,,}

Nearest General Shops

,,}

Nearest Grocery shops

,,}

Nearest Supermarkets

,,}

Nearest Religious buildings

,,}

Nearest Medical buildings

,,,}

Nearest Leisure Facilities

,,,,}

Nearest Tourist attractions

,,}

Nearest Train stations

,,,,}

Nearest Bus stations and stops

,,,,}

Nearest Hotels

,,}

Tags

Local Market Stats

AirBnB Data

Similar Properties

Meta

High Res Images

Compatible Images

Low res Images

Thumbnails

Raw Images

High Res Floorplan Images

Compatible Floorplan Images

Low res Floorplan Images

FloorplanImages Thumbnail

Raw Floorplan Images