DE56 4GH - 2 bedroom property for sale in Wirksworth Road, Duffield, B…

View on Property Piper

2 bedroom property for sale in Wirksworth Road, Duffield, Belper, DE56

Summary - 6, Wirksworth Road, Duffield, BELPER DE56 4GH

2 bed 3 bath Not Specified

### Standout Features:
- **Mixed-use investment**: Ground floor commercial unit + two one-bedroom apartments
- **Strong rental income**: Total annual revenue of £30,540 from existing tenancies
- **Excellent location**: Situated in the sought-after village of Duffield with good amenities
- **Contemporary design**: Stylish open-plan living spaces in the apartments
- **Secure leases**: Ground floor commercial space with a 5-year lease and both apartments currently let

### Summary:
Explore this exceptional mixed-use investment opportunity on Wirksworth Road in the charming village of Duffield, where a strategically located ground floor commercial unit pairs perfectly with two stylish one-bedroom apartments above. This property stands out with its strong rental income of £30,540 annually, ensuring consistent cash flow. The commercial space, which can serve as retail or office units, is securely rented for 5 years at an annual yield of £10,800, while the adjacent apartments command impressive monthly rents of £895 and £750 respectively.

Designed for modern living, each apartment features a contemporary open-plan layout filled with natural light, complemented by well-equipped kitchens and cozy living areas — ideal for young professionals or couples. Residents can enjoy the beauty of Duffield Village, renowned for its excellent amenities and proximity to the quaint market town of Belper.

Given the property's unique rental potential and desirable location, this is a rare find for investors looking to secure a profitable portfolio. Schedule your internal viewing by appointment only to fully grasp the value and opportunity this property presents. Don't miss out; properties like this are in high demand and won't last long!

Property Details

Brochure Descriptions

Image Descriptions

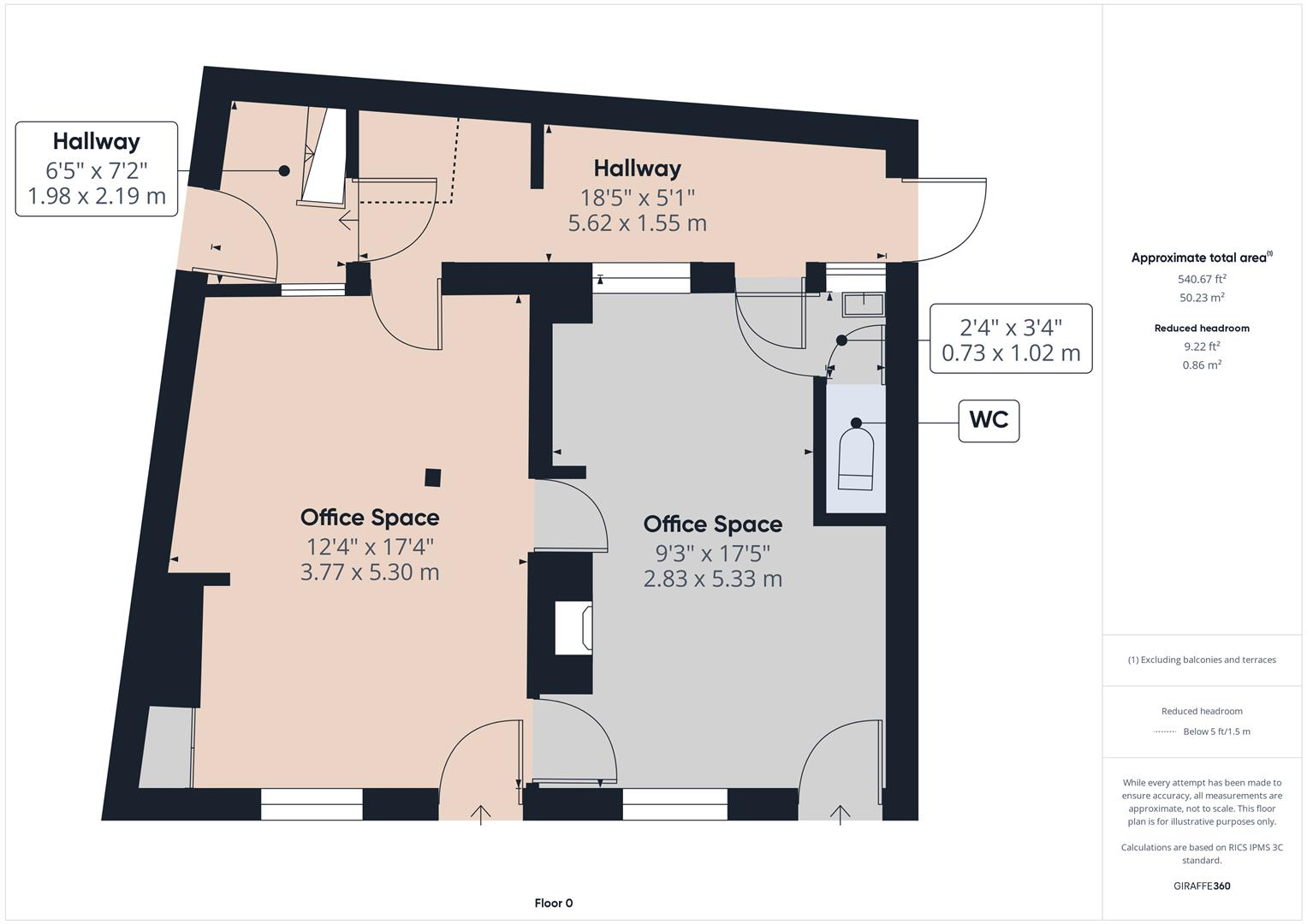
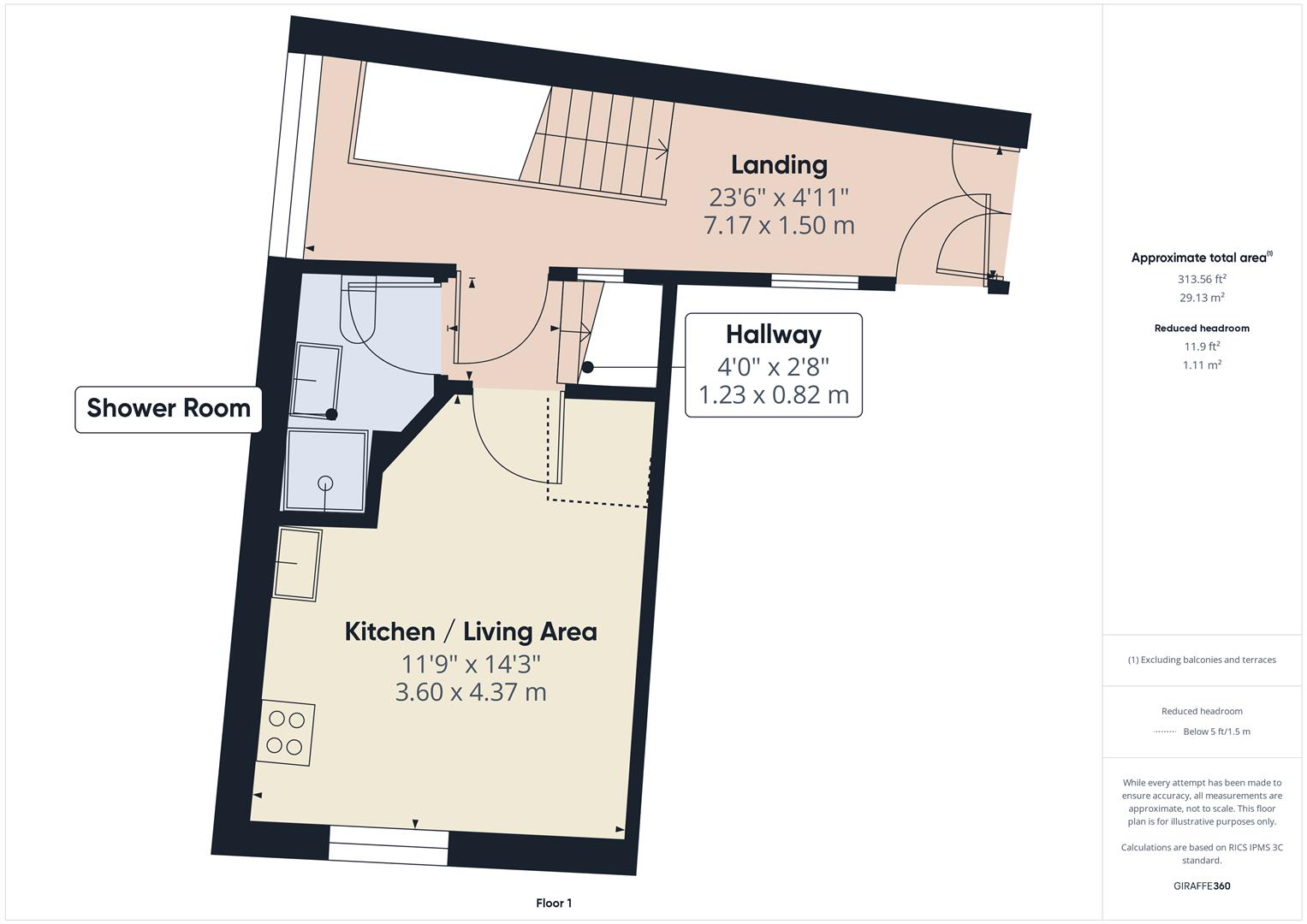
Floorplan Description

Rooms

Textual Property Features

Detected Visual Features

EPC Details

Nearby Schools

Nearest Bars And Restaurants

,,,,}

Nearest General Shops

,,}

Nearest Grocery shops

,,}

Nearest Supermarkets

,,}

Nearest Religious buildings

,,}

Nearest Medical buildings

,,,}

Nearest Airports

}

Nearest Leisure Facilities

,,,,}

Nearest Tourist attractions

,,}

Nearest Train stations

,,,,}

Nearest Bus stations and stops

,,,,}

Nearest Hotels

,,}

Tags

Local Market Stats

Similar Properties

Meta

High Res Images

Compatible Images

Low res Images

Thumbnails

Raw Images

High Res Floorplan Images

Compatible Floorplan Images

Low res Floorplan Images

FloorplanImages Thumbnail

Raw Floorplan Images