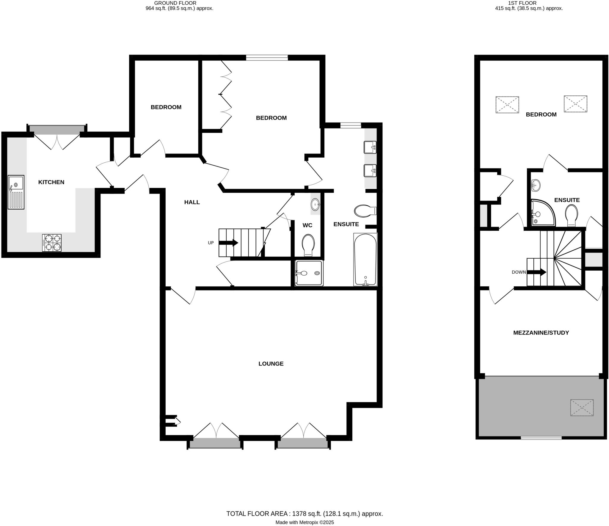
**Standout Features:**
- Luxury duplex apartment with three bedrooms and two en-suites.
- Spacious, light-filled lounge with 'Juliet' balconies offering scenic views of Kenilworth Common.
- Versatile mezzanine floor ideal for a home office or extra living space.
- Allocated and visitor parking available.
- Located in a peaceful, affluent area near local amenities and parks.
- Chain-free sale with 106 years left on the lease.
**Summary:**
Discover luxury living in this stunning three-bedroom duplex apartment located in the desirable town of Kenilworth. This beautifully designed residence features a bright and airy lounge with 'Juliet' balconies that provide serene views over Kenilworth Common, creating a perfect setting for both relaxation and entertaining. The versatile mezzanine adds valuable space, ideal for a home office or a quiet retreat. Two of the three bedrooms come complete with stylish en-suite bathrooms, enhancing comfort for families or guests.
With fast broadband and off-street parking options, this property meets modern needs while situated in a low-crime area, perfect for families seeking safety and community. Enjoy leisurely strolls to Abbey Fields and the Old Town, or simply take in the tranquility around in your personal haven. The property is leasehold with reasonable service charges, making it a fantastic investment opportunity or a perfect home for professionals looking for space, comfort, and style. Act quickly—this gem is chain-free and won't last long!
2 bedroom apartment for sale in High Street, Kenilworth, CV8 — £339,950 • 2 bed • 1 bath • 1060 ft²
2 bedroom apartment for sale in Fennyland Lane, Kenilworth, Warwickshire, CV8 — £200,000 • 2 bed • 2 bath • 842 ft²
3 bedroom apartment for sale in Warwick Road, Kenilworth, CV8 — £350,000 • 3 bed • 2 bath • 1103 ft²
3 bedroom apartment for sale in Warwick Road, Kenilworth, Warwickshire, CV8 — £400,000 • 3 bed • 2 bath • 662 ft²
1 bedroom apartment for sale in Albion Street, Kenilworth, CV8 — £145,000 • 1 bed • 1 bath • 515 ft²
3 bedroom apartment for sale in Kenilcourt, Clinton Lane, Kenilworth, CV8 — £289,950 • 3 bed • 1 bath • 676 ft²


















































































