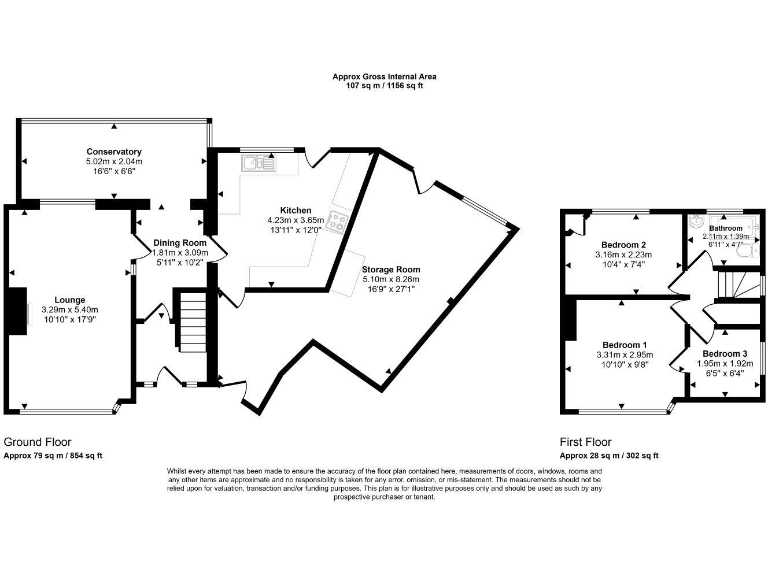
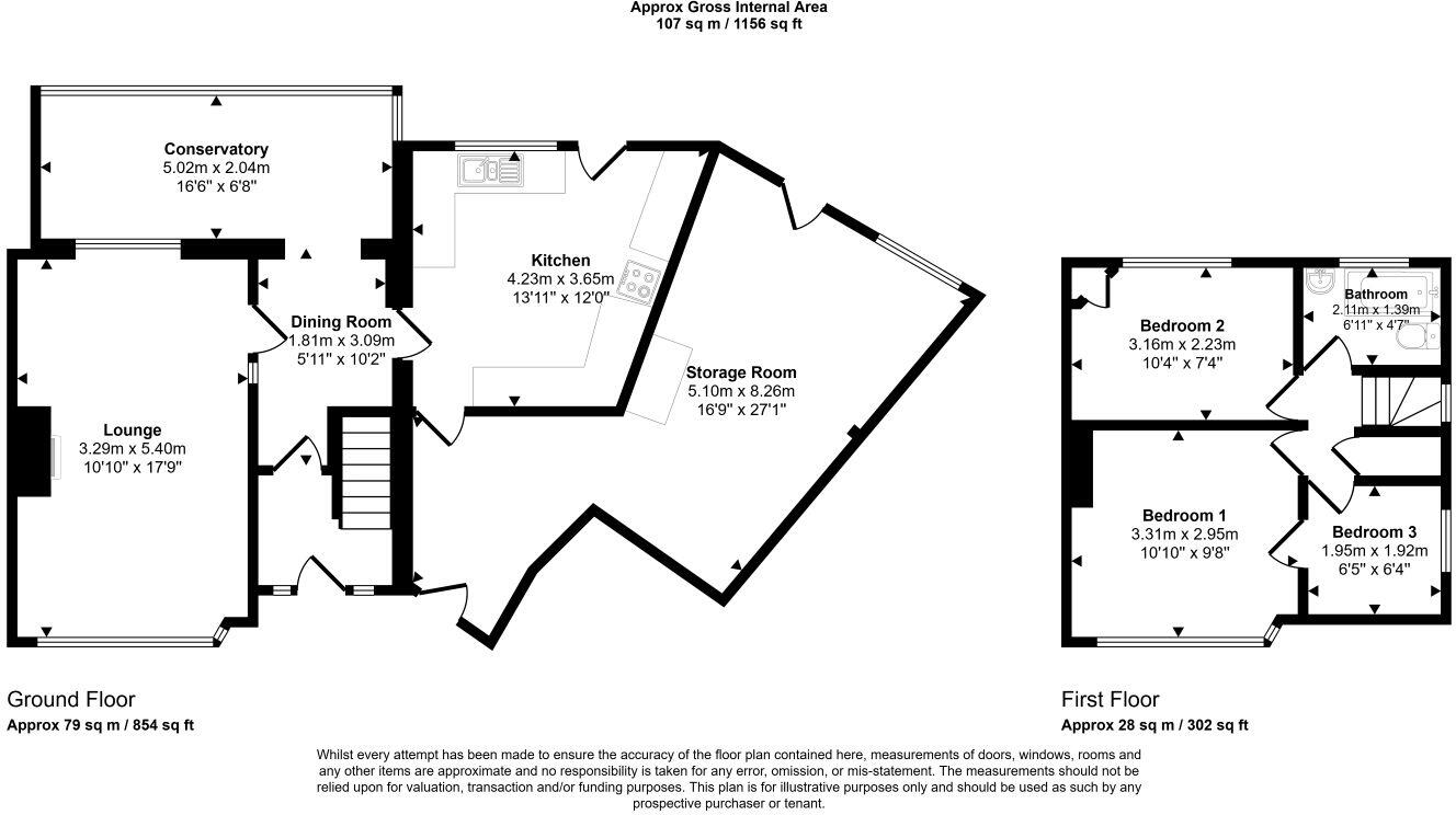
Three-bedroom semi with garage, garden and clear scope for value uplift.
Vacant Freehold three-bed semi-detached house with garage and driveway
Requires full modernisation; evidence of damp and mould internally
Front and rear gardens; decent plot with off-street parking
Located in cul-de-sac close to Liverpool city centre and parks
Auction sale on 4 Dec 2025; eight-week completion or earlier
Buyers’ fee payable; seller may charge additional completion fees
EPC TBC; expect energy upgrade costs and potential window repairs
Low local crime, excellent mobile signal and fast broadband
Lot 23 is a vacant, freehold three-bedroom semi with clear short-term upside for buyers prepared to renovate. Offered for online auction with an eight-week completion target, the property sits on a decent plot with off-street parking, a garage and front and rear gardens — practical assets for future buyers or lettings.
The house requires full modernisation: internal photos and description indicate damp/mould, dated fixtures, external damage and window repairs. These defects mean immediate works and costs are likely, but the property’s size, layout and location close to Liverpool city amenities and local parks give strong scope to add value.
Practical selling points include vacant possession, low local crime, excellent mobile signal and fast broadband — useful for tenants or buyers who need connectivity. Council Tax band B is relatively cheap; there is no flood risk. EPC rating is to be confirmed and buyers should factor potential energy-upgrade costs into any plan.
This lot will be sold at auction on 4 December 2025. A buyers’ fee applies (fee scale applies depending on sale price) and additional seller fees may be charged at completion. Purchase suits investors, developers or experienced first-time buyers who can manage renovation and auction-purchase timelines.
3 bedroom semi-detached house for sale in 7 Paley Close, Liverpool, L4 — £115,000 • 3 bed • 1 bath
3 bedroom semi-detached house for sale in Queens Drive, Liverpool, L4 — £130,000 • 3 bed • 1 bath • 924 ft²
3 bedroom terraced house for sale in 173 Stanley Park Avenue South, Liverpool, L4 — £75,000 • 3 bed • 1 bath • 1077 ft²
3 bedroom town house for sale in 46 Lonsdale Road, Ford, Liverpool, L21 — £80,000 • 3 bed • 1 bath • 905 ft²
3 bedroom terraced house for sale in 31 Halsbury Road, Kensington, Liverpool, L6 — £85,000 • 3 bed • 1 bath • 883 ft²
3 bedroom town house for sale in 11 Whalley Court, Bootle, Merseyside, L30 — £80,000 • 3 bed • 1 bath






















































































