Spectacular riverside grounds and huge flexible living close to the city centre.
Grade II listed water mill and separate Mill House on separate titles
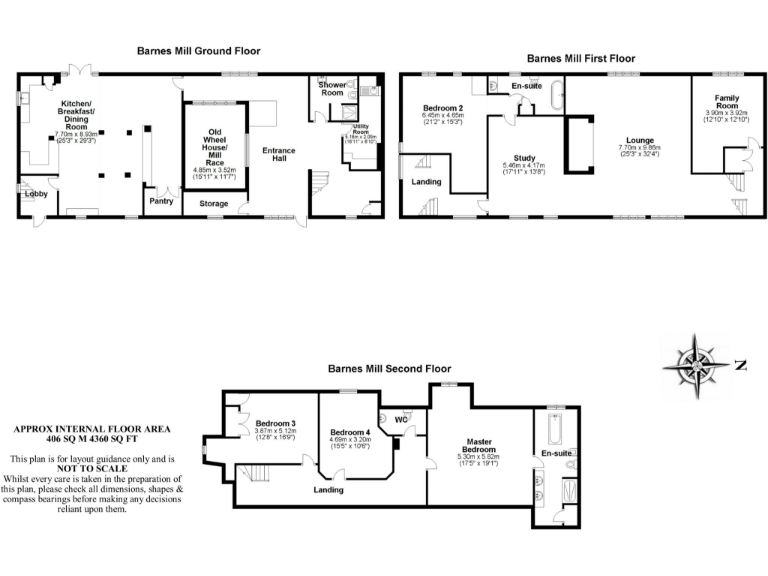
A rare Grade II listed water mill and adjoining Mill House set within c.4 acres of private riverside grounds yet just over a mile from Chelmsford city centre. Barnes Mill (approx. 4,360 sq ft) and Barnes Mill House (approx. 2,547 sq ft) sit on separate titles, offering flexible options for a large family, multi‑generational living or rental income from the Mill House. The converted mill retains striking period features including the great spur wheel, exposed timbers and brick inglenook fireplaces, matched with modern practicalities such as an EV charge point and up to 900 Mbps broadband.
The setting is a key strength: double bank access to the River Chelmer, two mill ponds, extensive mature planting and miles of riverside walks from the gate create a peaceful, semi‑rural feel in the heart of the city. Accommodation is substantial across about 6,906 sq ft with generous reception rooms, multiple studies and a triple garage. Its riverside terraces and west‑facing seating areas make the most of the water views and evening light.
Important considerations are factual: both buildings are Grade II listed which will affect alterations, maintenance and consent processes. The complex historic fabric will require ongoing specialist upkeep and can limit modernisation choices. The two properties are on separate titles; reunification is possible but will require legal steps. Local crime is reported above average, and council tax details are not provided. Buyers should budget for conservation‑grade repairs and liaise with planning advisors before changes.
For the buyer wanting a distinctive home with generous grounds, water frontage and excellent connectivity to London, this property combines period character with modern connectivity. It suits those seeking space, privacy and the chance to own a heritage riverside estate within easy reach of transport and city amenities.
4 bedroom detached house for sale in Lodge Road, Maldon, Essex, CM9 — £1,700,000 • 4 bed • 2 bath • 3290 ft²
6 bedroom detached house for sale in Mill Lane, Hartford End, Felsted, Chelmsford, Essex, CM3 — £5,750,000 • 6 bed • 6 bath • 8330 ft²
6 bedroom house for sale in Little Braxted Lane, Little Braxted, Essex, CM8 — £1,150,000 • 6 bed • 3 bath • 3581 ft²
5 bedroom detached house for sale in Pointwell Lane, Coggeshall, Colchester, Essex, CO6 — £1,100,000 • 5 bed • 3 bath • 5082 ft²
6 bedroom detached house for sale in East Hanningfield Road, Sandon, Chelmsford, CM2 7TF, CM2 — £2,000,000 • 6 bed • 6 bath • 4547 ft²
2 bedroom town house for sale in The Mill House, Roydon, CM19 — £465,000 • 2 bed • 1 bath • 1156 ft²














































































































































































































































