**Standout Features:**
- Grade II Listed house dating back to the 15th century
- Expansive 8,000 sq ft of adaptable living space
- Set in 1.3 acres of mature, beautifully landscaped gardens
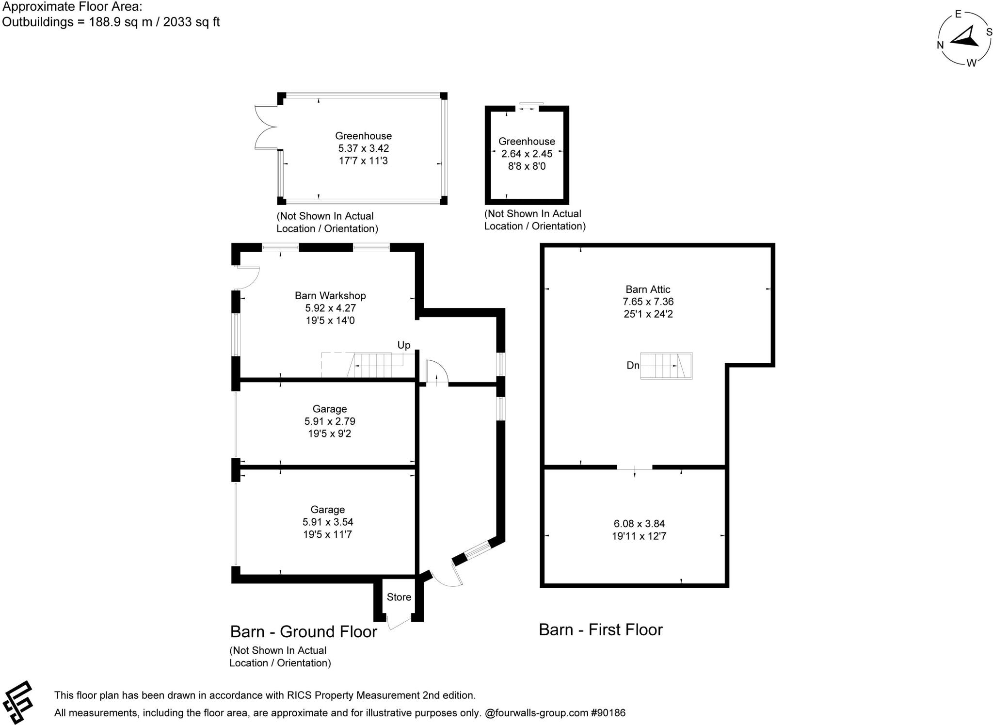
- Unconverted Sussex Barn offering potential for ancillary accommodation
- Unique period details and high ceilings throughout
- Conveniently located in the heart of Henfield Village
**Concerns:**
- Listed status may complicate renovation or alteration plans
- Broadband speeds are slow, potentially impacting remote work needs
**Summary:**
Discover Henfield Place, an exceptional Grade II Listed home steeped in history and charm, nestled in the heart of Henfield Village. Boasting an impressive 8,000 sq ft of living space, this property features 6 bedrooms, 5 bathrooms, and a wealth of elegant reception rooms, all adorned with classic period details and high ceilings. Beautifully landscaped gardens wrap around the estate, creating a serene paradise perfect for family gatherings and outdoor enjoyment.
The unconverted Sussex Barn provides significant potential for those looking to expand their living options or create unique guest accommodations, subject to necessary consents. While the property's listed status may pose challenges for modifications, it simultaneously ensures the preservation of its historical grandeur. With its prime location, you’re just a short stroll from local amenities, scenic countryside walks, and community facilities—ideal for families or those seeking a peaceful, affluent lifestyle.
Seize this rare opportunity to own a piece of Henfield’s rich history while enjoying modern comforts and the chance to add your personal touch to this magnificent estate. Don't miss out—properties of this caliber, with such historical significance and aesthetic beauty, are seldom available on the market.
7 bedroom detached house for sale in Upper Station Road, Henfield, BN5 — £1,650,000 • 7 bed • 5 bath • 8284 ft²
5 bedroom detached house for sale in Henfield , BN5 — £950,000 • 5 bed • 1 bath • 2270 ft²
6 bedroom detached house for sale in New Hall Lane, Small Dole, Henfield, West Sussex, BN5 — £2,500,000 • 6 bed • 4 bath • 8733 ft²
3 bedroom detached house for sale in Cagefoot Lane, Henfield, BN5 — £700,000 • 3 bed • 1 bath • 9941 ft²
6 bedroom detached house for sale in Horton Corner, Nr. Henfield, BN5 — £895,000 • 6 bed • 2 bath • 3539 ft²
5 bedroom detached house for sale in The Street, Slinfold, Horsham, West Sussex, RH13 — £2,500,000 • 5 bed • 5 bath • 4433 ft²


















































































































































































