Chain-free four-bedroom bungalow on a large plot — ideal for single-level living.
Large 0.19-acre plot with mature rear garden and private setting
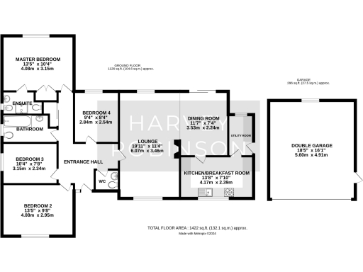
Single-storey living — four bedrooms including ensuite to master
Open-plan 20ft lounge/diner and refitted kitchen/breakfast room
Separate utility room, cloakroom and good storage throughout
Double garage with electric doors plus wide driveway parking
Built 1983–1990; some original fittings remain and may need updating
Double glazing installed before 2002 — potential energy-efficiency upgrade
Council Tax Band E (above average) — budget for higher running costs
Set on a generous 0.19-acre plot at the end of a private cul-de-sac, this four-bedroom detached bungalow offers comfortable single-level living with roomy proportions (approx. 1,422 sq ft). The 20ft open-plan lounge/diner flows into a refitted kitchen/breakfast room and separate utility, creating a useful family-orientated footprint while keeping circulation simple and practical.
The principal bedroom benefits from an ensuite wet room and there are three further bedrooms plus a family bathroom, making the house flexible for visiting family, a home office or hobby space. Outside, a mature rear garden, double garage with electric doors and wide driveway deliver generous parking and storage — a real asset for countryside-fringe living.
Practical points to note: the property was built in the 1980s and retains some original fittings; double glazing dates from before 2002 and the house may reward cosmetic updating or energy-efficiency improvements. Council Tax sits above average (Band E) which should be factored into ongoing costs. The property is offered freehold and chain-free, so a swift move is possible for buyers who want immediate occupation.
Located in Brampton, the bungalow sits within a comfortable, well-served village with good local amenities and green spaces. Excellent road and rail links to Huntingdon, Cambridge and London add commuter convenience while the single-storey layout and large plot make this a strong choice for downsizers seeking space, privacy and low-stress living.
3 bedroom detached bungalow for sale in Layton Crescent, Brampton, PE28 — £400,000 • 3 bed • 1 bath • 829 ft²
4 bedroom detached bungalow for sale in Buckden Road, Brampton, PE28 — £850,000 • 4 bed • 2 bath • 2259 ft²
4 bedroom detached house for sale in Layton Crescent, Brampton, PE28 — £550,000 • 4 bed • 3 bath • 1700 ft²
2 bedroom bungalow for sale in Miller Way, Brampton, Huntingdon, Cambridgeshire, PE28 — £270,000 • 2 bed • 1 bath • 773 ft²
4 bedroom detached bungalow for sale in West End, Brampton, Huntingdon, PE28 4SG, PE28 — £600,000 • 4 bed • 2 bath • 1557 ft²
4 bedroom detached house for sale in Allens Orchard, Huntingdon, PE28 — £700,000 • 4 bed • 3 bath • 1986 ft²






































































































