**Standout Features:**
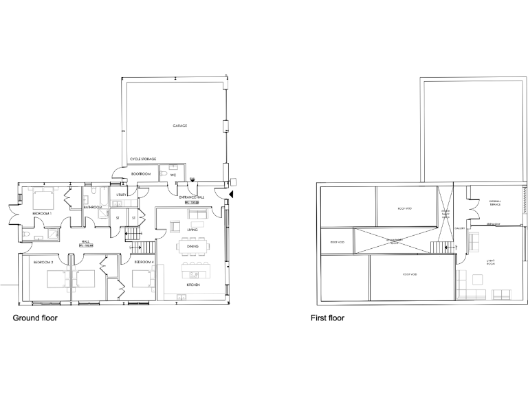
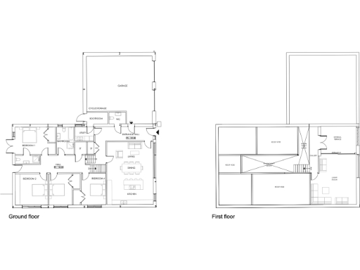
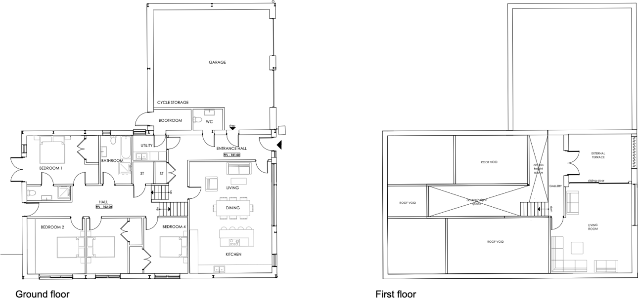
- Full planning consent for a 4-bedroom detached self-build
- Generous plot size offering plenty of outdoor potential
- Part of a select small development nestled in stunning rural countryside
- Proximity to local amenities in Eardisley village (2 miles away)
- Adjacent to completed development, ensuring a sense of community
**Summary:**
Discover the ultimate opportunity to design your dream home on this expansive plot in Spond, Hereford. With full planning consent for a modern 4-bedroom detached property, this is a perfect canvas for those seeking a unique self-build project in an idyllic countryside setting. Envision your family enjoying the tranquil ambiance and stunning views typical of North Herefordshire's rolling landscapes.
This sizeable plot not only provides ample space for your future residence but also allows for the creation of a beautiful garden and outdoor living areas. Located just two miles from Eardisley, where you'll find essential amenities including schools, a shop, and recreational facilities, future residents can enjoy both privacy and accessibility.
While the area offers a peaceful rural lifestyle, be mindful that the current site requires some development work to realize its full potential. With a location that's just a short distance from the River Wye and walking trails, this unique opportunity won't be available long. Seize the chance to build a home that reflects your vision in this sought-after community.
Land for sale in Great House Orchard, Dilwyn, Hereford, HR4 — £240,000 • 1 bed • 1 bath • 2054 ft²
4 bedroom barn conversion for sale in Blakemere, Herefordshire, HR2 — £350,000 • 4 bed • 4 bath • 3141 ft²
3 bedroom detached house for sale in Great House Orchard, Dilwyn, Hereford, HR4 — £750,000 • 3 bed • 3 bath • 2065 ft²
Land for sale in Great House Orchard, Dilwyn, Hereford, HR4 — £250,000 • 1 bed • 1 bath • 2693 ft²
Residential development for sale in Development Site At Balance Farm, Titley, Kington, HR5 3RU, HR5 — £500,000 • 1 bed • 1 bath • 7124 ft²
4 bedroom detached house for sale in Great House Orchard, Dilwyn, Hereford, HR4 — £775,000 • 4 bed • 3 bath • 2711 ft²














































