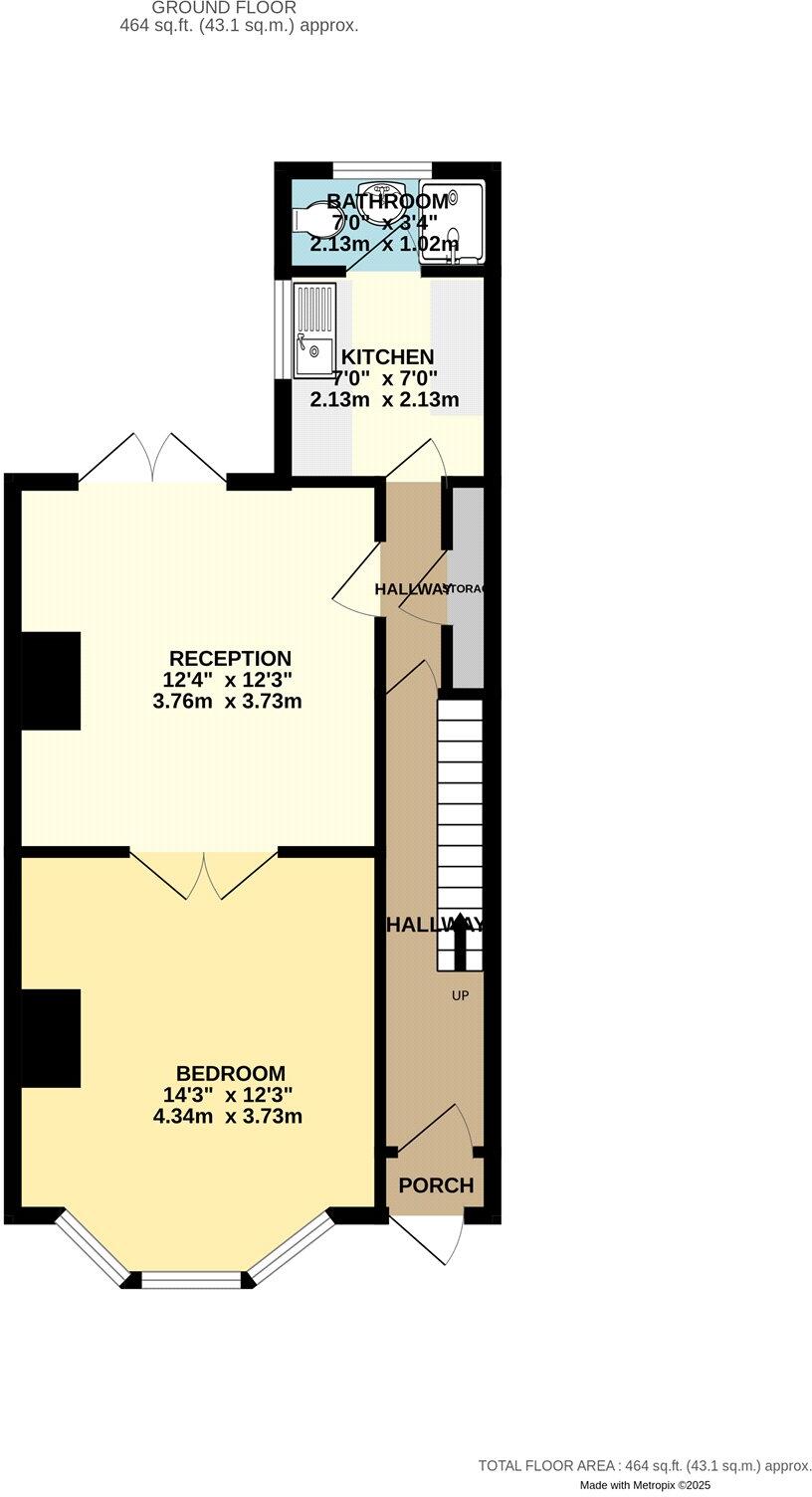
**Standout Features:**
- Move-in ready garden flat
- 1 bedroom, modern shower room
- Private garden for outdoor enjoyment
- Bright reception room and well-appointed kitchen
- Central location in Totterdown with vibrant local amenities
- Leasehold with 981 years remaining
**Potential Downsides:**
- Average-sized living space (464 sq ft)
- Limited heating features with standard boiler and radiators
- Street parking only, no allocated space
Discover a charming garden flat in the desirable area of Totterdown, ideally suited for first-time buyers, young professionals, or downsizers. This home boasts a welcoming reception room filled with natural light, a modern shower room, and a well-equipped kitchen — perfect for convenient single-level living. A standout feature is the private garden, an exceptional asset for outdoor relaxation, morning coffees, or summer barbecues.
Conveniently located, you’ll have easy access to a variety of shops, eateries, and beautiful parks, while good public transport links to the city center make commuting a breeze. This property, with an impressive remaining lease of 981 years, offers both comfort and potential for growth in a vibrant community. Don’t miss out — seize the opportunity to make this delightful garden flat your new home today!
2 bedroom flat for sale in County Street, Totterdown, Bristol, BS4 — £230,000 • 2 bed • 1 bath • 581 ft²
1 bedroom flat for sale in Henry Street, Totterdown, Bristol, BS3 — £210,000 • 1 bed • 1 bath • 378 ft²
1 bedroom flat for sale in Henry Street, Totterdown, BS3 — £209,995 • 1 bed • 1 bath • 485 ft²
1 bedroom flat for sale in Richmond Street, Totterdown, Bristol, BS3 — £260,000 • 1 bed • 1 bath • 517 ft²
1 bedroom flat for sale in Fitzroy Street, Totterdown, BS4 — £255,000 • 1 bed • 1 bath • 495 ft²
1 bedroom flat for sale in Bushy Park, Totterdown, BS4 — £210,000 • 1 bed • 1 bath • 331 ft²


































































