YO10 4PD - 4 bedroom detached house for sale in Fulford Road, York, No…

View on Property Piper

4 bedroom detached house for sale in Fulford Road, York, North Yorkshire, YO10

Summary - 296 Fulford Road YO10 4PD

4 bed 3 bath Detached

**Standout Features:**
- Exclusive new build in private gated development
- High specification with fully fitted kitchen by Nixons Project Exclusive
- Master suite with dressing area and deluxe ensuite
- Landscaped rear garden with decking and porcelain paving
- Air source heat pump for energy efficiency
- Electric car charging point
- 10-Year warranty for peace of mind
- Chain-free and ready for immediate occupancy

**Summary:**
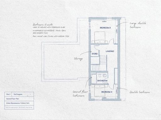
Discover modern luxury in this exceptional four-bedroom detached home located in the sought-after area of Fulford, just south of York city center. Offering an expansive 3,734 sq ft of thoughtfully designed living space, this new build is a perfect blend of sophistication and comfort, making it ideal for families or professional couples. Enjoy a stunning fully fitted kitchen with top-of-the-line NEFF appliances, a spacious master bedroom with a stylish dressing area and ensuite, and multiple living areas for relaxation or entertaining.

Step outside to a beautifully landscaped rear garden, perfect for alfresco dining or peaceful retreats. With exclusive access to a gated community and green technologies like an air source heat pump and electric car charging station, you can enjoy a sustainable lifestyle without compromising luxury.

Located within easy reach of outstanding schools—such as Fulford School, ranked in the top 10%—as well as fast broadband and excellent mobile signal, this property promises both convenience and a vibrant community. Don't miss out on this unique opportunity to secure your dream home—reserve now, as the last few remain available.

Property Details

Image Descriptions

Floorplan Description

Rooms

Textual Property Features

Detected Visual Features

EPC Details

Nearby Schools

Nearest Bars And Restaurants

,,,,}

Nearest General Shops

,,}

Nearest Grocery shops

,,}

Nearest Supermarkets

,,}

Nearest Religious buildings

,,}

Nearest Medical buildings

,,,}

Nearest Airports

}

Nearest Leisure Facilities

,,,,}

Nearest Tourist attractions

,,}

Nearest Train stations

,,,,}

Nearest Bus stations and stops

,,,,}

Nearest Hotels

,,}

Tags

Local Market Stats

AirBnB Data

Similar Properties

Meta

High Res Images

Compatible Images

Low res Images

Thumbnails

Raw Images

High Res Floorplan Images

Compatible Floorplan Images

Low res Floorplan Images

FloorplanImages Thumbnail

Raw Floorplan Images