Turn-key modern three-bedroom townhouse with solar panels and EV charging.
Three double bedrooms across three floors, versatile layout
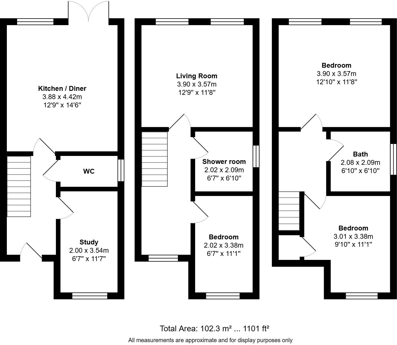
This three-bedroom, three-storey townhouse in Southport offers modern, low-maintenance living built in 2020. The home is bright and well-presented throughout, with a spacious open-plan kitchen/diner, a sunlit living room, and a landscaped rear garden that catches the sun—ideal for family life or professionals seeking easy-care outside space.
Energy-efficiency features include roof-mounted solar panels and an EV charging point on the private driveway, which reduce running costs. The property also benefits from a fully boarded loft for storage, integrated kitchen appliances, and contemporary bathrooms including a separate shower room and a three-piece family bathroom.
Practical considerations: the property is leasehold with a long lease remaining (about 904 years) and a small ground rent figure shown (250 — buyers should check frequency and terms). Council tax is moderate and the area reports higher crime levels than average, which some purchasers may want to investigate further. Broadband speeds are fast and transport links and local schools rated Good make the location convenient.
Overall, this is a turn-key modern townhouse that suits growing families or buyers prioritising energy-efficient, low-maintenance living close to Southport town centre and the seafront. Viewing is recommended to assess space, neighbourhood feel, and confirm lease and service-charge details.
3 bedroom town house for sale in Eliza Close, Roe Lane, Southport, PR9 7AY, PR9 — £325,000 • 3 bed • 2 bath • 1034 ft²
3 bedroom end of terrace house for sale in Redwood Way, Southport, Merseyside, PR8 — £220,000 • 3 bed • 3 bath • 769 ft²
3 bedroom detached house for sale in Beach Priory Gardens, Southport, PR8 — £275,000 • 3 bed • 3 bath • 1283 ft²
3 bedroom semi-detached house for sale in Lyons Road, Birkdale, Southport, Merseyside, PR8 1JJ, PR8 — £270,000 • 3 bed • 2 bath • 1048 ft²
3 bedroom semi-detached house for sale in Fir Street, Southport, Merseyside, PR8 6HD, PR8 — £260,000 • 3 bed • 1 bath • 892 ft²
3 bedroom detached house for sale in Talbot Street, Southport, PR8 — £300,000 • 3 bed • 2 bath • 668 ft²


























































































