PR8 6HD - 3 bedroom semidetached house for sale in Fir Street, Southp…

View on Property Piper

3 bedroom semi-detached house for sale in Fir Street, Southport, Merseyside, PR8 6HD, PR8

Summary - 23 FIR STREET SOUTHPORT PR8 6HD

3 bed 1 bath Semi-Detached

Modernised three-bed semi with sun-catching garden and driveway parking.
Three bedrooms, Victorian character with high ceilings
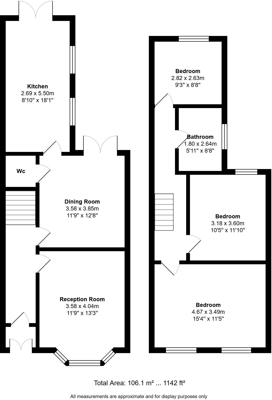
This newly renovated three-bedroom semi-detached house on Fir Street blends Victorian character with contemporary finishes, offering a comfortable family home in a sought-after Southport location. The extended kitchen opens to a sun-catching, low-maintenance garden — a practical layout for everyday family life and relaxed entertaining. Driveway parking to the front adds valuable convenience in a popular residential area.

Upstairs there are three well-proportioned bedrooms served by a single modern family bathroom, making the property particularly suitable for young families or those needing a home office. Interiors benefit from high ceilings and bay-window character in the front reception, while the extension provides a light, practical kitchen/dining space that links directly to the garden.

Practical positives include fast broadband, excellent mobile signal, low local crime and proximity to several Good-rated primary and secondary schools. The property is freehold and offered in move-in condition, so buyers can expect minimal immediate works aside from personal redecoration.

Known drawbacks are factual and important to note: the EPC rating is D and the cavity walls are listed as having no insulation (assumed), so improving energy efficiency could be needed. The plot is small and there is only one bathroom, which may be limiting for larger families. Overall this is a modernised Victorian home that balances period features with contemporary living in a convenient Southport neighbourhood.

Property Details

Image Descriptions

Rooms

Textual Property Features

Target Audience

AI Tags

Detected Visual Features

EPC Details

Nearby Schools

Nearest Bars And Restaurants

,,,,}

Nearest General Shops

,,}

Nearest Grocery shops

,,}

Nearest Supermarkets

,,}

Nearest Religious buildings

,,}

Nearest Medical buildings

,,,}

Nearest Leisure Facilities

,,,,}

Nearest Tourist attractions

,,}

Nearest Train stations

,,,,}

Nearest Bus stations and stops

,,,,}

Nearest Hotels

,,}

Tags

Local Market Stats

AirBnB Data

Similar Properties

Meta

High Res Images

Compatible Images

Low res Images

Thumbnails

Raw Images

High Res Floorplan Images

Compatible Floorplan Images

Low res Floorplan Images

FloorplanImages Thumbnail

Raw Floorplan Images