**Standout Features:**
- Large Victorian semi-detached building with period features
- Planning consent for conversion to residential use
- Off-street parking available
- Potential for multiple residential units
- Close proximity to local amenities and schools
- High ceilings and large windows for natural light
**Notable Concerns:**
- Located in an area with high crime rates
- Current condition as an office building may require renovations
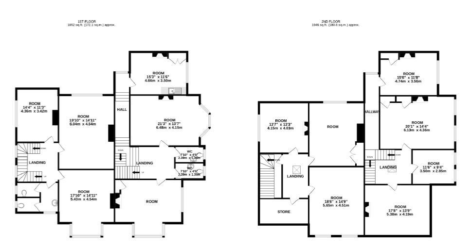
This expansive Victorian semi-detached property, covering over 6,000 square feet, presents a compelling opportunity for investors or developers looking to capitalize on its planning consent for residential conversion. With striking bay windows, high ceilings, and charming period details, the building offers the potential for creating multiple spacious units in a bustling area of Folkestone. While located in a dynamic neighborhood favored by migrant families and students, be mindful of the area's elevated crime rates.
Its future as a residential site could appeal to families or professionals seeking a vibrant community close to the town center, with accessible transport links and a range of local conveniences just a stone's throw away. This property’s large plot also allows for potential outdoor space, enhancing its appeal even further. Don’t miss your chance to transform this unique structure into desirable residences at an affordable starting price of £1,100,000.
Residential development for sale in Cheriton Gardens, Folkestone, CT20 — £1,100,000 • 1 bed • 1 bath • 2187 ft²
Terraced house for sale in Cambridge Gardens, Folkestone, CT20 — £277,500 • 1 bed • 1 bath
Office for sale in Dover Road, Folkestone, CT20 — £375,000 • 1 bed • 1 bath • 4596 ft²
Commercial property for sale in Bouverie Road West, Folkestone, CT20 — £550,000 • 12 bed • 1 bath • 3566 ft²
Restaurant for sale in 301 Cheriton Road, Cheriton , Folkestone, Kent, CT19 — £275,000 • 1 bed • 1 bath • 517 ft²
Commercial development for sale in Valebrook Mews, Folkestone, Kent, CT19 — £315,000 • 1 bed • 1 bath • 2690 ft²


































