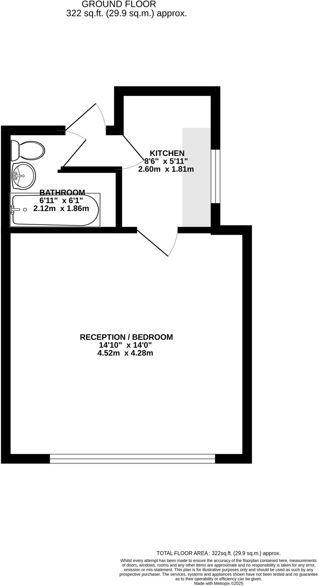
**Standout Features:**
- **Size:** 322 sq ft studio apartment
- **Location:** Ashburton Road, just a short walk from Addiscombe Tram Stop
- **Commuter-friendly:** Under 30 minutes to Central London
- **Condition:** Well-maintained with natural light throughout
- **No onward chain** and attractively priced for investors
- **Garden:** Small outdoor space included
- **Schools:** Close to several well-rated primary and secondary schools
- **Amenities:** Convenient access to local shops, banks, and recreational facilities
- **Potential concerns:** Crime rate above average, area is classified as deprived
This cozy studio apartment serves as a prime opportunity for first-time buyers or investors looking for a solid rental property. Nestled in a vibrant, cosmopolitan area of Croydon, this top-floor unit offers a bright reception/bedroom area, separate kitchen, and a family bathroom, all within a total size of 322 sq ft. With excellent transport links, you can be in Central London in under 30 minutes, making it perfect for city commuters.
While the space is in good condition, there’s ample potential for personalisation and modernization to truly make it feel like home. The small garden area adds a touch of outdoor charm, crucial for those craving a bit of green. The local area provides access to good schools and various amenities, though it's important to be aware of the above-average crime rate. Priced attractively at £120,000, this chain-free property won’t last long—book your viewing today to explore the possibilities this lovely space has to offer!
Studio flat for sale in Waddon New Road, Croydon, CR0 — £168,000 • 1 bed • 1 bath • 402 ft²
Studio apartment for sale in Redgrave Close, Croydon, Surrey, CR0 — £175,000 • 1 bed • 1 bath • 309 ft²
1 bedroom flat for sale in Elmhurst Court, South Croydon, CR0 — £165,000 • 1 bed • 1 bath
1 bedroom ground floor flat for sale in Sydenham Road, Croydon, CR0 — £210,000 • 1 bed • 1 bath • 347 ft²
Studio flat for sale in Anthony Road, South Norwood, SE25 — £179,950 • 1 bed • 1 bath • 318 ft²
Studio flat for sale in Dornton Road, South Croydon, CR2 — £140,000 • 1 bed • 1 bath






















