LD3 9AQ - 3 bedroom semidetached house for sale in Hoggan Park, Breco…

View on Property Piper

3 bedroom semi-detached house for sale in Hoggan Park, Brecon, LD3

Summary - 63, Hoggan Park LD3 9AQ

3 bed 3 bath Semi-Detached

**Standout Features:**
- Three bedrooms with en-suite and additional bathroom
- Semi-detached new build, completed in 2018
- Integral garage and parking space
- Modern kitchen/diner and separate utility room
- Cloakroom for added convenience
- Easy-to-manage garden
- LABC warranty for peace of mind
- Located in picturesque Brecon Beacons National Park
- Chain-free and ready for immediate occupancy

**Summary:**
Introducing The Rowan, a stunning new build semi-detached house in the heart of the desirable Beacons Gate development, priced at £330,000. This modern, three-bedroom home offers a well-appointed living space that includes a spacious living room, kitchen/diner, utility room, cloakroom, and a bright airy en-suite attached to the master bedroom. The property is set against the breathtaking backdrop of the Brecon Beacons, providing a tranquil, semi-rural lifestyle while still being conveniently close to Brecon town center.

With an integral garage, additional parking, and an easily maintained garden, this home is perfect for families or first-time buyers looking for both comfort and convenience. Built with high-quality materials and backed by a LABC warranty, it promises durability and peace of mind. Enjoy fast broadband and an excellent mobile signal, making it an ideal retreat for busy professionals.

Act quickly—this exclusive opportunity may not last long! Whether you envision cozy family evenings or outdoor adventures in the stunning Welsh countryside, The Rowan invites you to make it your own.

Property Details

Image Descriptions

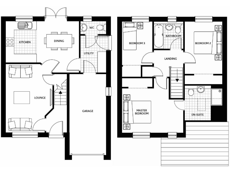
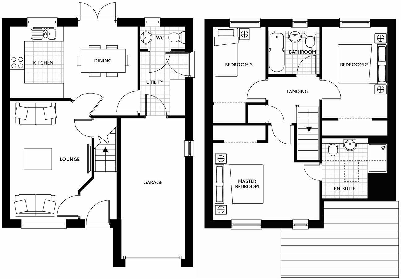
Floorplan Description

Rooms

Textual Property Features

Detected Visual Features

EPC Details

Nearest Bars And Restaurants

,,,,}

Nearest General Shops

,,}

Nearest Grocery shops

,,}

Nearest Supermarkets

,,}

Nearest Religious buildings

,,}

Nearest Medical buildings

,,,}

Nearest Leisure Facilities

,,,,}

Nearest Tourist attractions

,,}

Nearest Train stations

,,,,}

Nearest Bus stations and stops

,,,,}

Nearest Hotels

,,}

Tags

Local Market Stats

AirBnB Data

Similar Properties

Meta

High Res Images

Compatible Images

Low res Images

Thumbnails

Raw Images

High Res Floorplan Images

Compatible Floorplan Images

Low res Floorplan Images

FloorplanImages Thumbnail

Raw Floorplan Images