LD3 9AQ - 3 bedroom semidetached house for sale in Hoggan Park, Breco…

View on Property Piper

3 bedroom semi-detached house for sale in Hoggan Park, Brecon, Brecon, LD3

Summary - Hoggan Park, Brecon, Brecon, LD3 LD3 9AQ

3 bed 3 bath Semi-Detached

**Standout Features:**
- Brand new semi-detached home with integral garage and parking
- Three spacious bedrooms and two bathrooms (including en-suite)
- Generous open-plan kitchen/diner, utility room, and downstairs toilet
- Attractive garden space
- Located in the scenic Brecon Beacons National Park
- LABC warranty for added peace of mind
- Part of a family-friendly, sought-after development with communal playground

**Summary:**
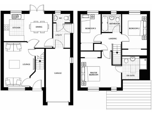
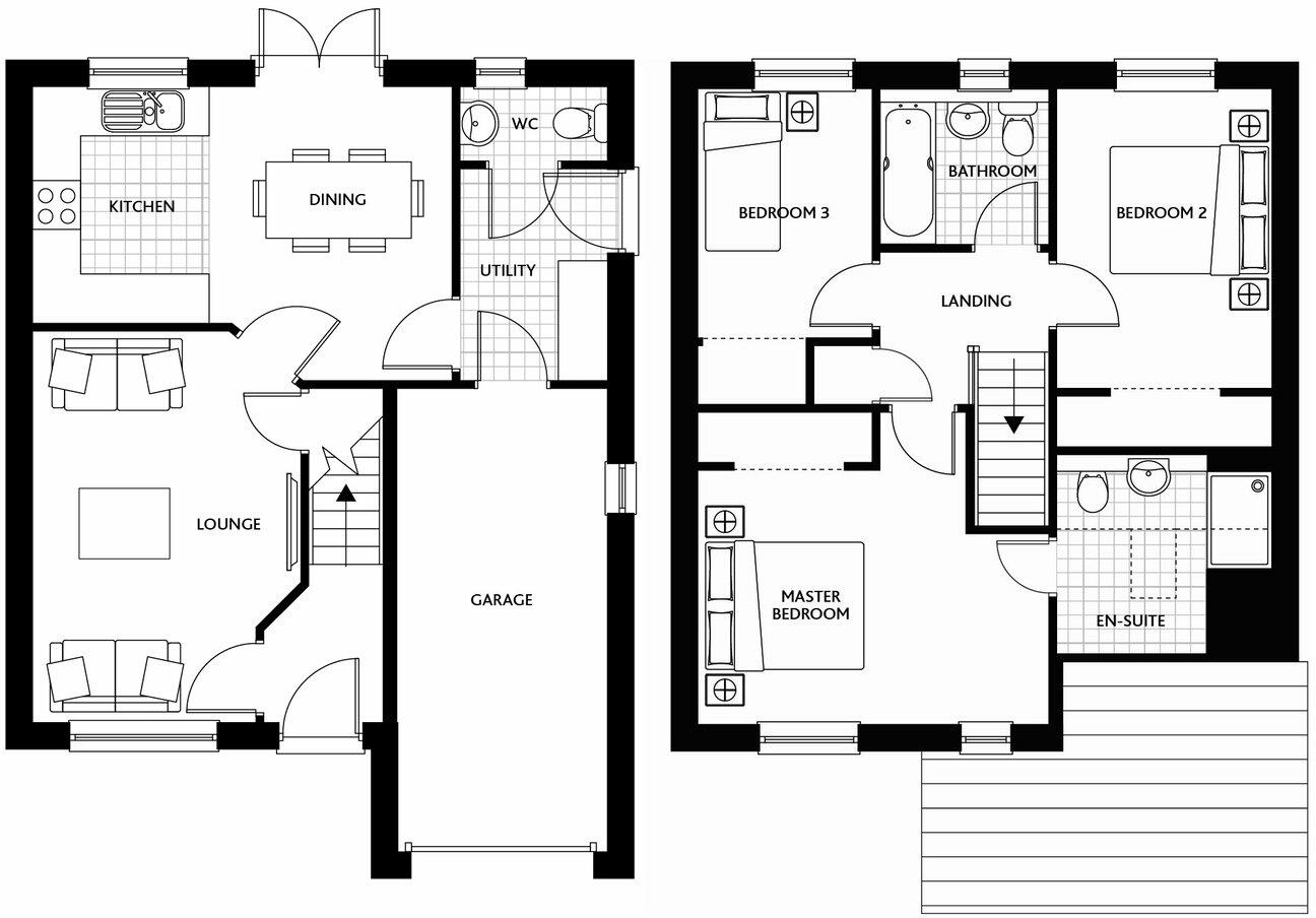
Discover the perfect blend of comfort and modern living in this brand-new three-bedroom semi-detached house in Hoggan Park, Brecon, priced at £330,000. Currently under construction, this home offers a thoughtfully designed layout including a welcoming entrance hall, a spacious living room, and an open-plan kitchen/diner ideal for family gatherings. The utility room and downstairs cloakroom add convenience, while three well-proportioned bedrooms, including an en-suite master, ensure ample space for the whole family.

Positioned within the picturesque Brecon Beacons, this property not only boasts a garden and integral garage but also sits near amenities like schools, healthcare facilities, and recreational spaces, making it perfect for families and first-time buyers alike. Although relatively new, it comes with a LABC warranty, offering additional assurance. Don’t miss your chance to embrace semi-rural living with panoramic views and the vibrant community life of Brecon right at your doorstep. Act quickly as such sought-after homes in this serene setting won’t stay on the market for long!

Property Details

Image Descriptions

Floorplan Description

Rooms

Textual Property Features

Detected Visual Features

EPC Details

Nearest Bars And Restaurants

,,,,}

Nearest General Shops

,,}

Nearest Grocery shops

,,}

Nearest Supermarkets

,,}

Nearest Religious buildings

,,}

Nearest Medical buildings

,,,}

Nearest Leisure Facilities

,,,,}

Nearest Tourist attractions

,,}

Nearest Train stations

,,,,}

Nearest Bus stations and stops

,,,,}

Nearest Hotels

,,}

Tags

Local Market Stats

AirBnB Data

Similar Properties

Meta

High Res Images

Compatible Images

Low res Images

Thumbnails

Raw Images

High Res Floorplan Images

Compatible Floorplan Images

Low res Floorplan Images

FloorplanImages Thumbnail

Raw Floorplan Images