Spacious three-bedroom house near excellent schools and transport links.
Three bedrooms including two doubles and one single
Conservatory with French doors to private rear garden
Driveway plus integral garage for off-street parking
Single family bathroom only; one washroom for three bedrooms
Long lease (966 years) — leasehold tenure
Built early 1990s; some fittings (double glazing) are older
Fast broadband and excellent mobile signal; very low crime
Located in sought school catchments; area classed as deprived
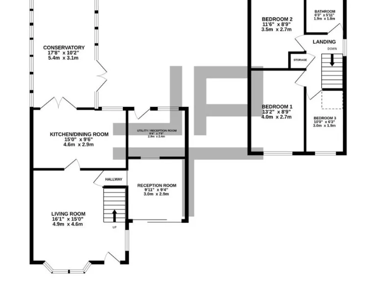
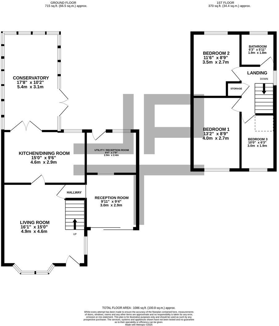
Set on a quiet street in Tyldesley, this three-bedroom link-detached house offers practical family living with generous reception space and a private rear garden. The ground floor layout includes a main sitting room, a second reception room, a kitchen/dining area and a conservatory opening onto the enclosed garden — useful for play and family gatherings. Off-street parking and an integral garage add everyday convenience.
The property dates from the early 1990s and benefits from gas central heating and double glazing, delivering comfortable heating and reasonable energy performance. Two double bedrooms plus a single bedroom and a single family bathroom make this a straightforward family home; room sizes are described as generous and the rear aspect enjoys privacy and views towards mature trees.
Practical positives include fast broadband, excellent mobile signal and very low local crime. The house sits in a sought-after school catchment with several well-rated primary and secondary options within easy reach, and transport links are close by for commuting. The long lease (966 years) provides secure tenure, and council tax is described as affordable.
Notable points to consider: the property is leasehold (long lease remaining) and has one family bathroom only. The area is classed as relatively deprived despite pockets of local professional residents. Some fixtures such as pre-2002 double glazing may be older and could be updated over time. Viewings will best suit buyers looking for a ready-to-live-in family home with scope for modernisation rather than a new-build specification.
4 bedroom detached house for sale in Ennerdale Road, Tyldesley, M29 — £375,000 • 4 bed • 2 bath • 1033 ft²
3 bedroom detached house for sale in Bourton Court, Tyldesley, Manchester, M29 — £300,000 • 3 bed • 1 bath • 821 ft²
3 bedroom semi-detached house for sale in Sale Lane, Tyldesley, Manchester, M29 — £330,000 • 3 bed • 2 bath • 1121 ft²
3 bedroom semi-detached house for sale in Astley Street, Tyldesley, M29 — £285,000 • 3 bed • 2 bath • 958 ft²
3 bedroom detached house for sale in Berryfold Way, Tyldesley, Manchester, M29 7PT, M29 — £335,000 • 3 bed • 3 bath • 1165 ft²
3 bedroom semi-detached house for sale in Stour Road, Tyldesley, Manchester, M29 — £235,000 • 3 bed • 1 bath • 1096 ft²






































































































































































