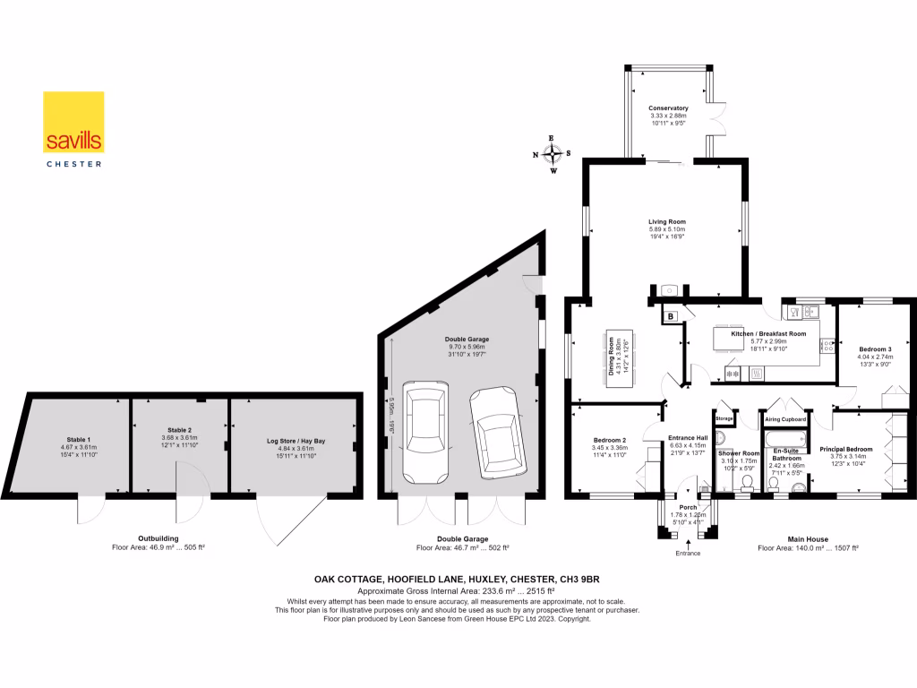
Large single-level home with double garage and flexible outbuildings.
Detached single-storey cottage on circa 0.30 acres with extensive countryside views
Oak Cottage is an impressive single-storey detached home set in roughly 0.30 acres with sweeping open countryside views. The layout delivers generous living space across one level — about 2,515 sq ft — including three reception rooms, a conservatory, a large breakfast kitchen and a principal bedroom with en suite and fitted wardrobes. Good-sized gardens and a private driveway enhance the sense of space and seclusion.
Practical outbuildings are a standout feature: a detached double garage, a log store, two stables and further storage offer versatile space for vehicles, hobbies or small-scale equestrian use. The property is offered chain free, making it easier to move quickly for buyers who value privacy and a rural setting yet want accessible links to Tarporley (4 miles) and Chester (9 miles).
There are important running-cost and upgrade considerations. Heating is by oil-fired boiler and the EPC rating is F; the walls were built as cavity without added insulation (assumed). Drainage is by private septic tank. Council tax is described as expensive. These are realistic trade-offs for a large detached home in an attractive rural location and will be relevant to buyers planning longer-term improvements or energy-efficiency works.
This cottage will suit families or buyers seeking a substantial single-level home with flexible outbuildings, privacy and countryside access. Early viewing is recommended to appreciate the scale, the rural outlook and the potential to enhance energy performance and reduce running costs over time.
3 bedroom cottage for sale in Ashcroft, Hoofield Lane, Huxley, Chester, CH3 — £600,000 • 3 bed • 1 bath • 1419 ft²
4 bedroom detached house for sale in Huxley, Nr. Chester, CH3 — £650,000 • 4 bed • 1 bath • 1582 ft²
4 bedroom detached house for sale in Church Lane, Hargrave, Chester, CH3 — £935,000 • 4 bed • 4 bath • 2836 ft²
3 bedroom detached house for sale in House, double garage and annexe surrounded by fields on Basfords Lane, CW6 — £775,000 • 3 bed • 2 bath • 1714 ft²
3 bedroom detached bungalow for sale in Tarporley Road, Tarvin, CH3 — £725,000 • 3 bed • 2 bath • 1741 ft²
5 bedroom semi-detached house for sale in Long Lane, Alpraham, Tarporley, CW6 — £670,000 • 5 bed • 3 bath • 2349 ft²










































































