Extended three-bed bungalow on a huge private plot with detached home office and rural views.
Approximately 1.08 acres of private landscaped gardens
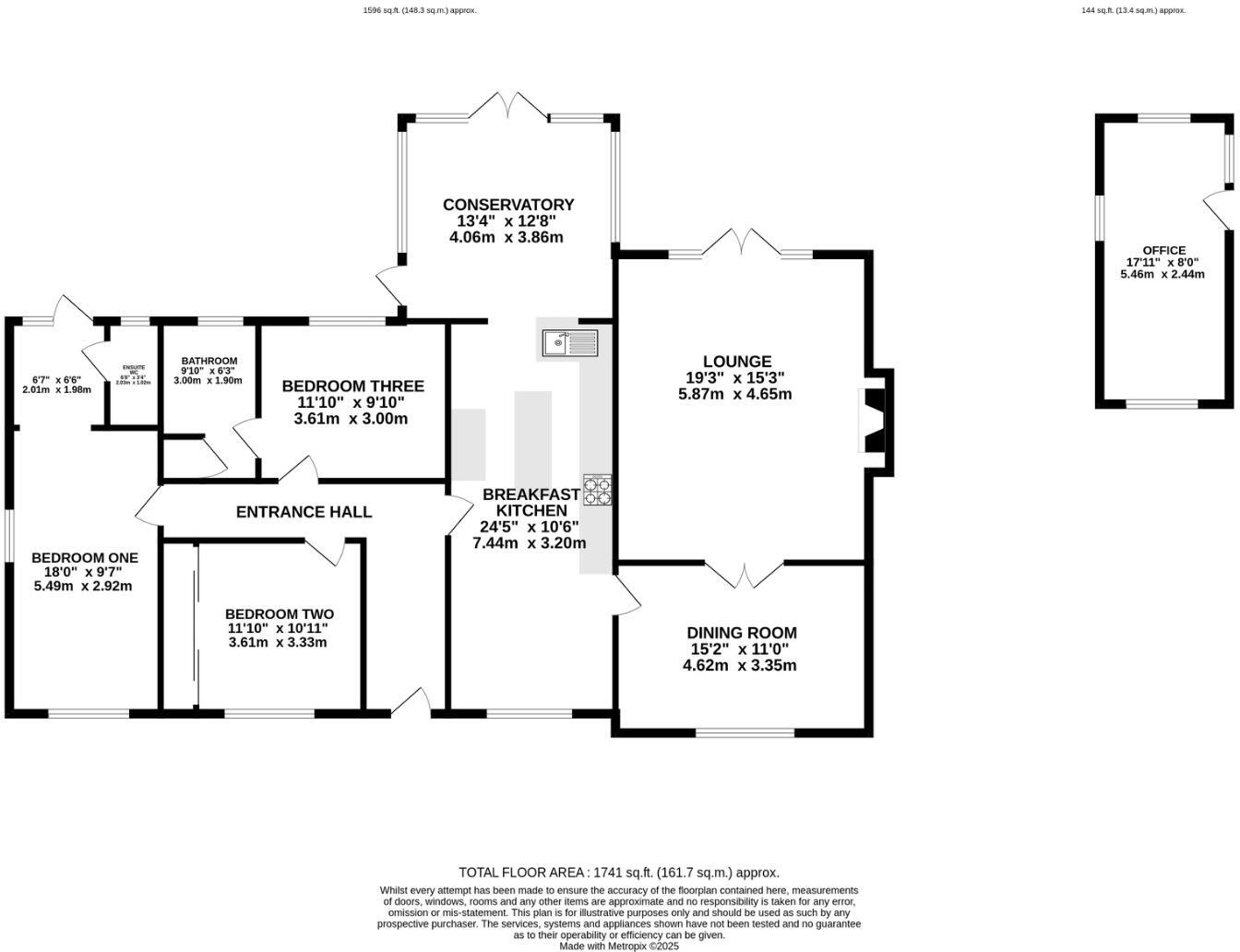
Set well back from Tarporley Road, this impressive extended detached bungalow occupies approximately 1.08 acres of meticulously landscaped gardens with uninterrupted views across open farmland. The single-storey layout provides generous, flexible accommodation including three reception rooms, a breakfast kitchen and three double bedrooms, making it suitable for downsizers seeking space on one level or families wanting roomy ground-floor living.
Externally the plot is a standout: wide lawns, mature specimen planting, a long gravel driveway with parking for several vehicles and a detached home office. The substantial gardens offer scope for further extension or outbuildings (subject to planning) while retaining privacy and far-reaching countryside outlooks.
Practical points are straightforward: the property is freehold, on mains services where believed connected, with private drainage reported. Buyers should note the council tax band is F and broadband speeds are slow — an important consideration for regular home-working despite the separate office building. Appliances and the central heating system have not been tested and should be checked by prospective purchasers.
Overall this is a rare countryside bungalow on an unusually large plot offering comfort, versatile reception space and strong potential to adapt or extend. It will suit buyers prioritising single-level living, seclusion and landscape — but those requiring high-speed internet or lower running costs should factor in potential upgrades.
3 bedroom detached bungalow for sale in Sproston Green, Sproston, CW4 — £895,000 • 3 bed • 2 bath • 2881 ft²
2 bedroom detached bungalow for sale in Utkinton, Nr Tarporley, CW6 — £500,000 • 2 bed • 1 bath • 1122 ft²
4 bedroom detached bungalow for sale in Badgers Close, Christleton, CH3 — £665,000 • 4 bed • 2 bath • 2141 ft²
4 bedroom detached bungalow for sale in Tilstone Bank Lane, Tilstone Fearnall, CW6 — £995,000 • 4 bed • 2 bath • 2757 ft²
3 bedroom detached house for sale in Tiverton, Nr Tarporley, CW6 — £500,000 • 3 bed • 1 bath • 1432 ft²
3 bedroom detached bungalow for sale in Manor Park, Great Barrow, CH3 — £425,000 • 3 bed • 2 bath • 1469 ft²






















































































































































































