**Standout Features:**
- Spacious five double bedrooms
- Self-contained flat with potential for HMO rental
- Ample on-street parking
- Fully enclosed rear garden perfect for outdoor activities
- Close proximity to Aberdeen University and local amenities
- Gas heating and double glazing for comfort
- Regular bus links for convenient commuting
**Concerns:**
- Condition may require updates in some areas
- Located in an area with high council tax rates
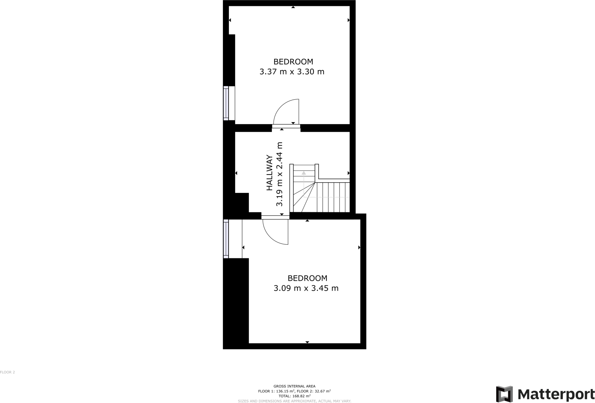
Welcome to your charming opportunity on Clifton Road, a spacious five-bedroom self-contained apartment perfect for families, students, or investors looking for rental potential in the desirable Hilton area of Aberdeen. This attractive Victorian terrace features large, sunlit rooms, including a welcoming lounge with a captivating bay window and a modern dining kitchen equipped with integrated appliances and generous space for gatherings.
Outside, enjoy the benefits of a fully enclosed rear garden and ample on-street parking, ideal for outdoor entertainment or a peaceful retreat. With an active HMO license, this property stands out as an investment opportunity just minutes away from the University of Aberdeen, making it a prime choice for student accommodation.
Local amenities such as shopping at Kittybrewster Retail Park and access to green spaces like Victoria Park enhance the lifestyle in this bustling community. While the area does have higher council tax rates and the property may require updates to some spaces, its generous size and prime location promise a significant return on investment. Don’t miss this unique offering—opportunities like this won't last long!
6 bedroom maisonette for sale in Clifton Road, Aberdeen, AB24 — £230,000 • 6 bed • 2 bath • 1690 ft²
2 bedroom apartment for sale in Clifton Road, Aberdeen, AB24 — £70,000 • 2 bed • 1 bath • 463 ft²
3 bedroom flat for sale in 415 Clifton Road, Hilton, Aberdeen, AB24 — £148,000 • 3 bed • 1 bath • 980 ft²
4 bedroom apartment for sale in Clifton Road Flat C, Aberdeen, AB24 — £115,000 • 4 bed • 1 bath • 1044 ft²
5 bedroom flat for sale in 37 Orchard Street, Aberdeen, AB24 3DA, AB24 — £290,000 • 5 bed • 2 bath • 1507 ft²
5 bedroom apartment for sale in Stanley Street, Aberdeen, AB10 — £265,000 • 5 bed • 2 bath • 1690 ft²


































































