LL11 3AA - Leisure facility for sale in Llandegla Fishery & Campsi…

View on Property Piper

Leisure facility for sale in Llandegla Fishery & Campsite, Llandegla, LL11

Summary - Llandegla Fishery & Campsite, Llandegla, LL11 LL11 3AA

5 bed 1 bath Leisure Facility

**Key Features:**
- Profitable holiday complex with multiple income streams
- Established trout and coarse fishery with 7 pools
- Award-winning café with full commercial kitchen
- Touring caravan, camping pitches, and luxury glamping pods
- Extensive 21.3-acre site, close to major transport links
- Potential for further development with existing planning permissions

Discover a unique investment opportunity at Llandegla Fishery & Campsite, a thriving leisure facility set amidst the breathtaking landscapes of North Wales. This 21.3-acre property includes an established trout and coarse fishery ideal for fishing enthusiasts, with seven pools offering a diverse fishing experience. The award-winning café, capable of seating 80 guests, provides a welcoming environment for both visitors and locals, making it a frequent stop for outdoor adventurers.

Currently featuring 10 fully serviced touring pitches and 15 grass pitches, the site also includes charming glamping pods and a holiday cottage for potential guests seeking luxury amidst nature. The surrounding area is ripe for exploration, with scenic trails like Offa's Dyke Path, and a number of local attractions ensuring a steady flow of visitors year-round.

While the property excels in its current offerings, it also holds significant potential for expansion, with approved planning permissions for additional glamping options and camping facilities. This dynamic complex blends recreation with tranquility, making it an attractive choice for investors or operators looking to capitalize on the growing eco-tourism trend. Don’t miss out on owning a slice of this idyllic haven in the highly sought-after areas of the Clwydian Range and Dee Valley.

Property Details

Brochure Descriptions

Image Descriptions

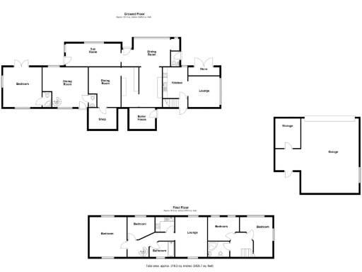
Floorplan Description

Rooms

Textual Property Features

Detected Visual Features

Nearest Bars And Restaurants

,,,,}

Nearest General Shops

,,}

Nearest Grocery shops

,,}

Nearest Supermarkets

,,}

Nearest Religious buildings

,,}

Nearest Medical buildings

,,,}

Nearest Leisure Facilities

,,,,}

Nearest Tourist attractions

,,}

Nearest Train stations

,,,,}

Nearest Bus stations and stops

,,,,}

Nearest Hotels

,,}

Tags

Local Market Stats

AirBnB Data

Similar Properties

Meta

High Res Images

Compatible Images

Low res Images

Thumbnails

Raw Images

High Res Floorplan Images

Compatible Floorplan Images

Low res Floorplan Images

FloorplanImages Thumbnail

Raw Floorplan Images