Large 5-bed smallholding with 45 acres and outstanding valley views, needs completion.
- 45 acres of pasture, rough grazing, streams and 15-acre commercial woodland
- Architect-detailed five-bedroom farmhouse with very generous rooms
- Substantial valley views and private orchard with cascading brook
- House unfinished: internal stairs and fittings require completion
- Undeveloped outbuildings, potential alternative use (subject to planning)
- Mains electricity connected; private borehole water supply
- No mobile signal; very slow broadband throughout the site
- Above-average local crime and very deprived local area statistics
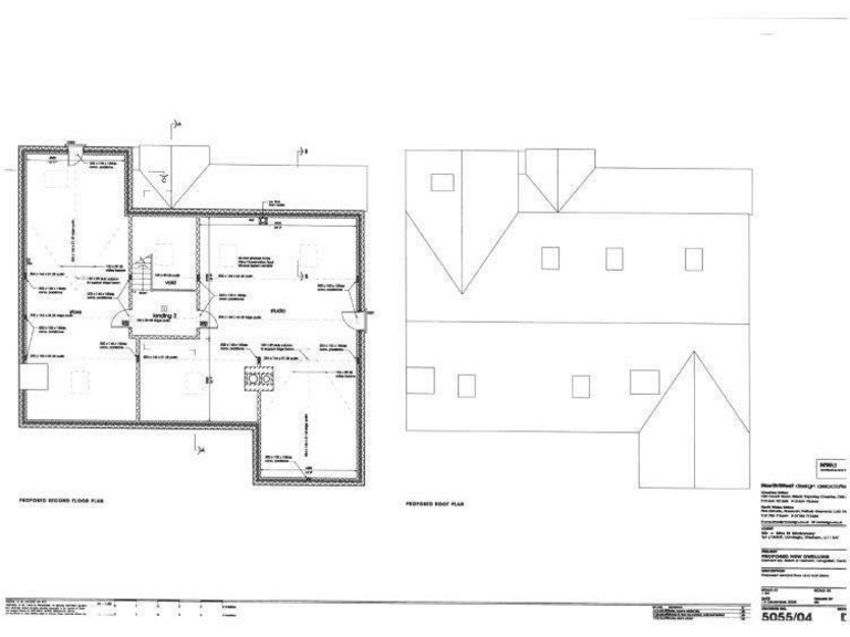
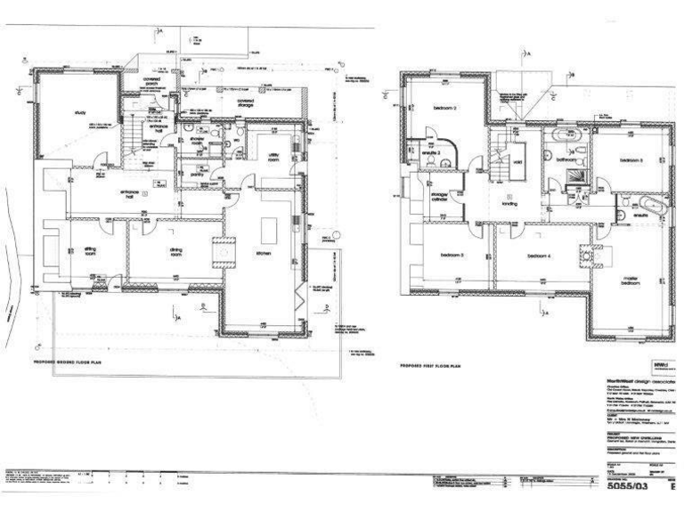
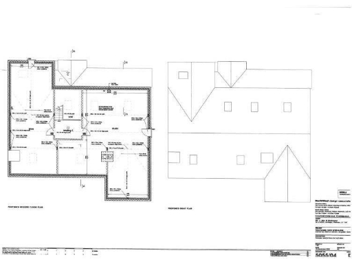
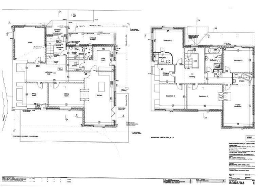
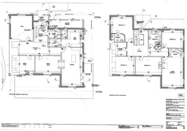
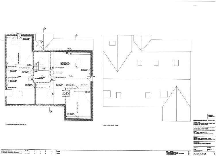
Set high on the Horseshoe Pass, this substantial five-bedroom farmhouse sits within a ring-fenced 45-acre holding of pasture, streams and mature woodland. The house is architect-designed and well insulated with generous rooms, high ceilings and dramatic valley views — a rare plot for those seeking privacy and countryside scope.
The property is unfinished and requires completion and internal fitting. Several significant elements remain incomplete (internal stairs not fitted, some services ducts incomplete) and the outbuildings are undeveloped; purchasers should obtain professional surveys and cost estimates before committing. Mains electricity is connected and a borehole supplies water; a 20kW air-source heat pump is available by separate purchase.
This is a practical smallholding with commercial woodland, orchard and natural water from converging streams — suitable for livestock, forestry income or holiday-let potential once works are finished and any necessary consents obtained. Note practical limitations: no mobile signal, very slow broadband, a public footpath crosses the land (diverts before the house) and the local area records above-average crime and high deprivation statistics.
A buyer seeking a project with land-based income potential and exceptional views will value the scale, setting and character here. The property’s location four miles from Llangollen gives access to local amenities and visitor trade, but this is an isolated hamlet requiring an acceptance of rural services and renovation commitment.
4 bedroom country house for sale in Off Dinbren Road, Llangollen, LL20 — £725,000 • 4 bed • 1 bath • 4361 ft²
9 bedroom detached house for sale in Leadbrook Drive, Flint, CH6 — £725,000 • 9 bed • 3 bath • 2088 ft²
4 bedroom detached house for sale in Mold Road, LL16 — £650,000 • 4 bed • 3 bath • 2536 ft²
Leisure facility for sale in Sarnau, Bala, LL23 7LG, LL23 — £1,395,000 • 11 bed • 1 bath • 433 ft²
4 bedroom detached house for sale in Pen-Y-Garnedd, Llanrhaeadr Ym Mochnant, SY10 — £995,000 • 4 bed • 2 bath • 2390 ft²
3 bedroom semi-detached house for sale in Brynford Holywell CH8 — £400,000 • 3 bed • 1 bath • 1576 ft²






























































