Contemporary finish, low running costs — ideal for first-time buyers or investors.
Three bedrooms in compact end-terrace layout
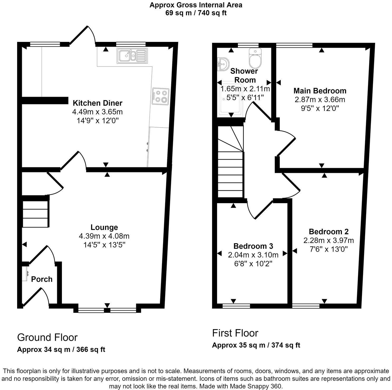
A three-bedroom end-terrace in Newtown, Wigan, offering contemporary interiors and low-maintenance outdoor space. The house has been recently updated with a navy kitchen/diner, integrated appliances and attractive herringbone flooring downstairs, creating a cohesive modern look across the ground floor. The boarded loft with Velux windows adds useful storage and potential for conversion (subject to consents).
Practical running details are straightforward: mains gas central heating with a boiler and radiators, double glazing, fast broadband and excellent mobile signal. The property is leasehold (very long lease remaining) with an EPC rating of D and very low council tax band A — factors that will help monthly affordability for a first-time buyer or investor seeking a lettable home in a transitional neighbourhood.
Buyers should note the home is small overall and has only one bathroom. The building is original solid brick (likely no cavity insulation) — typical of its era — so additional insulation works could be considered. Parking is on-street. These are manageable points but important for future running costs and any renovation plans.
3 bedroom terraced house for sale in Scholes, Wigan, WN1 — £140,000 • 3 bed • 1 bath • 958 ft²
3 bedroom town house for sale in Gardinar Close, Standish, WN1 — £230,000 • 3 bed • 2 bath • 865 ft²
3 bedroom terraced house for sale in Essex Street , Wigan, WN1 — £130,000 • 3 bed • 1 bath • 889 ft²
2 bedroom terraced house for sale in Warrington Road, Wigan, WN5 — £150,000 • 2 bed • 1 bath • 997 ft²
2 bedroom terraced house for sale in Coronation Street, Lower Ince, Wigan, WN3 — £135,000 • 2 bed • 1 bath • 724 ft²
3 bedroom terraced house for sale in Windermere Road, Leigh, Greater Manchester, WN7 — £169,950 • 3 bed • 1 bath • 754 ft²






















































































