Newly renovated three-bed terrace, walking distance to Wigan town centre.
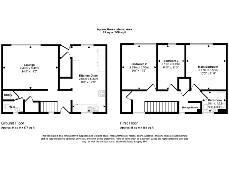
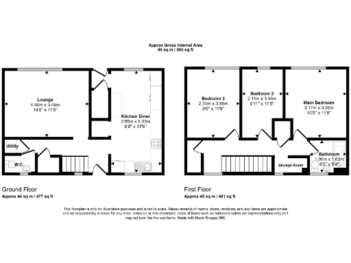
Three double bedrooms across two floors
A newly renovated mid-terrace offering three double bedrooms and 958 sq ft of well-presented living space, just a short walk from Wigan town centre. The property benefits from a modern fitted kitchen with integrated appliances, contemporary bathroom, and both front and rear gardens that extend usable outdoor space.
Practical details suit first-time buyers: freehold tenure, very low council tax (Band A), EPC B and no flood risk. Local amenities, bus links and several primary schools — two rated Outstanding — are within easy reach, while Wigan town centre is walkable for shopping and leisure.
There are some trade-offs to note. Heating is provided by electric storage heaters and the main fuel is electricity, so running costs may be higher than gas-heated homes. The area is classed as very deprived with a local classification of "hampered neighbourhoods," which may affect long-term resale values. The small front plot and fence need maintenance and there are signs of weathering at the facade.
Overall this is a practical, move-in-ready home for first-time buyers or investors seeking a centrally located, low-maintenance freehold property with immediate rental or owner-occupier potential. Early viewing recommended to appreciate the internal condition and garden sizes.
2 bedroom terraced house for sale in Hartley Avenue, Ince, Wigan, WN1 — £125,000 • 2 bed • 1 bath • 807 ft²
3 bedroom town house for sale in Gardinar Close, Standish, WN1 — £230,000 • 3 bed • 2 bath • 865 ft²
3 bedroom terraced house for sale in Woodhouse Lane, Wigan, Greater Manchester, WN6 — £175,000 • 3 bed • 1 bath • 709 ft²
2 bedroom terraced house for sale in Moore Street, Whelley, Wigan, WN1 — £140,000 • 2 bed • 1 bath • 873 ft²
3 bedroom terraced house for sale in Essex Street , Wigan, WN1 — £130,000 • 3 bed • 1 bath • 889 ft²
2 bedroom terraced house for sale in Spring Street, Wigan, WN1 3EX, WN1 — £125,000 • 2 bed • 1 bath • 658 ft²






















































































